EasyManua.ls Logo

Icom IC-2720H - SECTION 9 BLOCK DIAGRAM; Overall Block Diagram

Icom IC-2720H
51 pages
To Next Page IconTo Next Page
To Next Page IconTo Next Page
To Previous Page IconTo Previous Page
To Previous Page IconTo Previous Page
Loading...
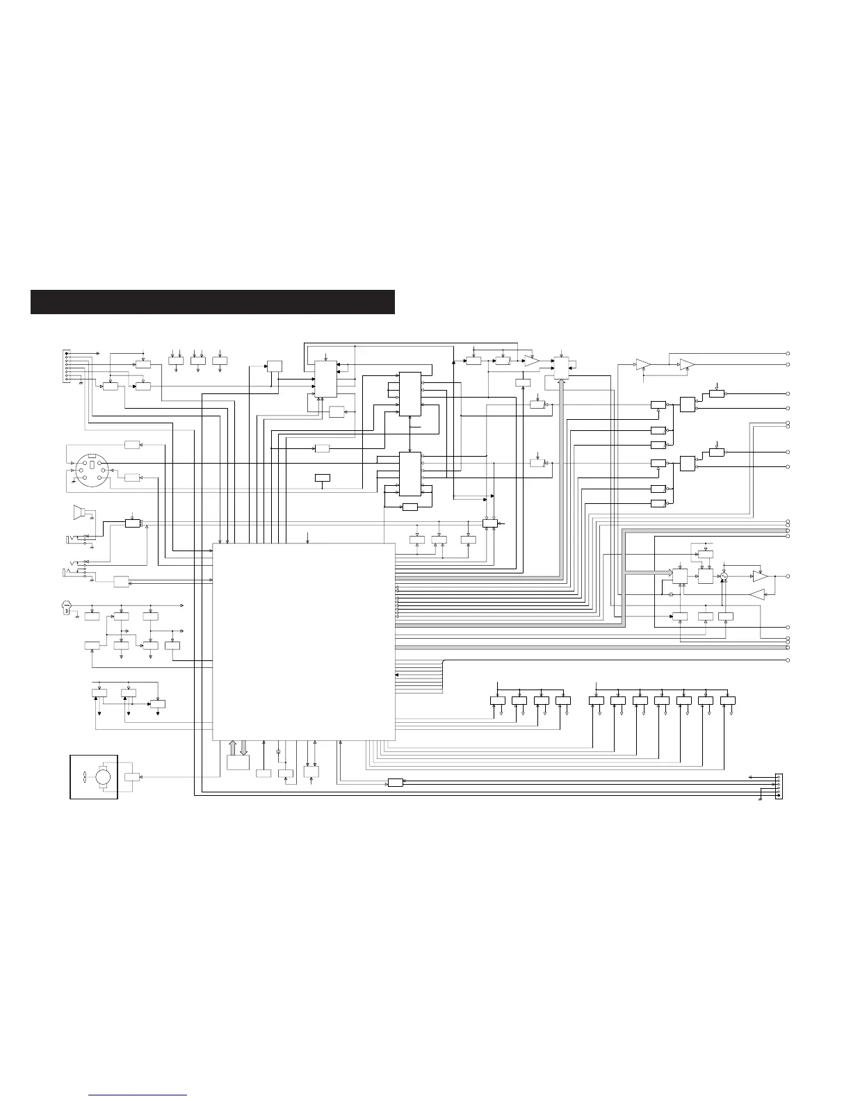
SECTION 9 BLOCK DIAGRAM
9 - 1
MOD
R_WXALT
L_DET_MUTE
L_DTCS_IN
L_WXALT
R_SQL
R_RSSI
R_DTCS_IN
R_DET_MUT
L_RSSI
L_SQL
AF_VOL_DATA
DA_STB,DA_CK,DA_DATA
R_WXALT
L_DET_MUTE
L_DTCS_IN
L_WXALT
L_VCO_SHIFT
OUT4
R_SQL
AF_VOL_CK
DTCS
DTCS_SEL
L_PLLSW
R_RSSI
R_DTCS_IN
R_DET_MUT
L_RSSI
L_SQL
L_SQL
L_RSSI
R_RSSI
R_SQL
R_RSSI
R_SQL
REFCON
MOD
R_RX800
L_RX400
R_RX400
L_RX300
L_RX220
R_RX140
L_RX140
RDATA
TXDATA
MICE
MIC
R_RX140
L_RX140
L_RX220
L_RX300
R_RX400
L_RX400
R_RX800
MICE
MIC
MIC
MICE
DATAOUT
DATAOUT
AFOUT
AFOUT
SUB_SEL
DATAIN
MIC_SENS
MIC_PTT
98_DATA
MICE
EXTMIC
MICU/D
MOD
2nd_LO_38.4MHz
DA_STB,DA_CK,DA_DATA
P_LR_SEL
L_PLLSW
MIC
MICE
UAFO
VAFO
2SC4403
Q1
2SC5231
Q7
HVC321B
D3,D4,D5
Q6 2SC5231
D2 DA221
Q3 2SC4116
Q2 2SA1586
MB15A02PFV-1
IC1
TC4S66F
IC2
D6 MA2S077
Q5 DTC143ZU
DTC144EU
Q4
L_UNLOCK
OUT1(STRB),
PLLCK,PLLDATA,
L_RSSI
L_SQL
L AM5
R AM5
MODIN
DATAMOD
5VS
UDETS
VDETS
UAFO
VAFO
UDETS
VDETS
RLPT_MOD
R_WXALT
R_DTCS_IN
R_DET_MUT
L_WXALT
L_DTCS_IN
L_DET_MUTE
VOUT2
VOUT1
R_WXALT
R_DTCS_IN
R_DET_MUT
L_WXALT
L_DTCS_IN
L_DET_MUTE
L_VCO_SHIFT
OUT4
L_PLLSW
R_RSSI
R_SQL
L_RSSI
L_SQL
DTCS_SEL
DTCS
AF_VOL_CK
AF_VOL_DATA
R_AFMUTE
L_AFMUTE
L400_SHIFT
R400_SHIFT
VAGC
UAGC
UMMUTE
REV_DET
TXC
R_UVCO_SEL
R_RVCO_SEL
R_PLLSW
HD64F2144AFA20
IC2013
MICE
MIC
RXDATA
TXDATA
XP4213
Q2016
TEMP
FAN_CTRL
2SC4116
Q23,Q26
-G9F-T2
S-80945CNMC
IC2001
DTC144EU
Q2003
P_PTT
P_SQL
EXTMIC
AFOUT
1200_9600SEL
P_MOD_MUTE
SUB_SEL
CM_MUTE
MM_MUTE
MIC_SENS
MIC_PTT
98_DATA
MICU/D
R
Q
P
O
N
M
L
K
J
I
H
G
F
E
D
C
B
A
HVC376B
D1
HV
8V
5V
L VCO8
8V
5VS
L_R5CTRL
R_R5CTRL
R_AM
L_AM
R_RX800
L_RX400
R_RX400
L_RX300
L_RX220
R_RX140
L_RX140
5VS
J2006
2SC4213
Q2008
2SC4213
Q2011
M62429FP
IC2011
LA4445
IC2012
VCC
AMP
AF
VOLUME
MUTE
AF
MUTE
AF
MUTE
AF
CPU
5VS5VS
L AM5 R AM5 R R5 L R5
R5
L140
R5
R140
_R5
L220
_R5
L300
_R5
R400
_R5
L400
_R5
R800
BUFF
SHIFTMUTE
CONTROL
REF
IC
PLL
FIL
LOOP
SW
FILTER
8V
2SC4215
Q1009
2SC4116
Q1012
2SJ144
Q1010
2SJ144
Q1011
XP4601
Q1003
XP4601
Q1004
XP6501
Q1022,Q1025
XP6501
Q1014,Q1017
TC4W53FU
IC2015
TC4W53FU
IC2016
DET
AM
SEL
AM/FM
DET
AM
SEL
AM/FM
LPF
LPF
MUTE
AF
LPF
LPF
MUTE
AF
8V
8V
XP6501
Q1008
XP6501
Q1007
5VS
M62363FP-650C
IC1009
DTC144EU
Q1001
NJM12902V
IC1000C
NJM12902V
IC1000D
NJM12902V
IC1000A
DA221
D2012
DTC144EU
Q2006
SELECT
SUB
LIMIT
DTC144EU
Q2009
SW
ANALOGUE
BU4066BCFV
IC2010
BU4066BCFV
IC2007
SW
ANALOGUE
DTC144EU
Q2022,Q2023
BU4066BCFV
IC2008
J2004
J2005
CLONE_OUT
CLONE_IN
CR-520
X2001
SDA
SCL
SHIFT
CLOCK
SENS
TEMP
5VS
2SC4116
Q2005
BUFFBUFF
IC2009 TC4S81F
Q2010 2SC4213
12.8MHz
CR-718
X1
XP4601
Q2014
BUFF
MICE
MIC
GND
RDATA
TXDATA
CTHV
DTA114YU
Q8
REG
L AM5
DTA114YU
Q6
REG
R AM5
DTA114YU
Q5
REG
R R5
DTA114YU
Q4
REG
L AM5
DTA114YU
Q3
REG
R AM5
DTA114YU
Q2
REG
R R5
DTA114YU
Q1
REG
L R5
DTA143ZU
Q1006
REG
L AM5
DTA143ZU
Q1005
REG
R AM5
DTA114YU
Q1002
REG
R R5
DTA114YU
Q1000
REG
L R5
DTC144EU
Q2007
BUFF
5VS
LPF
LPF
SELECT
SUB
SEL
9600
1200
SW
ANALOGUE
CTRL
SENS
MIC
SELECT
DTCS
IDC
D/A
BUFFLPF
SW
L UR5
SW
L VR5
REG
+8
2SC4116
Q1023
DAN222
D1041
DAN222
D1040
L_VCO8L_VR5L_UR5
8V
_R5
L220
_R5
L140
_R5
L400
_R5
L300
MA2S111
D2032-D2047
CHASSIS UNIT
CTRL
FAN
FAN
MF1
-
+
M
MATRIX
5V
HN58X2464TI
IC2000
EEPROM
BUFF
CLONE
D2029 MA742
Q2017 DTC144TU
SP1
-
+
D1 DAP222
Q13 2SB1132
Q12 2SA1588
Q10 DTC144EU
Q11 2SA1588
Q9 DTC144EU
DTC144EU
Q2018
SW
PSQL
DATAOUT
J2003
DATAIN
DTA144EU
Q2019
SW
PTTP
1
3
5
2
4
6
D2011 MA8047
IC2006 TA75S01F
Q2028 2SC4116
IC2014 TA75S558F
8V
CONT
MDATA
AMP
MIC
J2001
MICIN
GND
MIC
MICE
PTT
EXTMIC
MICU/D
8V
DET
PTT
REG
VUT8
VUT8VT8 UT8
8V
REG
UT8
REG
VT8
MA2S111
D2048
2SA1588
Q2002
TA7808F
IC2003
5VS8V
RESET
REG
+8
CONTROL
POWER SW
5VVCC
REG
+5
HV
TA7805F
IC2002
2SB1132
Q2000
OPC-465
J2000
D2030 RD20E
D2000 DSA3A1
REG
+5
REG
VCC
PROTECT
VCO UNIT

Table of Contents

Other manuals for Icom IC-2720H

Related product manuals