EasyManua.ls Logo

Ideal Heating i305 - DHW Plate Heat Exchanger Removal & Replacement

Ideal Heating i305
56 pages
Print Icon
To Next Page IconTo Next Page
To Next Page IconTo Next Page
To Previous Page IconTo Previous Page
To Previous Page IconTo Previous Page
Loading...
37
Installation and Servicing
SECTION 3 - SERVICING
5
7
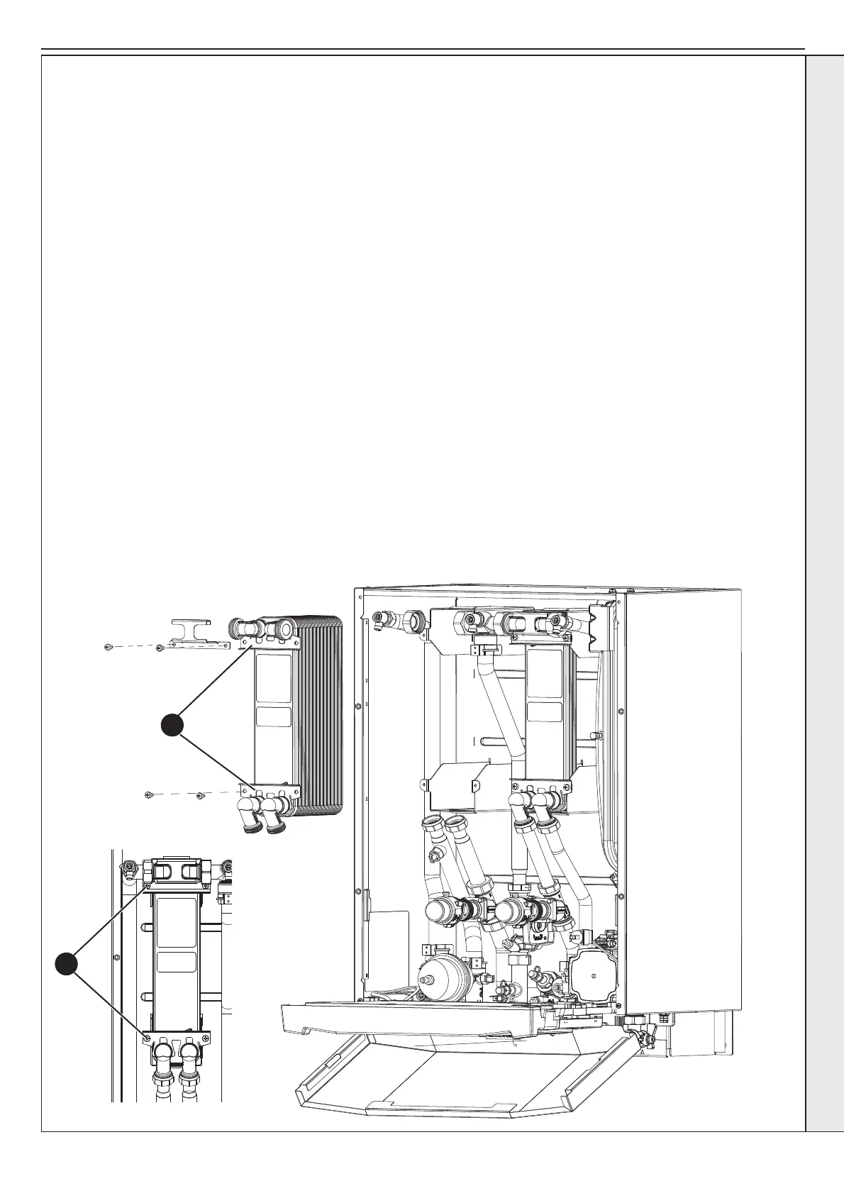
3.13 DHW PLATE HEAT EXCHANGER REMOVAL & REPLACEMENT
1. Isolate and drain the HIU. Refer to Section 3.5.
2. Remove the front panel. Refer to Section 3.4.
3. Remove insulation front section to expose plate heat
exchanger(s). Refer to Section 3.12.
4. Slacken the four pipe nuts on the front face of the LHS
plate. Ensure support is used to not twist the elbow
manifolds. Dispose of bre washers to prevent re-use.
5. Remove the four screws securing the two plate heat
exchanger retention brackets (upper and lower) to the
chassis.
6. Manoeuvre the plate heat exchanger out of the appliance.
Be aware of any water spillage.
7. Remove the clips from the plate heat exchanger by pulling
the upper one downward and the lower one upward. Lightly
twist and pull the elbows to remove them from the O-ring
seals on the PHE.
8. Fit new blue O-ring seals to the upper most groove on the
4 PHE connection posts (the low groove nearest the PHE
is for the retention clip).
9. Ensure the two indents near the PHE connection posts are
facing inboard.
10. Ret the two 90° elbows to the top of the PHE with their
outlets facing left and right, and the 2 x 60° elbows are
tted with their outlet facing downwards.
Note: Failure to correctly locate the poisition of the elbows
will prevent the retention clips from being tted.
11. Ensure new retention clips are located correctly in the
slots on the brass elbows and that they are secured to
the correct groove on the PHE connect post. Note: If they
are not correctly tted the groove nearest the PHE will be
clearly visible. In this case the clip will need to be removed
and the elbows pushed further on the PHE connection
posts and the clip retted.
12. Fit the new plate heat exchanger into the cut out in
insulation back panel – ensure DHW plate size is matched
to plate removed.
Note: Ensure that the depressions on the plate heat
exchanger are facing inboard and match the insulation.
13. Ret the four screws securing the upper and lower bracket
to the chassis, including the upper manifold bracket.
14. Replace bre washers with new (supplied) and spin nuts
onto manifold threads.
15. Torque the 90 degree manifold (TOP) pipe nut connections
to 40N/m.
16. Torque the 60 degree manifold (BOTTOM) pipe nut
connections to 32N/m.
17. Rell the HIU. Refer to Section 2.5.
18. Replace the insulation front section. Refer to Section 3.12.
19. Check that the HIU operates in both DHW & CH modes.
SERVICING

Table of Contents

Related product manuals