EasyManua.ls Logo

IDEAL F80 - Boiler Dimensions

IDEAL F80
48 pages
Print Icon
To Next Page IconTo Next Page
To Next Page IconTo Next Page
To Previous Page IconTo Previous Page
To Previous Page IconTo Previous Page
Loading...
7
xtra
- Installation & Servicing
GENERAL
1
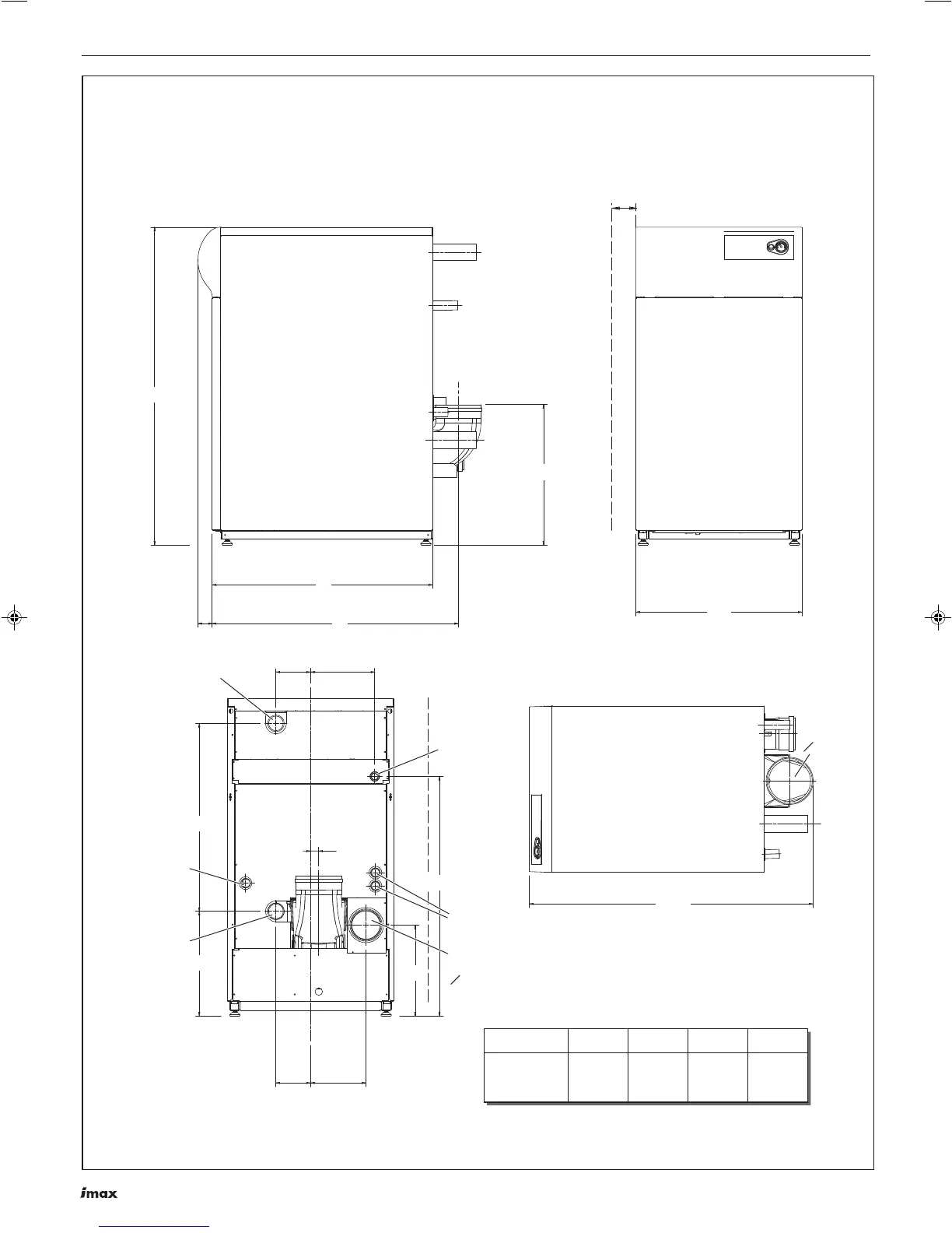
BOILER DIMENSIONS AND CONNECTIONS
110
High Level Air Inlet Kit (If Fitted)
51
1150
A
B
600
510
232125
R2" Flow
Connection
R1" Gas
Connection
Electrical
Conduit
Electrical
Conduit
Air
Inlet
O110
678
382
125
333
869
C
30
200
SIDE VIEW
REAR VIEW
PLAN VIEW
FRONT VIEW
im8252
A B C D
F80-F160 796 888 1024 150
F200-F280 1048 1165 1327 200
Flue
Centre
Line
R2" Return
Connection
Flue
OD
All dimensions shown in mm

Related product manuals