EasyManua.ls Logo

Immergas EOLO Maior - Eolo 27 Maior @ Boiler Components; Kits Available on Request

Immergas EOLO Maior
36 pages
Print Icon
To Next Page IconTo Next Page
To Next Page IconTo Next Page
To Previous Page IconTo Previous Page
To Previous Page IconTo Previous Page
Loading...
INSTALLER
USER
TECHNICIAN
20
1.14 Kits available on request.
Kit of system shutoff valves (on request). The boiler
is designed for installation of system shutoff valves
for insertion on delivery and return pipelines on the
connection assembly. This kit is particularly useful
as it enables draining of the boiler separately from
the entire system.
Zoned heating systems kit (on request). In case of
choice of an heating system divided in more zones
(three at maximum) in order to control separately
with independent regulations and to maintain high
the flow of water of every zone, Immergas supplies
when requested the zoned heating system kit.
Polyphosphate batching kit (on request). The
polyphosphate batching unit prevents the forma-
tion of limescale over time and maintains constant
heat exchange conditions and production of do-
mestic hot water. The boiler is designed for appli-
cation of the polyphosphate batching unit.
The above kits are supplied complete with instruc-
tions for assembly and use.
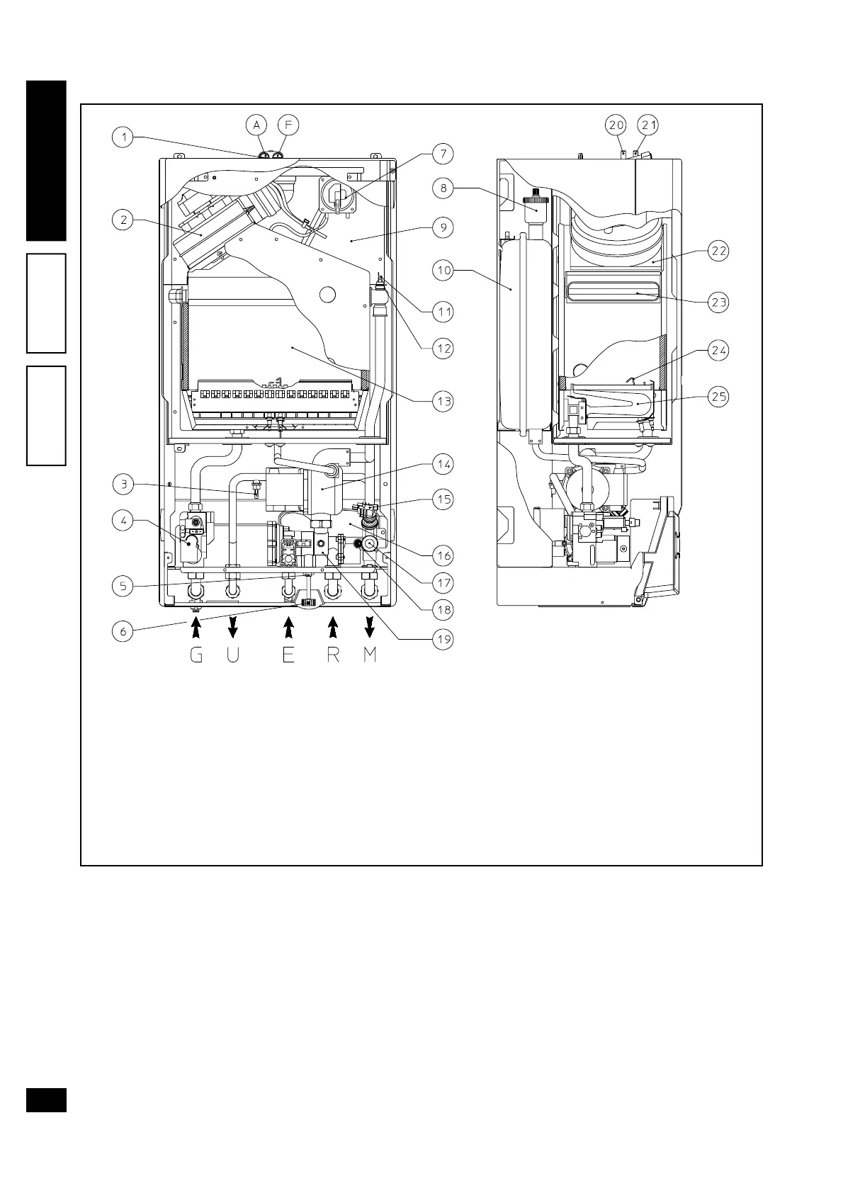
1.13 Eolo 27 Maior @ boiler components.
Key:
1 - Air/flue intake sockets (A air) - (F flue)
2 - Flue extraction fan
3 - Domestic hot water NTC thermistor
4 - Gas valve
5 - Draining valve
6 - Central heating filling valve
7 - Fan safety pressure switch
8 - Automatic air vent valve
9 - Sealed chamber
10 - Expansion vessel
11 - Central heating NTC thermistor
12 - Over heat safety thermostat
13 - Combustion chamber
14 - Circulating pump
15 - Water pressure switch
16 - Plated heat exchanger
17 - 3 bar safety valve
18 - Automatic by-pass exclusion stem
19 - 3 way hydraulic valve
20 - Positive signal pressure socket
21 - Negative signal pressure socket
22 - Flue hood
23 - Primary heat exchanger
24 - Ignition / detection electrodes
25 - Burner

Related product manuals