EasyManua.ls Logo

Immergas V2 - Page 32

Immergas V2
Print Icon
To Next Page IconTo Next Page
To Next Page IconTo Next Page
To Previous Page IconTo Previous Page
To Previous Page IconTo Previous Page
Loading...
1
2
3
4
5
6
7
8
9
32
Zone Type
Zone 1 Direct
Zone 2 Direct
Zone 3 Direct
5
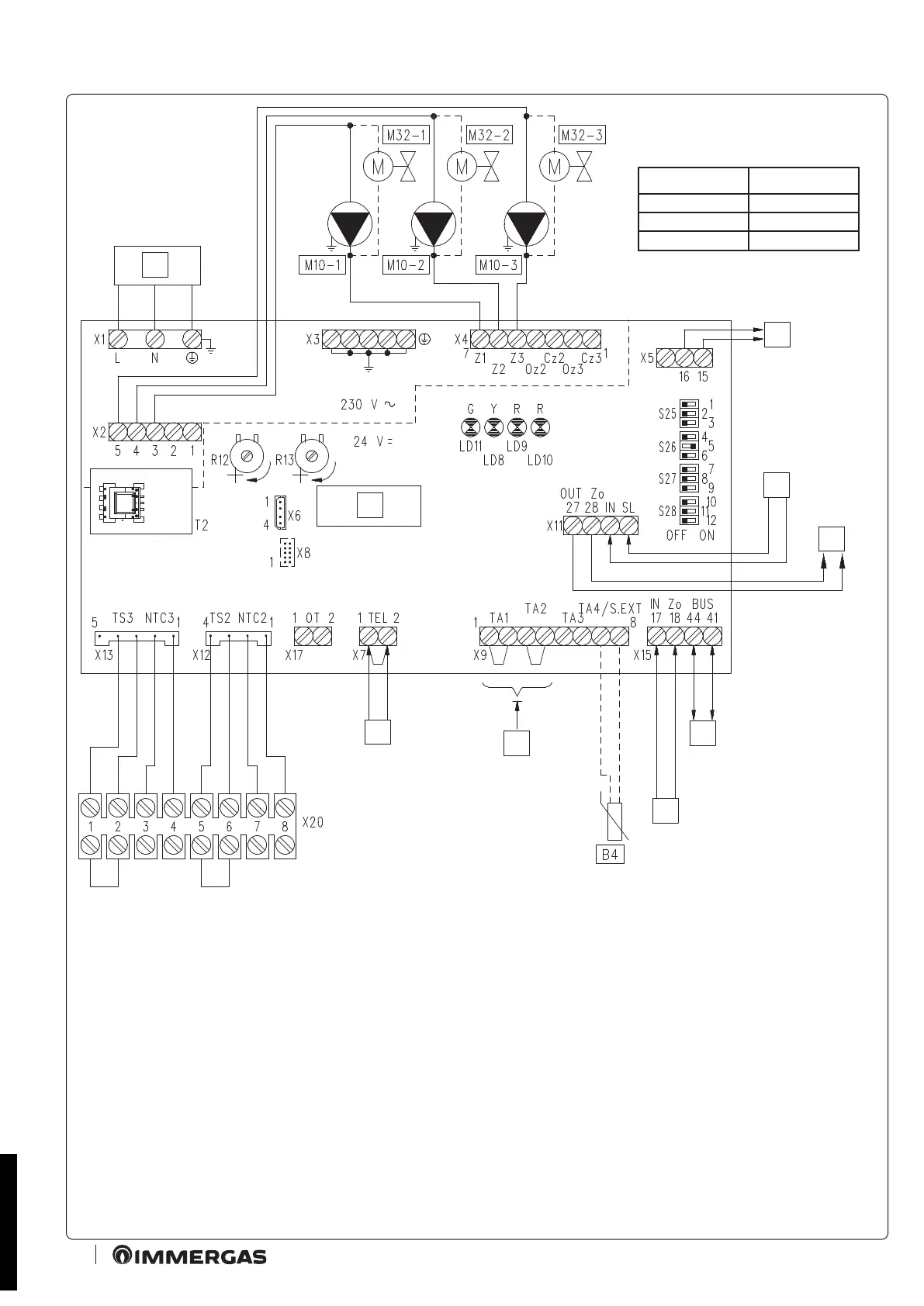
2.2 WIRING DIAGRAM FOR USING THE KIT ON A SYSTEM SPLIT INTO 3 HOMOGENEOUS ZONES
Key:
B4 - External probe (optional)
M10-1 - Zone 1 circulator
M10-2 - Zone 2 circulator
M10-3 - Zone 3 circulator
M32-1- Zone 1 valve
M32-2- Zone 2 valve
M32-3- Zone 3 valve
R12 - Zone 2 low temperature ow
regulation trimmer
R13 - Zone 3 low temperature ow
regulation trimmer
S25 - P.C.B. setting selector
S26 - P.C.B. setting selector
S27 - P.C.B. setting selector
S28 - P.C.B. setting selector
T2 - Zones control unit low voltage feeder
1 - 230 Vac 50 Hz power supply
2 - Central heating request outlet to
boiler or other zones control unit
3 - Central heating request inlet from
other zones control unit
4 - Zones signal state outlet for other
zones control unit
5 - Connection to marker safety
thermostat
6 - Connections to ON/OFF room
thermostats
7 - Zones signal state inlet from boiler or
other zones control unit
8 - DIM BUS connection to boiler
9 - Zones control unit
BK - Black
BR - Brown
BL - Blue
GY - Grey
R - Red
Y/G - Yellow/Green
STD.009285/001

Related product manuals