EasyManua.ls Logo

IMO iDrive2 XKL - Standard Wiring

IMO iDrive2 XKL
94 pages
Print Icon
To Next Page IconTo Next Page
To Next Page IconTo Next Page
To Previous Page IconTo Previous Page
To Previous Page IconTo Previous Page
Loading...
iDrive2 inverters Installation Guidelines
14
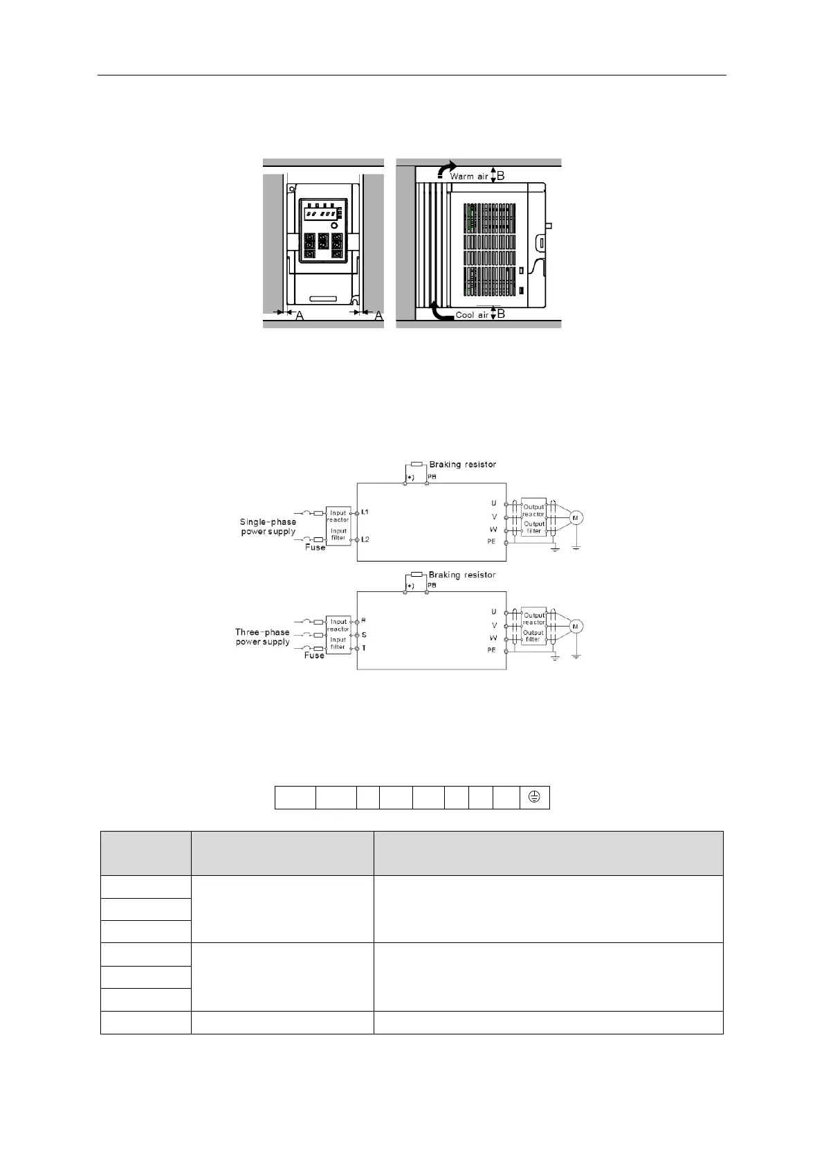
3.1.4 Installation space
Fig 3-2 Installation space
Note: Fan cooled drives can be mounted side by side, natural cooled drives require 30mm clearance (Dim A)
A minimum clearance of 100mm is required above and below the drive (Dim B).
3.2 Standard wiring
3.2.1 Connection diagram of main circuit
Diagram 3-3 Connection diagram of main circuit
Note:
The fuse, DC reactor, braking resistor, input reactor, input filter, output reactor, output filter are optional
parts. Please refer to Peripheral Optional Parts for detailed information.
3.2.2 Terminals figure of main circuit
R/L1
S/L2
T
(+)
PB
U
V
W
Fig 3-4 Terminals of main circuit
Terminal
sign
Terminal name
Function
L1/R
Power input of the main circuit
3-phase/1-phase AC input terminals are generally connected
to the incoming supply.
L2/S
T
U
The inverter output
3-phase AC output terminals are generally connected to the
motor.
V
W
PB
Braking resistor terminal
PB and (+) are connected to an external resistor.

Related product manuals