EasyManua.ls Logo

IMO iDrive2 XKL - Appendix B Dimension Drawings; Keypad Structure; Inverter Chart

IMO iDrive2 XKL
94 pages
Print Icon
To Next Page IconTo Next Page
To Next Page IconTo Next Page
To Previous Page IconTo Previous Page
To Previous Page IconTo Previous Page
Loading...
iDrive2 inverters Appendix B Dimension drawings
86
Appendix B Dimension drawings
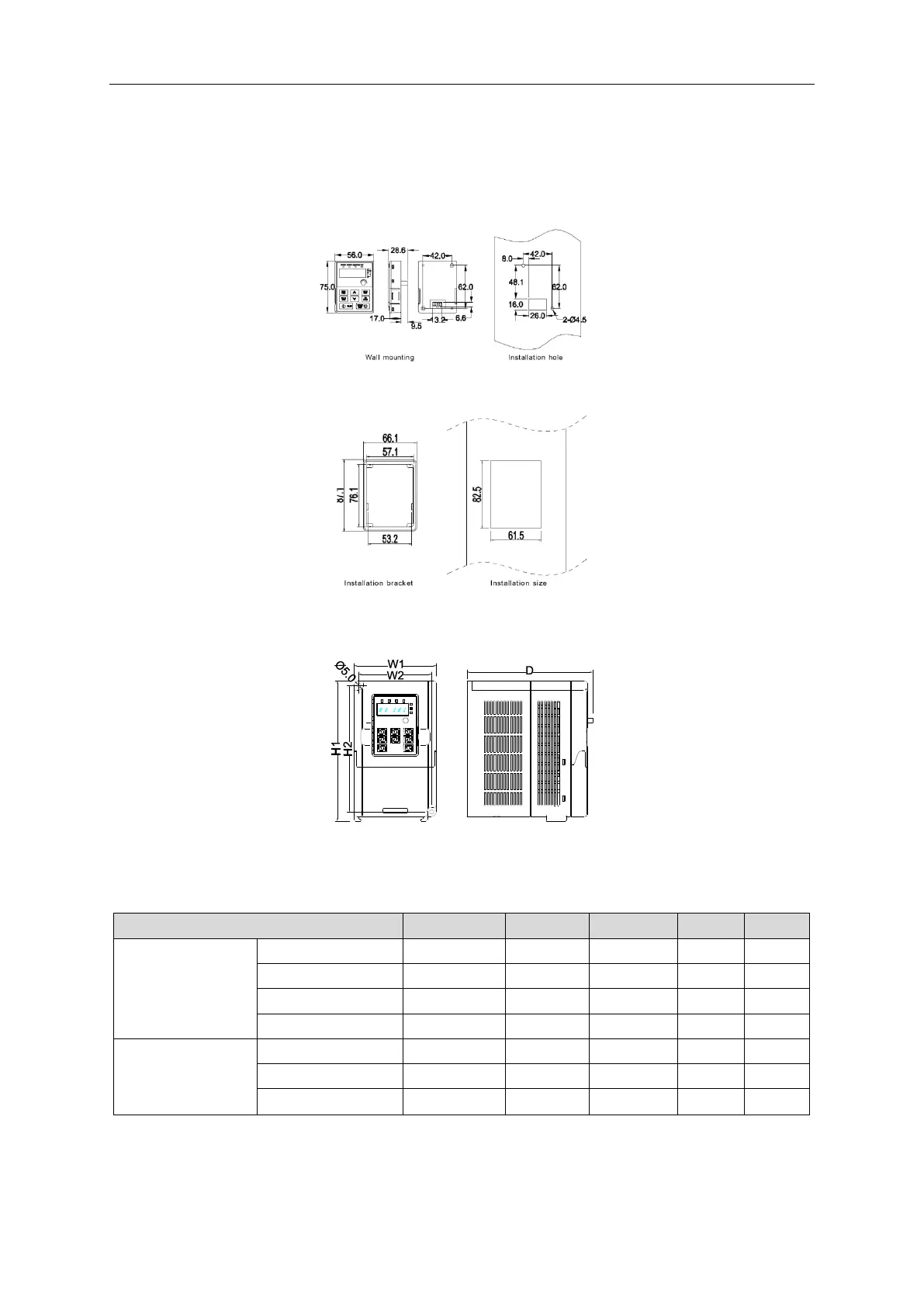
Dimension drawings of the IMO XKL are shown below. The dimensions are in mm.
B.1 Keypad structure
The keypad can be installed on the (optional) installation bracket.
B.2 Inverter dimensions
Wall mounting (unit: mm)
Model
W1
W2
H1
H2
D
Single-phase 230V
XKL-040-21
85.0
74.0
145.5
131.5
134.2
XKL-075-21
85.0
74.0
145.5
131.5
153.2
XKL-150-21
100.0
89.0
170.5
154.0
153.2
XKL-220-21
100.0
89.0
170.5
154.0
153.2
Three-phase 400V
XKL-075-43
85.0
74.0
145.5
131.5
153.2
XKL-150-43
100.0
89.0
170.5
154.0
153.2
XKL-220-43
100.0
89.0
170.5
154.0
153.2

Related product manuals