EasyManua.ls Logo

Inovance AM600-4AD - Page 34

Inovance AM600-4AD
133 pages
To Next Page IconTo Next Page
To Next Page IconTo Next Page
To Previous Page IconTo Previous Page
To Previous Page IconTo Previous Page
Loading...
-33-
Introduction
2) Module interface description
*
**

*
*
*
*
*
**
**
**
**
*
*
*
*
**
**
**
**
4JHOBMJOEJDBUPS
6TFSJOQVU
UFSNJOBM
-PDBM
FYQBOTJPO
CBDLFOE
JOUFSGBDF
-PDBM
FYQBOTJPO
GSPOUFOE
JOUFSGBDF
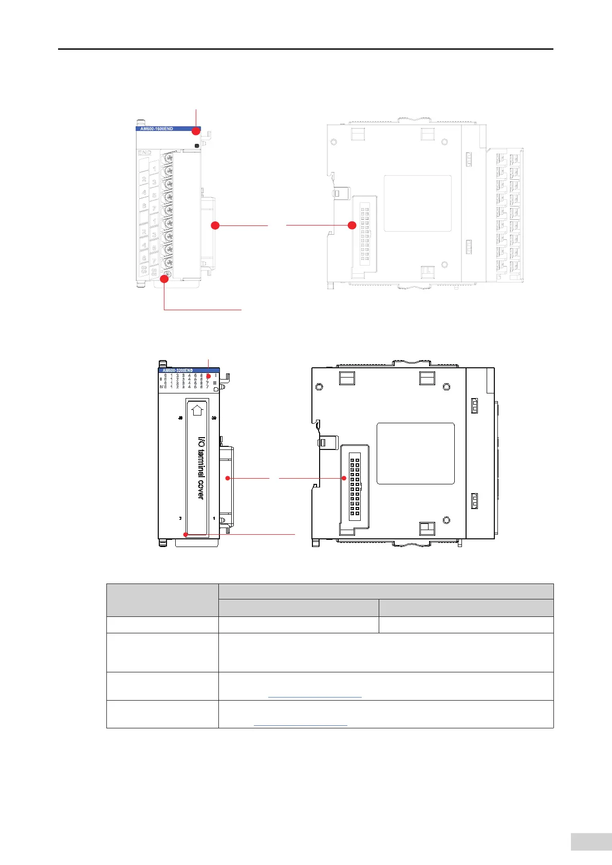
Figure 3-9 DI module (AM600-1600END) interfaces

4JHOBMJOEJDBUPS
6TFSPVUQVU
UFSNJOBM
-PDBM
FYQBOTJPO
GSPOUFOE
JOUFSGBDF
-PDBM
FYQBOTJPO
CBDLFOE
JOUFSGBDF
Figure 3-10 DI module (AM600-3200END) interfaces
Interface Name
Function
AM600-1600END AM600-3200END
User input terminal 8 inputs x 2 8 inputs x 4
Signal indicator
LED status indicator:
ON: input active
OFF: input inactive
Local expansion module
back-end interface
Connects to the backward module and does not support hot swap. For details about
the use
,
see
"Chapter 4 Installation"
.
Local expansion module
front-end interface
Connects to the forward module and does not support hot swap. For details about the
use
,
see
"Chapter 4 Installation"
.

Table of Contents

Related product manuals