EasyManua.ls Logo

Inovance AM600-4AD - Page 40

Inovance AM600-4AD
133 pages
To Next Page IconTo Next Page
To Next Page IconTo Next Page
To Previous Page IconTo Previous Page
To Previous Page IconTo Previous Page
Loading...
-39-
Introduction
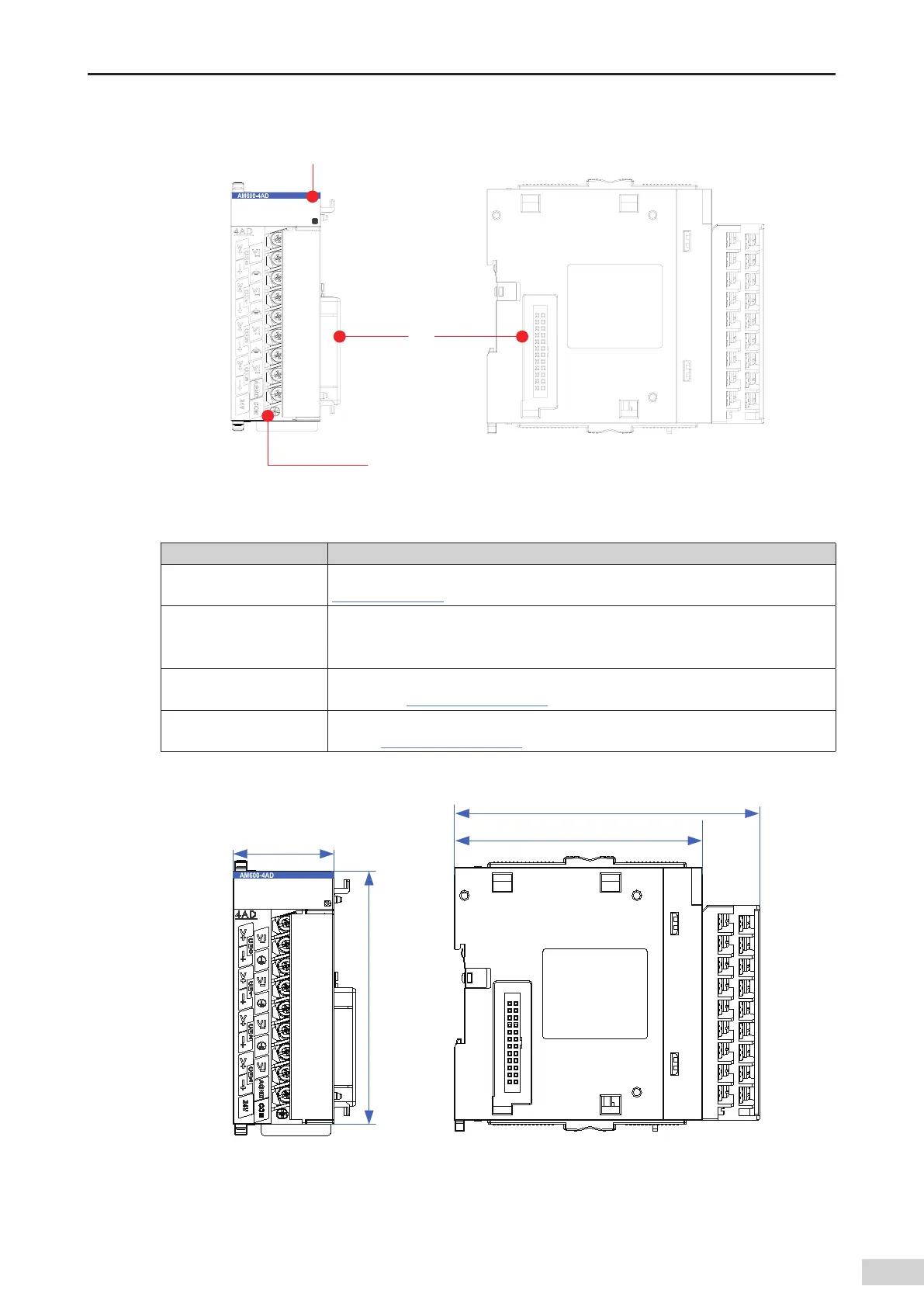
2) Module interface description
36/
&33
4JHOBMJOEJDBUPS
6TFSJOQVU
UFSNJOBM
-PDBM
FYQBOTJPO
CBDLFOE
JOUFSGBDF
-PDBM
FYQBOTJPO
GSPOUFOE
JOUFSGBDF
Figure 3-17 Interfaces of the AI module
Interface Name Function
User input terminal
4-channel input (voltage and current input supported. For details about the use
,
see
"Chapter 5 Wiring"
.)
Signal indicator
RUN: operation state indicator
,
which is on during normal operation and o󶍽 when a
fault occurs.
ERR: error state indicator
,
which is on when a fault occurs.
Local expansion module
back-end interface
Connects to the backward module and does not support hot swap. For details about
the use
,
see .
"Chapter 4 Installation"
Local expansion module
front-end interface
Connects to the forward module and does not support hot swap. For details about the
use
,
see
"Chapter 4 Installation"
.
3) Dimensions (mm)
32.0
90.0
117.0
95.0
RUN
ERR
Figure 3-18 Dimensions of AI module

Table of Contents

Related product manuals