EasyManua.ls Logo

Integra DTR-5.2 - Operating Components Not Reached by the Remote Controller Signals (IR IN;OUT)

Integra DTR-5.2
52 pages
Print Icon
To Next Page IconTo Next Page
To Next Page IconTo Next Page
To Previous Page IconTo Previous Page
To Previous Page IconTo Previous Page
Loading...
15
Operating components not reached by the
remote controller signals (IR IN/OUT)
The following equipment (sold separately) is essential for
operation:
Onkyos Multi-Room System kits (IR Remote Controller
Extension System), or
Multiroom A/V distribution and control systems from Niles
®
and Xantech
®
to name a few
Xantech is a registered trademark of Xantech Corporation.
Niles is a registered trademark of Niles Audio Corporation.
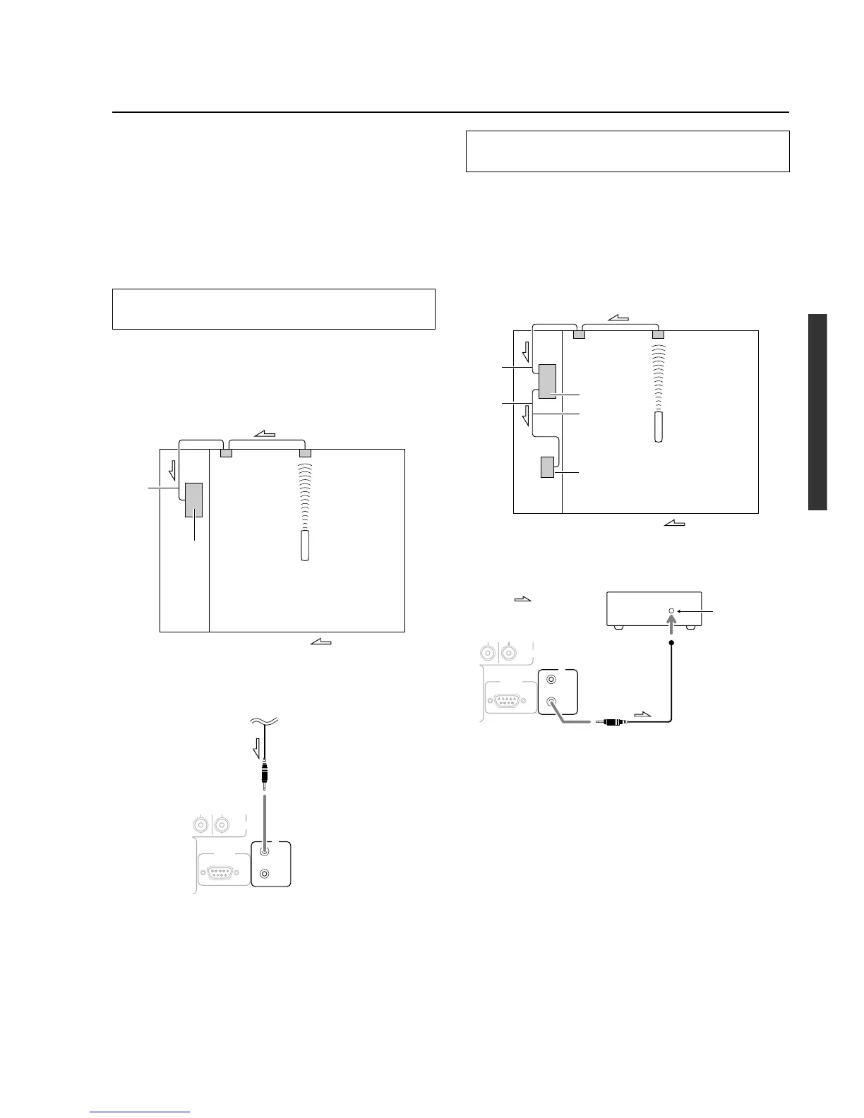
If the remote controller signal does not reach the
DTR-5.2 remote sensor
If the DTR-5.2 is located inside a cabinet or other enclosure where
the infrared rays from the remote controller cannnot enter, then
operation with the remote controller will noe be possible. In such a
case, it will be necessary to install a remote sensor at a location
outside of the cabinet for the infrared rays from the controller to
reach.
If the remote controller signal does not reach
other components
In this situation, you will need to use a commercially available IR
emitter. Connect the IR emitter to the IR OUT terminal on the DTR-
5.2 and then place the IR emitter on the remote sensor of the
component or facing it. When the IR emitter is connected, only the
signal input to the IR IN terminal is output to the IR OUT terminal.
The signal input from the remote sensor on the front of the DTR-5.2
will not be output to the IR OUT terminal.
Make connection as shown below. Do not plug the equipment into
the power source until the connection is complete.
RS 232
R
IN
IR
OUT
Mini plug cable From the connecting block
DTR-5.2
IR IN
IR OUT
IR Emitter
Connecting
block
DTR-5.2
IR Receiver
: Signal flow
Remote Controller
other
component
: Signal flow
IR Emitter
DTR-5.2
RS
232
R
IN
IR
OUT
other component
Remote control
sensor
Connecting
block
IR IN
IR Receiver
Remote Controller
DTR-5.2
: Signal folw
In the
cabinet
Mini plug cable
In the
cabinet

Related product manuals