EasyManua.ls Logo

Intergas HRE 36/40 - Electrical Diagrams

Intergas HRE 36/40
52 pages
Print Icon
To Next Page IconTo Next Page
To Next Page IconTo Next Page
To Previous Page IconTo Previous Page
To Previous Page IconTo Previous Page
Loading...
Intergas Heating Ltd 46
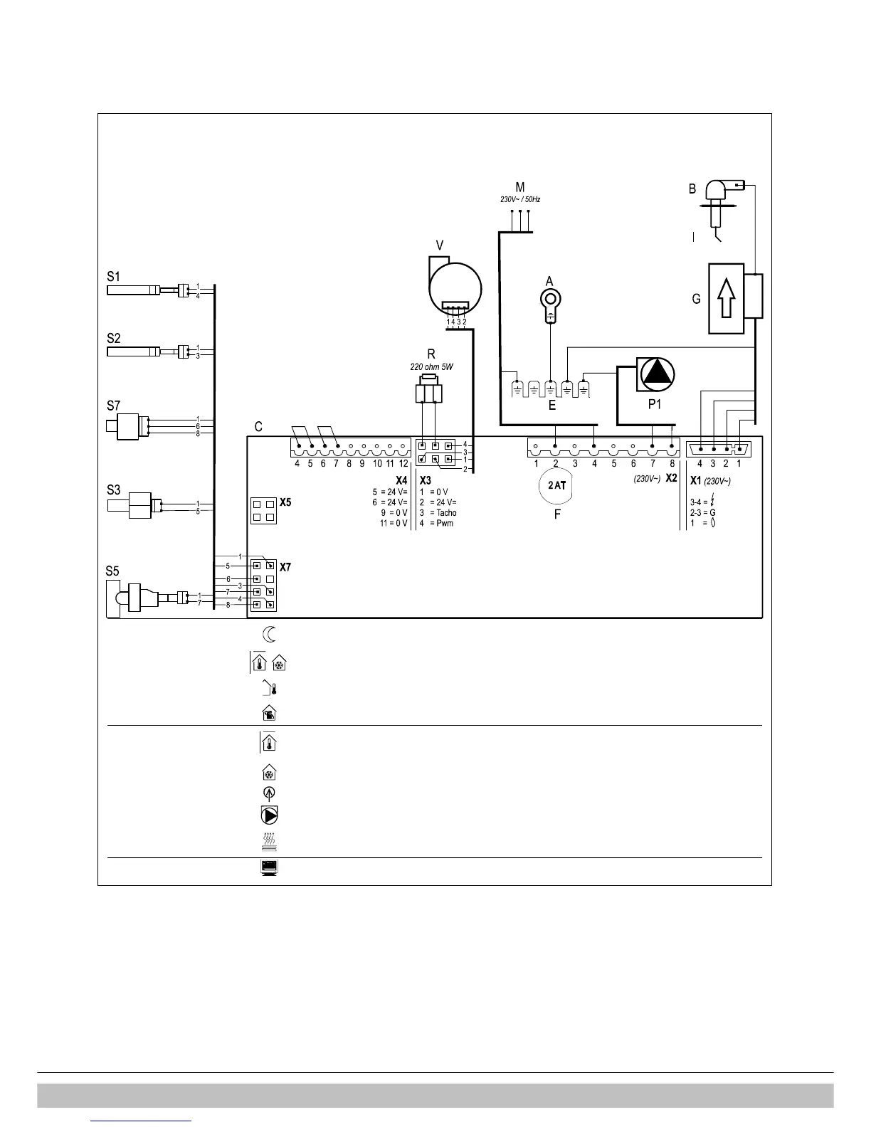
13 ELECTRICAL DIAGRAM
13.1 Electrical diagram HRE 24/18, 28/24 & 36/30
A
Earth connections heat-exchanger
F
Fuse (2A T)
P1
CH pump
S3
DHW sensor
B
Spark plug cover
G
Gas valve + ignition unit
R
Resistance
S5
Flow switch
C
Boiler controller
I
Ionisation-/ ignition probe
S1
Flow sensor
S7
CH water pressure sensor
E
Earth connections boiler controller
M
Main voltage
S2
Return sensor
V
Fan
Connector X4
24V=
4-5
External saving switch
(remove connection)
6-7
On/off room thermostat
(0,1A-24Vdc)
and/or frost thermostat
(remove connection 6-7)
8-9
External sensor
(12k ohm / 25°C)
11-12
OpenTherm thermostat
(remove connection 6-7)
Connector X2
230V
~
1-3
Room thermostat 230 AC
(1 = Switch live, 3 = Live(fused)
1-3
Frost thermostat 230 AC
(1 = Switch live, 3 = Live(fused)
2-4
Mains
(2 = Live (brown), 4 = Neutral (blue))
7-8
CV-pump
(8 = Live (brown), 7 = Neutral (blue)
3-5-6
Shut-off valve, floor heating
(3 = Live (brown), 5 = Switch (black), 6 = Neutral (blue) (VC4013 Honeywell
230V~)
Connector X5
Computer interface

Table of Contents

Other manuals for Intergas HRE 36/40

Related product manuals