EasyManua.ls Logo

INVT GD100-1R5G-SS2-PV - IP54 Protection-Level Vfds

INVT GD100-1R5G-SS2-PV
89 pages
To Next Page IconTo Next Page
To Next Page IconTo Next Page
To Previous Page IconTo Previous Page
To Previous Page IconTo Previous Page
Loading...
Goodrive100-PV Series Solar Pumping VFD Power frequency & PV switching solution
77
C.2 IP54 protection-level VFDs
Our company provides IP54 protection-level VFDs, which are divided into two types: One type
implements auto power frequency & PV switching and the other type does not implement auto
switching.
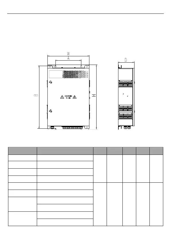
The figure below shows the VFD dimensions.
Solar Pumping VFD
Figure C-2 IP54 VFD dimensional drawing
IP54 VFD dimensions (unit: mm)
Power (kW)
Model
W
H
D
A
B
37
GD100-037G-45-PV-AS
650
1000
250
400
975
30
GD100-030G-45-PV-AS
22
GD100-022G-45-PV-AS
18.5
GD100-018G-45-PV-AS
15
GD100-015G-45-PV-AS
550
900
225
400
875
11
GD100-011G-45-PV-AS
7.5
GD100-7R5G-45-PV-AS
GD100-7R5G-25-PV-AS
5.5
GD100-5R5G-45-PV-AS
GD100-5R5G-25-PV-AS

Other manuals for INVT GD100-1R5G-SS2-PV

Related product manuals