EasyManua.ls Logo

IPSO DR30 - Page 11

IPSO DR30
43 pages
Print Icon
To Next Page IconTo Next Page
To Next Page IconTo Next Page
To Previous Page IconTo Previous Page
To Previous Page IconTo Previous Page
Loading...
Page 11
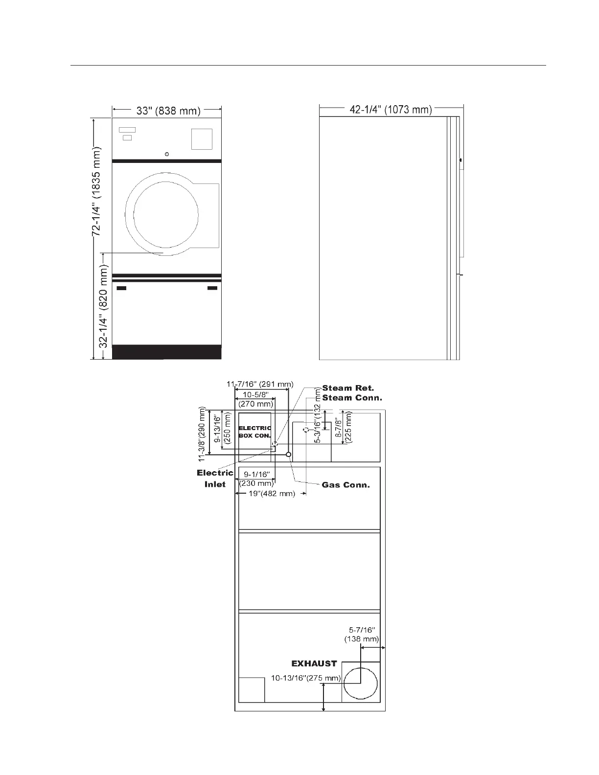
DR30 Dryer Dimensions - Gas
(Illustration)

Related product manuals