EasyManua.ls Logo

IPSO DR30 - Gas Service Installation Instructions

IPSO DR30
43 pages
Print Icon
To Next Page IconTo Next Page
To Next Page IconTo Next Page
To Previous Page IconTo Previous Page
To Previous Page IconTo Previous Page
Loading...
Page 16
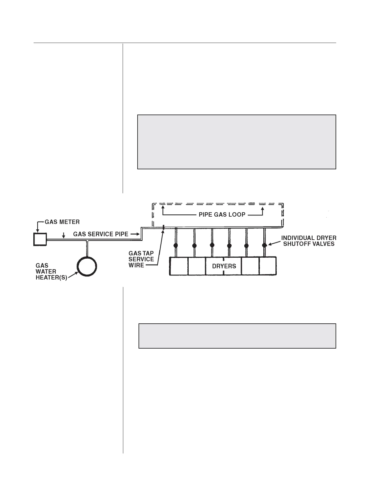
The size of the gas service pipe is dependant upon many variables,
such as tees, lengths, etc. Specific pipe size should be obtained from
the gas supplier. Refer to the “Gas Pipe Size” chart in this manual for
general gas pipe size information.
CAUTION: Gas loop piping must be installed as illustrated
to maintain equal gas pressure for all dryers connected to a
single gas service
Other gas-using appliances should be connected
upstream from the loop.
WARNING:
LIQUIFIED PETROLEUM GASES ONLY !
A gas pressure regulator for liquified petroleum gases is not
furnished on gas heated clothes dryers. This regulator is normally
furnished by the installer. In accordance with American Gas
Association (AGA) standards, a gas pressure regulator, when
installed indoors, must be equipped with a vent limiter or a vent line
must be installed from the gas pressure regulator vent to the outdoors.
Gas Service Installation Instructions
GAS SERVICE
INSTALLATION
INSTRUCTIONS
GAS PRESSURE
REGULATOR FOR
LIQUIFIED
PETROLEUM GASES

Related product manuals