EasyManua.ls Logo

Jackson 10 Series - 10 AB;10 APRB;10 U Machine Dimensions

Jackson 10 Series
78 pages
Print Icon
To Next Page IconTo Next Page
To Next Page IconTo Next Page
To Previous Page IconTo Previous Page
To Previous Page IconTo Previous Page
Loading...
07610-002-41-09-F
2
1 13/16”
5 1/4”
14 7/8”
TO THE
WALL
13”
9”
1 13/16”
B
E
F
A
16 1/2”
27 1/2” (AB ONLY)
TOP VIEW
FRONT VIEW
35 1/2” (APRB ONLY)
16 1/2”
21”
18”
19’
22 1/4”
20 1/4”
10U
29 1/4”
5” HH
19 1/4”
15 1/4”
10U
24 1/4”
5” HH
2 3/4”
C
CIRCUIT
BREAKER
B
A
E
4”
20”
14 1/2” 11”
G
D
34”
25”
10U ONLY
20 1/2”
25”
10U ONLY
14” TO
INLET
5”
10U ONLY
A
B
F
5 1/2”
LEFT VIEW
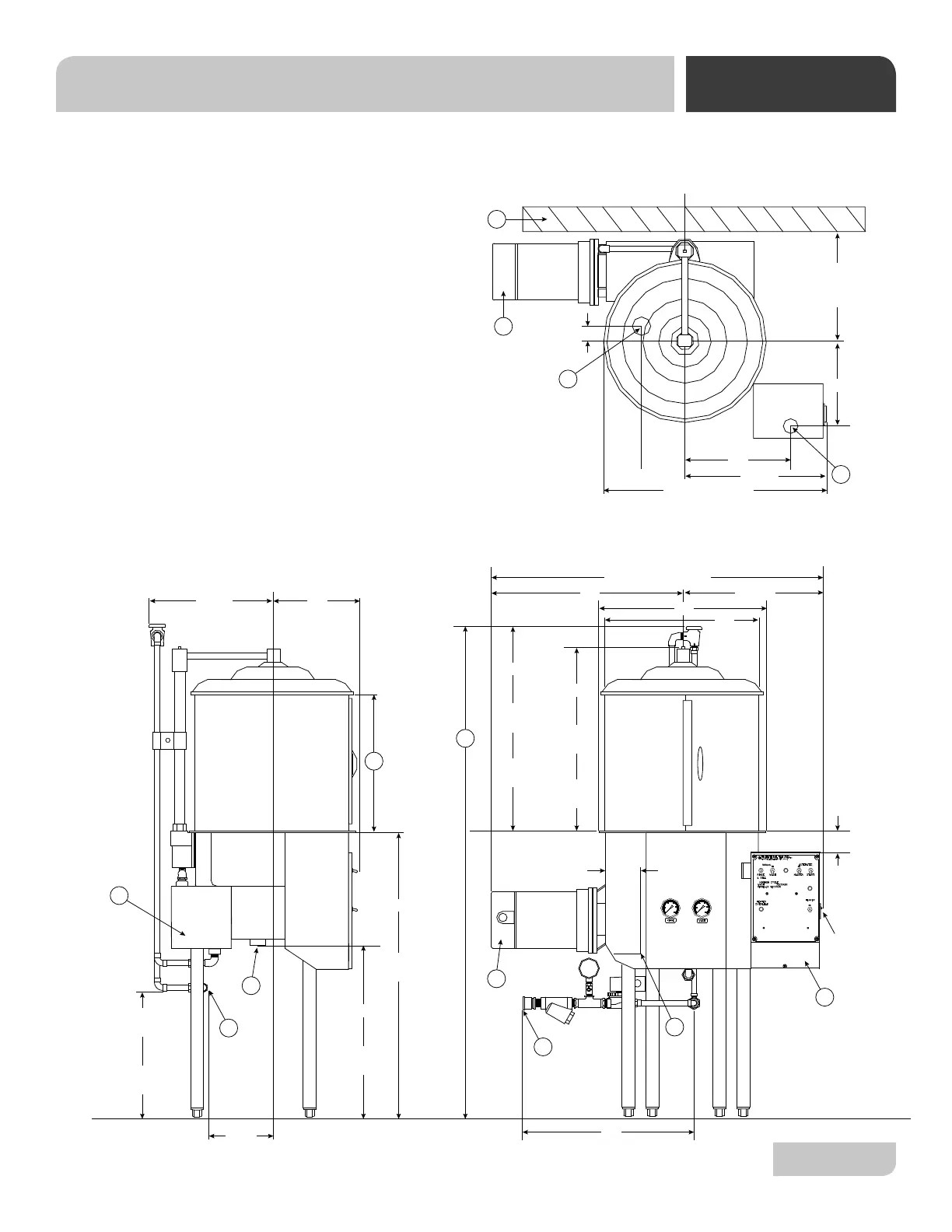
LEGEND
A - Water inlet 1/2” NPT. Plumbing can be directed
either left or right.
B - Drain connection 1 1/2” NPT
C - Electrical connection
D - Clearance for dishes:
10” (10U/10AB/10APRB 4” shorter hood)
14” (10A/10AB/10APRB standard hood)
19” (10A/10AB/10APRB 5” higher hood)
E - Power rinse pump motor (10APRB only)
F - Booster tank (10AB/10APRB/10U only)
G - Machine height:
45 1/2” (10U/10AB/10APRB, 9” shorter leg, 4” shorter hood)
58 1/4” (10AB/10APRB standard leg and hood)
63 1/4” (10AB/10APRB, standard leg, 5” higher hood)
All dimensions in inches.
All vertical dimensions are +/- 1/2” from the oor
due to the adjustable bullet feet.
SPECIFICATIONS
10AB/10APRB/10U MACHINE DIMENSIONS

Table of Contents

Related product manuals