EasyManua.ls Logo

Jackson AJ-44 - Electric - Left to Right

Jackson AJ-44
68 pages
Print Icon
To Next Page IconTo Next Page
To Next Page IconTo Next Page
To Previous Page IconTo Previous Page
To Previous Page IconTo Previous Page
Loading...
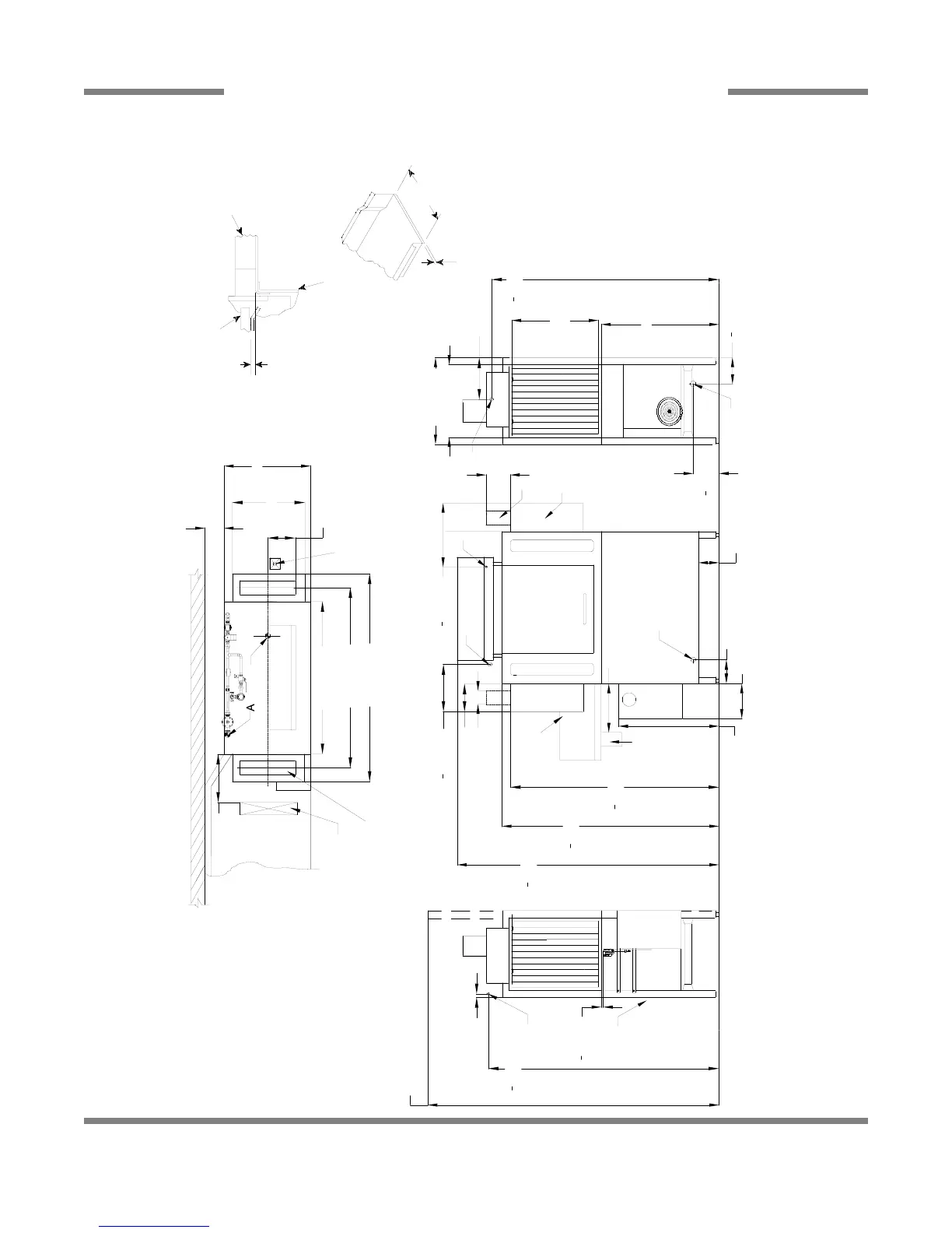
Left to Right
Drive
Unit
Left Side
Drive
Unit
Front View
Right Side
4" (102 mm) wide x 16" (406 mm)
long cutout in Vent Cowl/Splash
Shield. Shipped with Cover Plate.
Floor Sink Or Drain
With 3" (76 mm)
Minimum Drain Line
3/4" (19 mm)
Table Turndown
Flange 3/4" Max
21" (533 mm)
Rack Rail Height
Above Dishtable
1/4" (6mm) - 5/16" (8mm)
Rack Rail
Tub
Table
Use Silicone Sealer
Between Table and
Lip of Machine to
Prevent Leakage
Recommended Table Fabrication
Note: Tub Will Accept
a Table Flange
Up to 24 7/8"
(632 mm)
1
2
[15mm]
84 [2134mm]
75
1
2
[1919mm]
62
1
2
[1590mm]
34 [864mm]
29 [737mm]
6 [152mm]
7
1
2
[193mm]
21 [533mm]
25 [635mm]
25 [635mm]
10 [254mm]
7 [178mm]
D
E
A
C
A
B
18
1
2
[467mm]
25 [635mm]
4 1/2 [114mm]
4 [102mm]
Table to Table
Overall
With Doors Open
Rear of
Machine
Dish Clearance
14 [356mm]
Minimum
10" High
Table
Backsplash
Scrap
Trough
7
1
2
[190mm]
C
B
Legend
A - Machine water inlet 3/4" NPT,
180°F Hi-temp,140°F Low-temp
minimum
B - Electrical connection
C - Drain connection 1-1/2" NPT
D - Vent collar - Optional
E - Vent cowl standard
Note: All vertical dimensions are +/- 1/2"
from floor due to adjustable bullet feet.
44 [1118mm]
52 [1321mm]
60 [1524mm]
60
1
4
[1530mm]
8 [203mm]
8 [203mm]
14 [355mm]
Scrap
Trough
Minimum
21 [533mm]
B
12 [307mm]
65
1
2
[1667mm]
1 [25mm]
66
1
2
[1692mm]
13
3
4
[346mm]
7 [178mm]
AJ-44C Series Technical Manual 7610-001-76-22
Issued: 03-21-2006 Revised: 09-29-2007
SECTION 1: SPECIFICATION INFORMATION
AJ-44 ELECTRIC - LEFT TO RIGHT
5

Table of Contents

Related product manuals