EasyManua.ls Logo

Jackson AJ-44 - Steam - Left to Right

Jackson AJ-44
68 pages
Print Icon
To Next Page IconTo Next Page
To Next Page IconTo Next Page
To Previous Page IconTo Previous Page
To Previous Page IconTo Previous Page
Loading...
Drive
Unit
Left Side
66
1
2
[1692mm]
3 [79mm]
1
2
[15mm]
84 [2134mm]
A
C
O
N
Right Side
34 [864mm]
8
1
2
[217mm]
21 [533mm]
25 [635mm]
12 [307mm]
25 [635mm]
B
Dish Clearance
With Doors Open
Rear of
Machine
Base Unit
Overall
Prewash Plan View Section
with Cold Water Thermostat
16
3
4
[425mm]
16
1
4
[415mm]
N
O
6 [152mm]
4" (102 mm) wide x 16" (406 mm)
long cutout in Vent Cowl/Splash
Shield. Shipped with Cover Plate.
Minimum
Scrap
Trough
14 [355mm]
25 [635mm]
21 [533mm]
8 [203mm]
Left to Right
88 [2238mm]
44 [1121mm]
3/4" (19 mm)
Table Turndown
Flange 3/4" Max
21" (533 mm)
Rack Rail Height
Above Dishtable
1/4" (6mm) - 5/16" (8mm)
Rack Rail
Tub
Table
Use Silicone Sealer
Between Table and
Lip of Machine to
Prevent Leakage
Recommended Table Fabrication
Note: Tub Will Accept
a Table Flange
Up to 24 7/8"
(632 mm)
1 [25mm]
66
1
4
[1684mm]
B
N
36 [914mm]
Prewash
Table to Table
96 [2441mm]
80 [2035mm]
Front View
75
1
2
[1919mm]
60
1
4
[1530mm]
2
1
2
[61mm]
29 [737mm]
38 [966mm]
10
1
4
[260mm]
6 [152mm]
10 [254mm]
7 [178mm]
D
E
C
A
B
41 [1039mm]
8 [206mm]
G
24 [610mm]
23
1
2
[600mm]
O
18 [457mm]
41 [1043mm]
4 [102mm]
Drive
Unit
N
14 [356mm]
Minimum
10" High
Table
Backsplash
Scrap
Trough
Floor Sink Or Drain
With 3" (76 mm)
Minimum Drain Line
38 [966mm]
11
1
4
[285mm]
13
1
2
[345mm]
23
3
4
[604mm]
13
1
2
[345mm]
4
1
4
[110mm]
5
3
4
[148mm]
8
1
2
[218mm]
6
1
4
[159mm]
M
K
L
J
F
H
17
1
2
[445mm]
12
1
2
[316mm]
F
16
3
8
[417mm]
15
3
4
[400mm]
11
5
8
[295mm]
6
3
8
[162mm]
M
J
H
L
43 [1092mm]
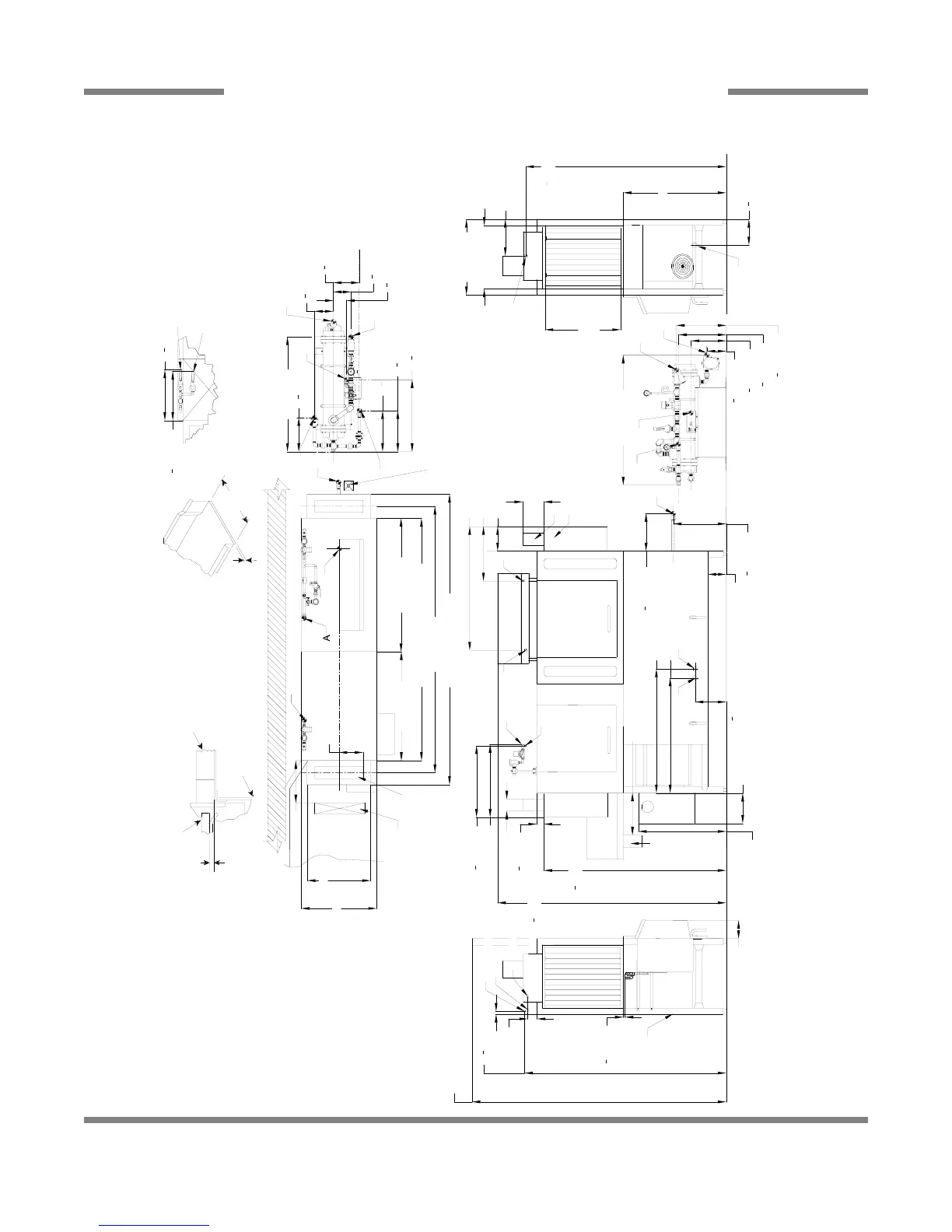
Legend
A - Machine water inlet 3/4" NPT 180°F
Hi-temp,140°F Low-temp minimum
B - Electrical connection
C - Drain connection 1-1/2" NPT
D - Vent collar - Optional
E - Vent cowl standard
F - 3/4" NPT Steam connection
G - 3/4" NPT Condensate return
H - Steam electrical connection
J - 1" NPT Steam connection
K - 3/4" Condensate connection
L - 3/4" NPT Incoming 110°F water
connection
M - 3/4" NPT 180°F water to dishmachine.
N - Prewash water inlet 3/4" NPT
110°F-140°F
O - Cold water thermostat plumbing
connection 3/4" NPT - Optional
Note: All vertical dimensions are +/- 1/2"
from floor due to adjustable bullet feet.
AJ-44C Series Technical Manual 7610-001-76-22
Issued: 03-21-2006 Revised: 09-29-2007
SECTION 1: SPECIFICATION INFORMATION
AJ-80 STEAM - LEFT TO RIGHT
21

Table of Contents

Related product manuals