Drive
Unit
Left Side
66
1
2
[1692mm]
3 [79mm]
1
2
[15mm]
84 [2134mm]
A
M
L
With Doors Open
Rear of
Machine
6 [152mm]
Right to Left
1 [25mm]
66
1
4
[1684mm]
Floor Sink Or Drain
With 3" (76 mm)
Minimum Drain Line
25 [635mm]
4 1/2 [114mm]
8
1
4
[210mm]
21 [533mm]
B
A
L
Table to Table
Overall
Prewash Plan View Section
with Cold Water Thermostat
16
3
4
[425mm]
16
1
4
[415mm]
L
M
88 [2238mm]
3/4" (19 mm)
Table Turndown
Flange 3/4" Max
21" (533 mm)
Rack Rail Height
Above Dishtable
1/4" (6mm) - 5/16" (8mm)
Rack Rail
Tub
Table
Use Silicone Sealer
Between Table and
Lip of Machine to
Prevent Leakage
Recommended Table Fabrication
Note: Tub Will Accept
a Table Flange
Up to 24 7/8"
(632 mm)
4" (102 mm) wide x 16" (406 mm)
long cutout in Vent Cowl/Splash
Shield. Shipped with Cover Plate.
44 [1121mm]
Base Unit Prewash
36 [914mm]
96 [2441mm]
80 [2035mm]
Front View
75
1
2
[1921mm]
2
1
2
[61mm]
62
3
4
[1592mm]
29 [735mm]
6 [152mm]
10 [254mm]
A
B
41 [1042mm]
C
23
1
2
[598mm]
24 [611mm]
M
42 [1069mm]
4 [102mm]
Drive
Unit
L
D
E
8 [203mm]
41 [1041mm]
7 [178mm]
10
1
4
[264mm]
C
Right Side
34 [864mm]
8
1
2
[217mm]
21 [533mm]
25 [635mm]
12 [307mm]
25 [635mm]
B
Dish Clearance
6 [155mm]
J
K
G
H
36 [914mm]
31
1
4
[797mm]
6
1
2
[165mm]
6 [152mm]
26
1
2
[673mm]
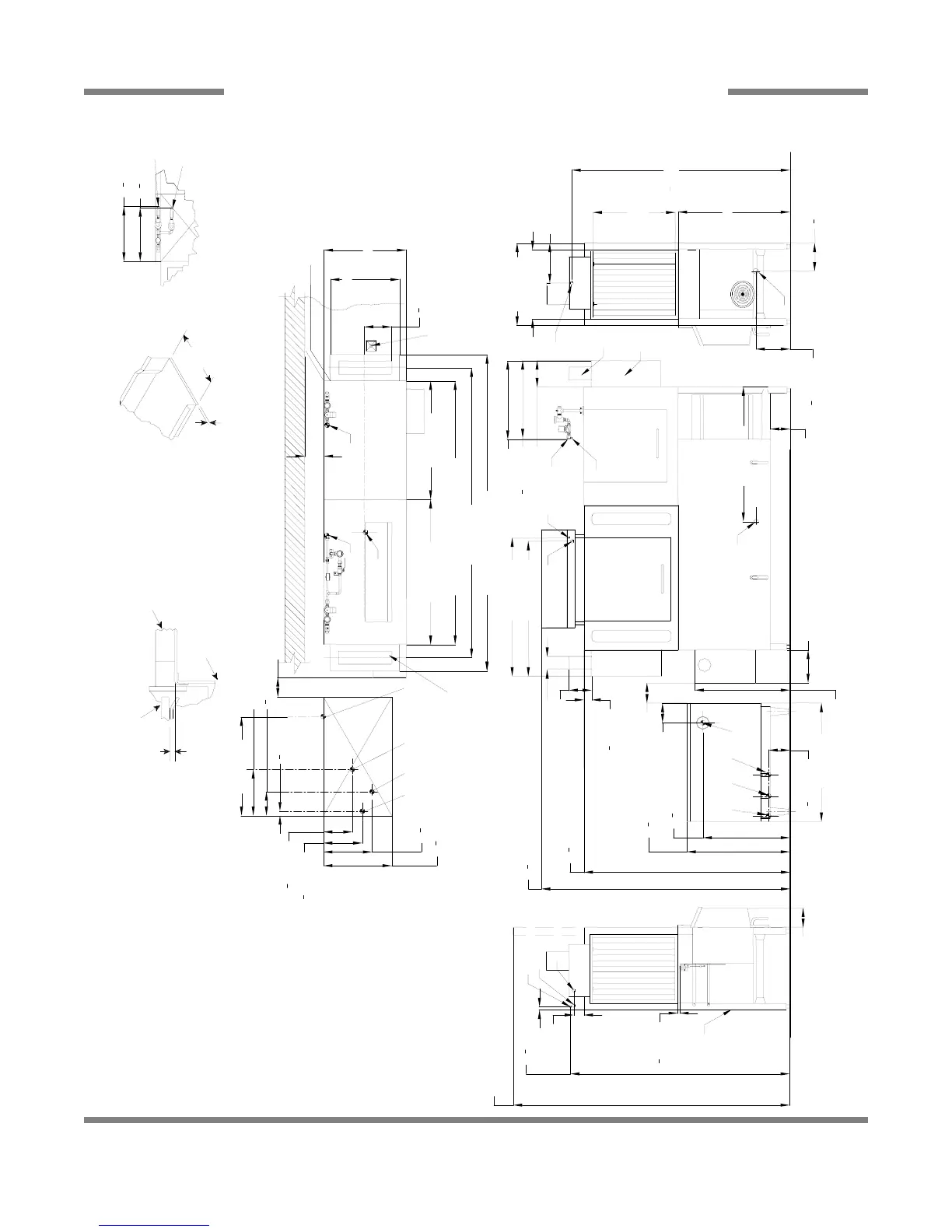
Legend
A - Machine water inlet 3/4" NPT, 180°F
Hi-temp,140°F Low-temp minimum
B - Electrical connection
C - Drain connection 1-1/2" NPT
D - Vent collar - Optional
E - Vent cowl standard
F - 3/4" NPT 180°F Water Inlet for wash tank
fill, final rinse, & tank heating. From gas
booster heater. Interconnecting hose
provided by manufacturer.
G - 3/4" NPT 140°F Water inlet for
gas booster heater.
H - 3/4" NPT 180°F Water Outlet
connection to line on dishmachine.
Connection hose provided by
manufacturer.
J - 3/4" NPT Gas Connection
K - 4" OD Vent pipe connection. Flue to
be installed to meet local codes by
installing contractor.
L - Prewash water inlet 3/4" NPT
110°F-140°F
M - Cold water thermostat plumbing
connection 3/4" NPT - Optional
Note: All vertical dimensions are +/- 1/2" from
floor due to adjustable bullet feet.
6 [152mm]
30 [763mm]
14 [357mm]
7
1
4
[185mm]
1
1
4
[35mm]
K
J
H
G
8
3
4
[222mm]
11
3
4
[298mm]
14
3
4
[375mm]
20
3
4
[527mm]
AJ-44C Series Technical Manual 7610-001-76-22
Issued: 03-21-2006 Revised: 09-29-2007
SECTION 1: SPECIFICATION INFORMATION
AJ-80 GAS - RIGHT TO LEFT
20