EasyManua.ls Logo

Jackson AJ-44 - Gas - Left to Right

Jackson AJ-44
68 pages
Print Icon
To Next Page IconTo Next Page
To Next Page IconTo Next Page
To Previous Page IconTo Previous Page
To Previous Page IconTo Previous Page
Loading...
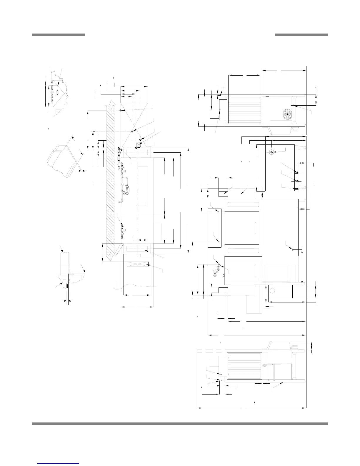
Drive
Unit
Left Side
Drive
Unit
4
1
4
[105mm]
3 [79mm]
1
2
[15mm]
84 [2134mm]
75
1
2
[1919mm]
60
1
4
[1530mm]
2
1
2
[61mm]
29 [737mm]
6 [152mm]
10 [254mm]
7 [178mm]
D
E
A
C
C
M
B
4 [102mm]
8 [206mm]
24 [609mm]
41 [1040mm]
L
A
18 [457mm]
27 [687mm]
ML
23
1
2
[598mm]
Front View
Right Side
34 [864mm]
8
1
2
[217mm]
21 [533mm]
25 [635mm]
12 [307mm]
1 [25mm]
25 [635mm]
B
A
Dish Clearance
With Doors Open
Rear of
Machine
14 [356mm]
Minimum
10" High
Table
Backsplash
Scrap
Trough
6 [152mm]
Table to Table
Overall
Prewash Plan View Section
with Cold Water Thermostat
16
3
4
[425mm]
16
1
4
[415mm]
L
M
20
3
4
[527mm]
8
3
4
[222mm]
11
3
4
[298mm]
14
3
4
[375mm]
6 [154mm]
30 [763mm]
14
1
4
[363mm]
7
1
4
[185mm]
1
1
4
[35mm]
31
1
4
[795mm]
6
1
2
[165mm]
26
1
2
[673mm]
6 [152mm]
4" (102 mm) wide x 16" (406 mm)
long cutout in Vent Cowl/Splash
Shield. Shipped with Cover Plate.
Minimum
Scrap
Trough
14 [355mm]
Floor Sink Or Drain
With 3" (76 mm)
Minimum Drain Line
25 [635mm]
21 [533mm]
8 [203mm]
Left to Right
Legend
A - Machine water inlet 3/4" NPT, 180°F
Hi-temp,140°F Low-temp minimum
B - Electrical connection
C - Drain connection 1-1/2" NPT
D - Vent collar - Optional
E - Vent cowl standard
F - 3/4" NPT 180°F Water Inlet for wash tank
fill, final rinse, & tank heating. From gas
booster heater. Interconnecting hose
provided by manufacturer.
G - 3/4" NPT 140°F Water inlet for
gas booster heater.
H - 3/4" NPT 180°F Water Outlet
connection to line on dishmachine.
Connection hose provided by
manufacturer.
J - 3/4" NPT Gas Connection
K - 4" OD Vent pipe connection. Flue to
be installed to meet local codes by
installing contractor.
L - Prewash water inlet 3/4" NPT
110°F-140°F
M - Cold water thermostat plumbing
connection 3/4" NPT - Optional
Note: All vertical dimensions are +/- 1/2" from
floor due to adjustable bullet feet.
36 [914mm]
H G
J
K
F
82 [2086mm]
74 [1883mm]
66 [1679mm]
3/4" (19 mm)
Table Turndown
Flange 3/4" Max
21" (533 mm)
Rack Rail Height
Above Dishtable
1/4" (6mm) - 5/16" (8mm)
Rack Rail
Tub
Table
Use Silicone Sealer
Between Table and
Lip of Machine to
Prevent Leakage
Recommended Table Fabrication
Note: Tub Will Accept
a Table Flange
Up to 24 7/8"
(632 mm)
H G
J
K
L
44 [1121mm]22 [559mm]
Base Unit
Prewash
AJ-44C Series Technical Manual 7610-001-76-22
Issued: 03-21-2006 Revised: 09-29-2007
SECTION 1: SPECIFICATION INFORMATION
AJ-66 GAS - LEFT TO RIGHT
13

Table of Contents

Related product manuals