EasyManua.ls Logo

Jackson AJ-44 - Steam - Right to Left

Jackson AJ-44
68 pages
Print Icon
To Next Page IconTo Next Page
To Next Page IconTo Next Page
To Previous Page IconTo Previous Page
To Previous Page IconTo Previous Page
Loading...
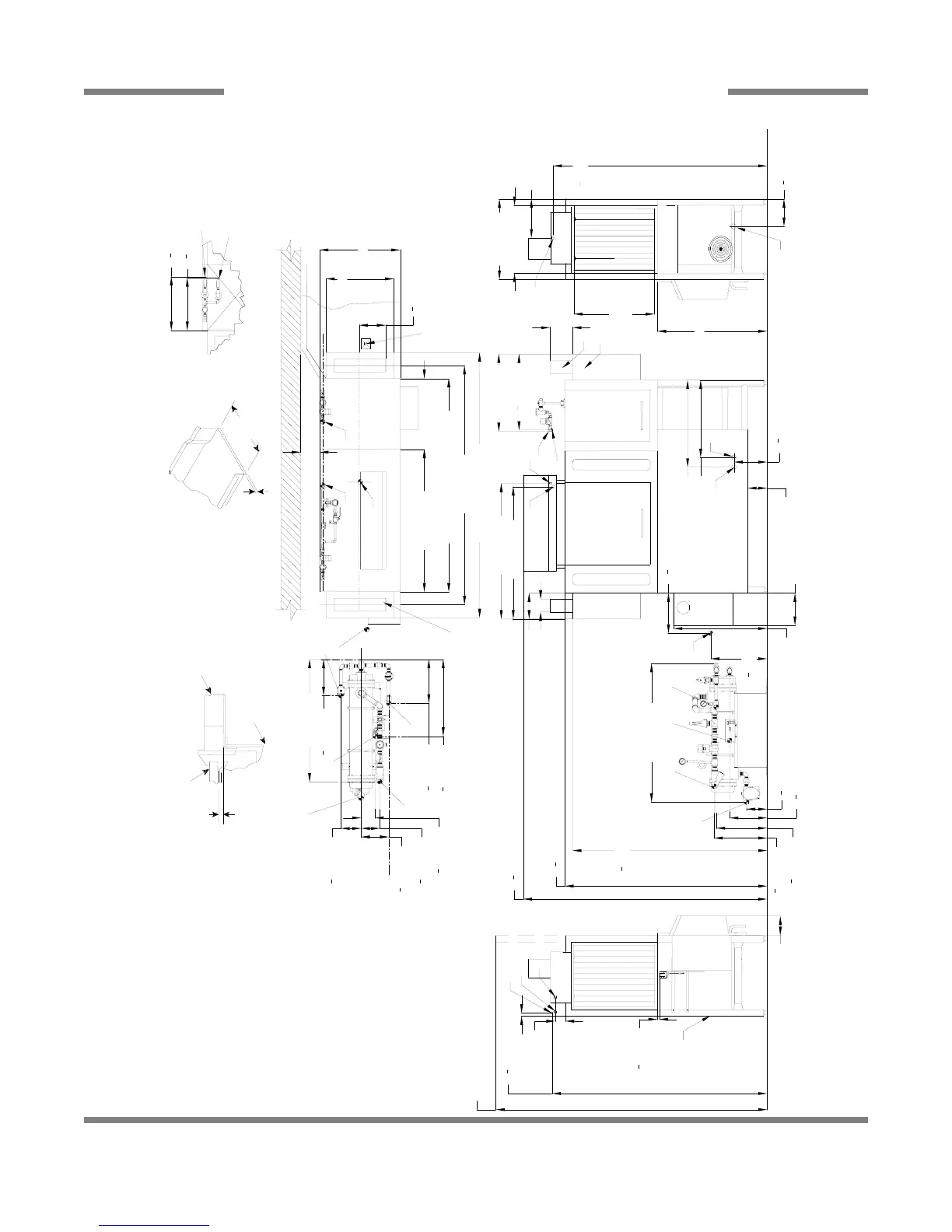
C
Right Side
34 [864mm]
8
1
2
[217mm]
21 [533mm]
25 [635mm]
12 [307mm]
25 [635mm]
B
Dish Clearance
Drive
Unit
Left Side
66
1
2
[1692mm]
3 [79mm]
1
2
[15mm]
84 [2134mm]
A
G
F
With Doors Open
Rear of
Machine
6 [152mm]
Right to Left
Legend
A - Machine water inlet 3/4" NPT, 180°F
Hi-temp,140°F Low-temp minimum
B - Electrical connection
C - Drain connection 1-1/2" NPT
D - Vent collar - Optional
E - Vent cowl standard
F - Prewash water inlet 3/4" NPT
110°F-140°F
G - Cold water thermostat plumbing
connection 3/4" NPT - Optional
H - Steam electrical connection
J - 1" NPT Steam connection
K - 3/4" Condensate connection
L - 3/4" NPT Incoming 110°F water
connection
M - 3/4" NPT 180°F water to dishmachine.
Note: All vertical dimensions are +/- 1/2"
from floor due to adjustable bullet feet.
1 [25mm]
Drive
Unit
Front View
75
1
2
[1919mm]
62
1
2
[1590mm]
29 [737mm]
6 [152mm]
10 [254mm]
C
A
B
4 [102mm]
7 [178mm]
D
E
8 [203mm]
42 [1067mm]
41 [1041mm]
24 [610mm]
10
1
4
[260mm]
F
24 [610mm]
G
23
1
2
[599mm]
60
1
4
[1530mm]
66
1
4
[1684mm]
Floor Sink Or Drain
With 3" (76 mm)
Minimum Drain Line
25 [635mm]
4 1/2 [114mm]
8
1
4
[210mm]
21 [533mm]
B
A
F
Table to Table
Overall
Prewash Plan View Section
with Cold Water Thermostat
16
3
4
[425mm]
16
1
4
[415mm]
F
G
82 [2086mm]
74 [1883mm]
66 [1679mm]
3/4" (19 mm)
Table Turndown
Flange 3/4" Max
21" (533 mm)
Rack Rail Height
Above Dishtable
1/4" (6mm) - 5/16" (8mm)
Rack Rail
Tub
Table
Use Silicone Sealer
Between Table and
Lip of Machine to
Prevent Leakage
Recommended Table Fabrication
Note: Tub Will Accept
a Table Flange
Up to 24 7/8"
(632 mm)
4" (102 mm) wide x 16" (406 mm)
long cutout in Vent Cowl/Splash
Shield. Shipped with Cover Plate.
22 [559mm]44 [1121mm]
Base Unit Prewash
12
1
2
[316mm]
F
H
J
L
M
K
L
H
J
M
F
38 [966mm]
11
1
4
[285mm]
13
1
2
[345mm]
23
3
4
[604mm]
4
1
4
[110mm]
5
3
4
[148mm]
8
1
2
[218mm]
6
1
4
[159mm]
43 [1092mm]
17
1
2
[445mm]
6
1
2
[162mm]
11
1
2
[295mm]
15
3
4
[400mm]
16
1
2
[417mm]
G
27 [686mm]
AJ-44C Series Technical Manual 7610-001-76-22
Issued: 03-21-2006 Revised: 09-29-2007
SECTION 1: SPECIFICATION INFORMATION
AJ-66 STEAM - RIGHT TO LEFT
16

Table of Contents

Related product manuals