EasyManua.ls Logo

Jackson AVENGER HT-E - Nomenclature; Avenger HT-E Model Identification

Jackson AVENGER HT-E
61 pages
Print Icon
To Next Page IconTo Next Page
To Next Page IconTo Next Page
To Previous Page IconTo Previous Page
To Previous Page IconTo Previous Page
Loading...
1
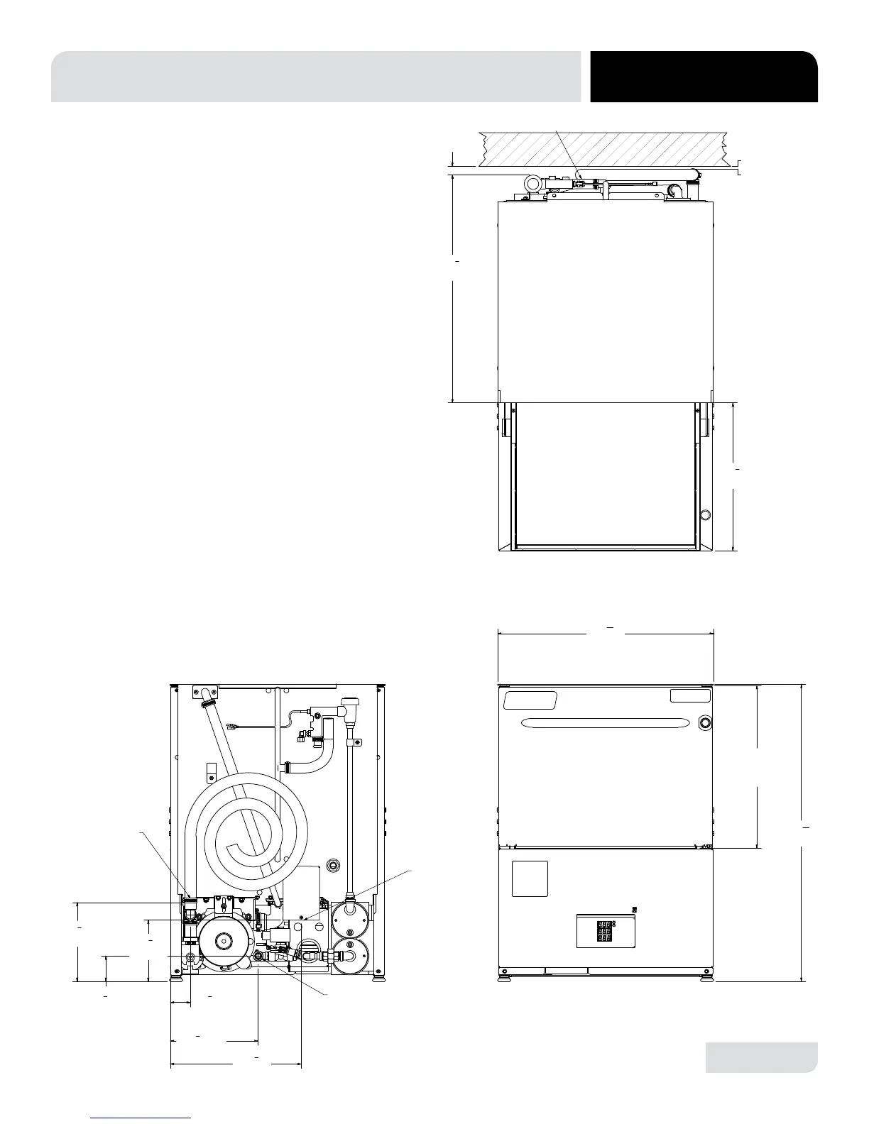
MACHINE DIMENSIONS
SPECIFICATIONS
16
5
8
[422 mm]
25
5
8
[650 mm]
1
[25 mm]
Wall Clearance
33
5
1
6
[846
mm]
14
[356 mm]
Dish
Clearance
6
7
8
[175 mm]
14
5
8
[373 mm]
24
3
16
[615 mm]
LEGEND:
A- Water Inlet - 3/4" Male Garden Hose Thread (M-GHT)
(Connect to a true 1/2" ID water line)
*Note: Water inlet dimensions for units
supplied with a PRV will be * ?? ** ??
B- Electrical Connection
C- Drain Connection - 6' coiled drain hose.
Shipped inside machine. Must be installed
no more than 24" AFF
All dimensions from floor can be increased
1" with adjustable feet supplied
.
BACK
FRONT
Door Open
TOP
C
B
B
2
7
8
[73 mm]
*
9
7
8
[250 mm]
**
A
8
7
8
[225 mm]
2
1
4
[57 mm]
See note above
for water inlet
dimensions, for a
machine supplied
with a PRV
1/4”
[6 mm]
BACK
FRONT
* 8 1/2 ** 10 1/2
PRV (AVENGER HT-E-G)
G (Garland)

Other manuals for Jackson AVENGER HT-E

Related product manuals