EasyManua.ls Logo

Jackson CONSERVER XL-E - XL HH Dimensions

Jackson CONSERVER  XL-E
64 pages
Print Icon
To Next Page IconTo Next Page
To Next Page IconTo Next Page
To Previous Page IconTo Previous Page
To Previous Page IconTo Previous Page
Loading...
07610-003-92-84-Q
4
CONSERVER XL-E HH
13 in
[328 mm]
5
3
4
in
[146 mm]
79
1
2
in
[2019 mm]
DOORS OPEN
29
1
2
in
[748 mm]
76 in
[1928 mm]
W
DET
SAN
RA
67
3
4
in
[1721 mm]
2
1
2
in
[63 mm]
9
3
4
in
[248 mm]
29
1
4
in
[743 mm]
E1
6
3
4
in
[174 mm]
24
1
2
in
[620 mm]
33
1
2
in
[853 mm]
31 in
[787 mm]
13
1
4
in
[339 mm]
1 in
[24 mm]
4 in
[102 mm]
MINIMUM
4 in
[102 mm]
MINIMUM
CONSERVER XL-E HH
13 in
[328 mm]
5
3
4
in
[146 mm]
79
1
2
in
[2019 mm]
DOORS OPEN
29
1
2
in
[748 mm]
76 in
[1928 mm]
W
DET
SAN
RA
67
3
4
in
[1721 mm]
2
1
2
in
[63 mm]
9
3
4
in
[248 mm]
29
1
4
in
[743 mm]
E1
6
3
4
in
[174 mm]
24
1
2
in
[620 mm]
33
1
2
in
[853 mm]
31 in
[787 mm]
13
1
4
in
[339 mm]
1 in
[24 mm]
4 in
[102 mm]
MINIMUM
4 in
[102 mm]
MINIMUM
CONSERVER XL-E HH
13 in
[328 mm]
5
3
4
in
[146 mm]
79
1
2
in
[2019 mm]
DOORS OPEN
29
1
2
in
[748 mm]
76 in
[1928 mm]
W
DET
SAN
RA
67
3
4
in
[1721 mm]
2
1
2
in
[63 mm]
9
3
4
in
[248 mm]
29
1
4
in
[743 mm]
E1
6
3
4
in
[174 mm]
24
1
2
in
[620 mm]
33
1
2
in
[853 mm]
31 in
[787 mm]
13
1
4
in
[339 mm]
1 in
[24 mm]
4 in
[102 mm]
MINIMUM
4 in
[102 mm]
MINIMUM
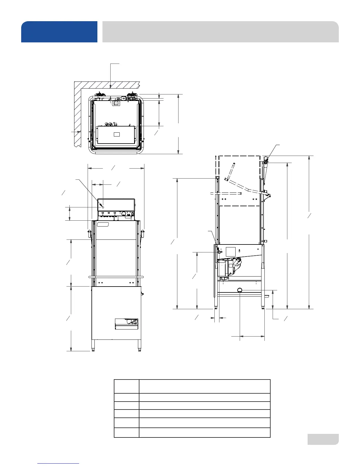
SPECIFICATIONS
XL HH DIMENSIONS
All dimensions from the oor can be increased
1 1/2" using the machine's adjustable feet.
E1 MAIN ELECTRICAL CONNECTION (1 1/8” HOLE)
(Located on back of control box)
W MAIN INLET WATER CONNECTION (3/4" NPT)
D DRAIN CONNECTION (2” NPT)
DET DETERGENT BULKHEAD ACCESS (7/8” HOLE)
SAN SANITIZER INLET
RA RINSE-AID INLET

Other manuals for Jackson CONSERVER XL-E

Related product manuals