EasyManua.ls Logo

Jackson CONSERVER XL-E - XL HH False Panel Instructions

Jackson CONSERVER  XL-E
64 pages
Print Icon
To Next Page IconTo Next Page
To Next Page IconTo Next Page
To Previous Page IconTo Previous Page
To Previous Page IconTo Previous Page
Loading...
07610-003-92-84-Q
16
Rack rail removed and
repositioned for a
corner operation.
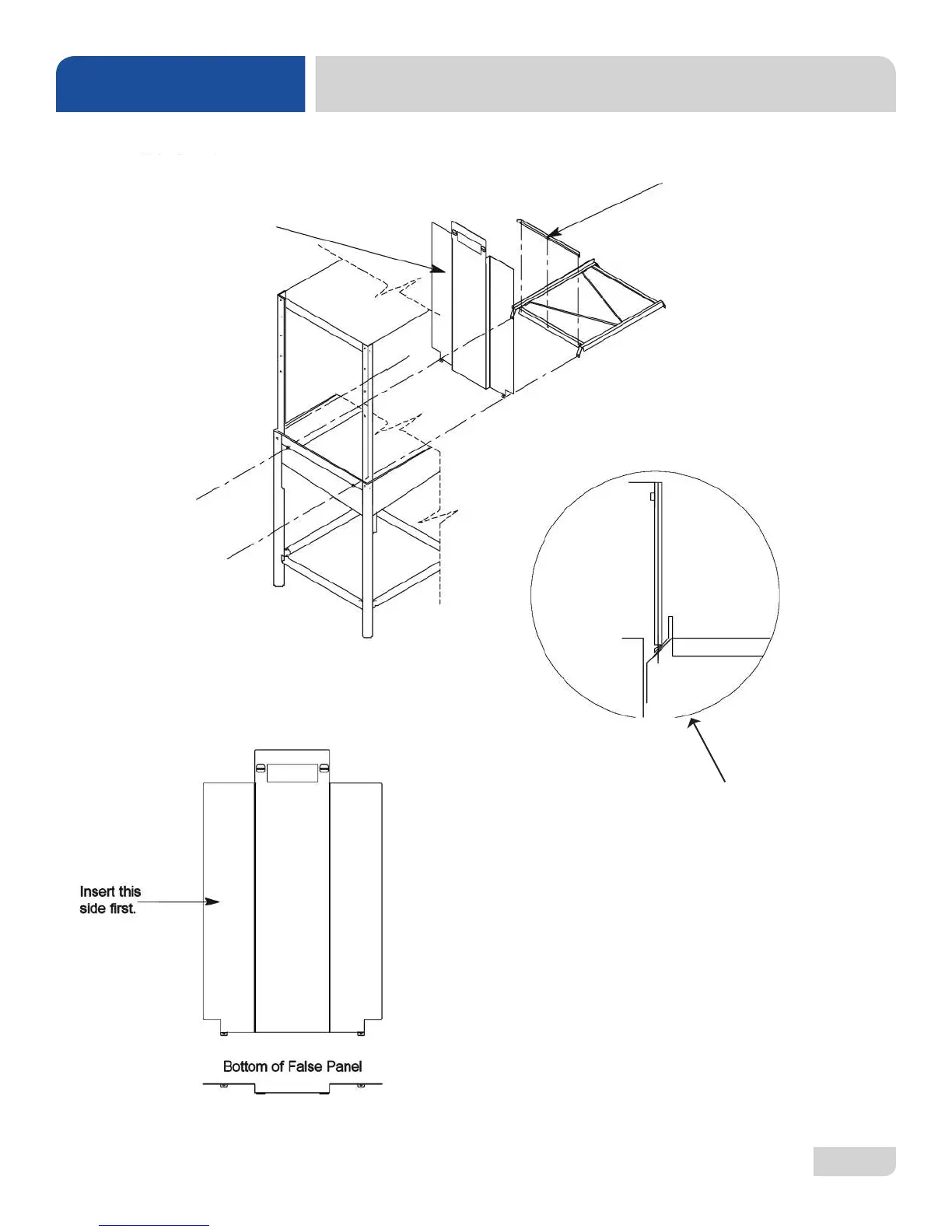
XL HH FALSE PANEL INSTRUCTIONS
INSTALLATION
False Panel Weldment
05700-002-52-54
False Panel Kit
05700-002-52-89
False panel positioned in unit.
The false panel will mount inside of
the dishmachine.
1. Remove the rack assembly from the dishmachine.
2. Position the panel in the dishmachine on the side to be closed.
3. Hold the panel against the side of the dishmachine and push
upward.
4. The panel will clip in at the top, inside of the unit.
5. The holes in the false panel will line up with the rack assembly
holes.
6. Reinstall the screws for the rack assembly which will secure
the false panel to the unit.
7. Reassemble the rack track in an "L" shape for a corner operation.

Other manuals for Jackson CONSERVER XL-E

Related product manuals