EasyManua.ls Logo

Jackson CONSERVER XL-E - Dishwasher Specifications; Dimensions, Capacities, and Water Requirements; Installation Instructions; Initial Setup and Connections

Jackson CONSERVER  XL-E
64 pages
Print Icon
To Next Page IconTo Next Page
To Next Page IconTo Next Page
To Previous Page IconTo Previous Page
To Previous Page IconTo Previous Page
Loading...
07610-003-92-84-Q
2
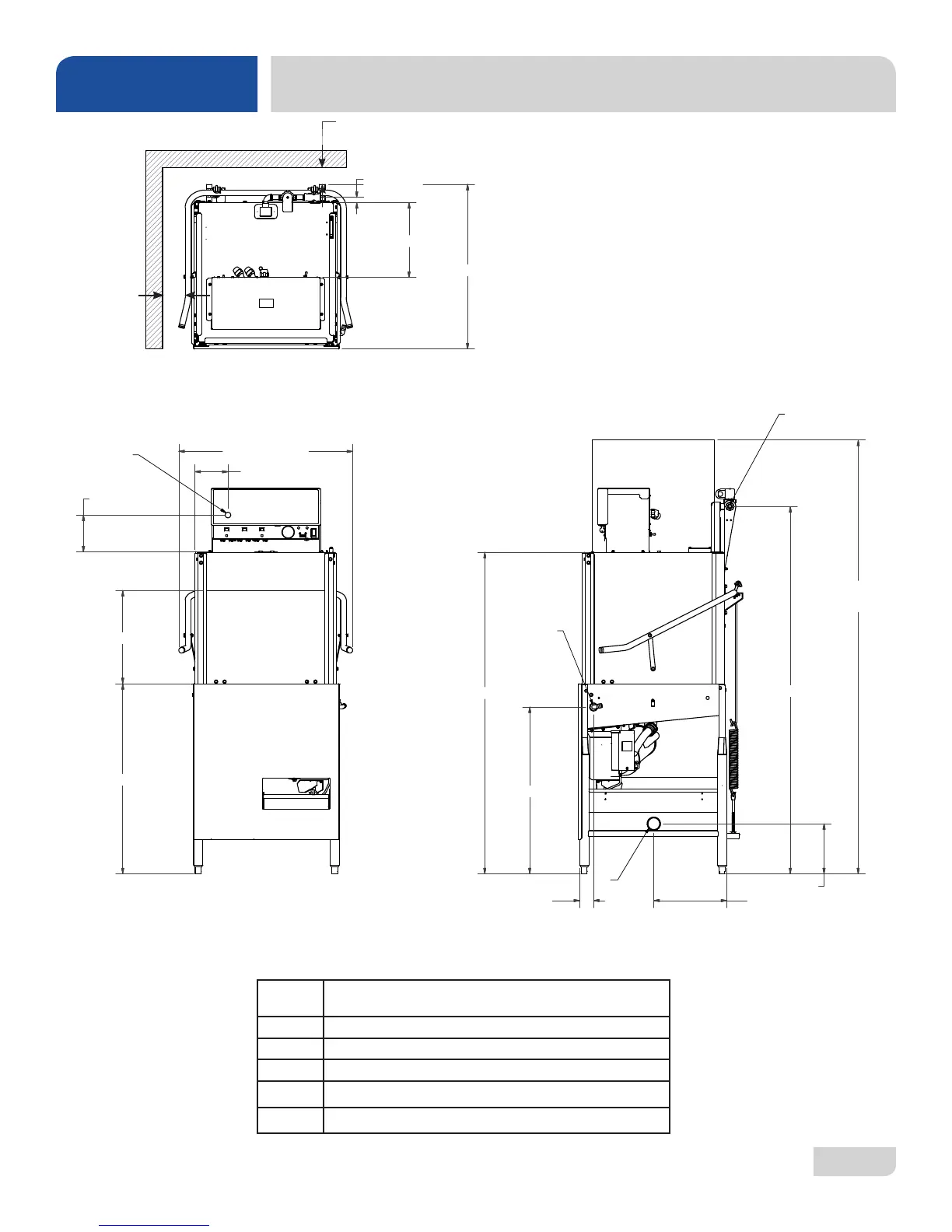
E1 MAIN ELECTRICAL CONNECTION (1 1/8” HOLE)
(Located on back of control box)
W MAIN INLET WATER CONNECTION (3/4" NPT)
D DRAIN CONNECTION (2” NPT)
DET DETERGENT BULKHEAD ACCESS (7/8” HOLE)
SAN SANITIZER INLET
RA RINSE-AID INLET
1 (24.63 mm)
13 1/4 (337.18 mm)
29 1/2 (750.28mm)
78 (1981.20 mm)
WITH DOORS
OPEN
W
65 (1649.52 mm)
13 (330.20 mm)
D
8 7/8 (224.11 mm)
2 1/2 (62.57 mm)
29 1/2 (748.82 mm)
56 7/8 (1444.05 mm)
DET
SAN
RA
E1
ALL VERTICAL DIMENSIONS ARE
+/-
1
2" FROM FLOOR
30 3/8 (772.63 mm)
33 1/2 (852.45 mm)
6 3/4 (171.45 mm)
6 (152.40 mm)
17 1/4 (438.15 mm)
XL-E DIMENSIONS
SPECIFICATIONS
All dimensions from the oor can be increased
1 1/2" using the machine's adjustable feet.
CONSERVER XL-E HH
13 in
[328 mm]
5
3
4
in
[146 mm]
79
1
2
in
[2019 mm]
DOORS OPEN
29
1
2
in
[748 mm]
76 in
[1928 mm]
W
DET
SAN
RA
67
3
4
in
[1721 mm]
2
1
2
in
[63 mm]
9
3
4
in
[248 mm]
29
1
4
in
[743 mm]
E1
6
3
4
in
[174 mm]
24
1
2
in
[620 mm]
33
1
2
in
[853 mm]
31 in
[787 mm]
13
1
4
in
[339 mm]
1 in
[24 mm]
4 in
[102 mm]
MINIMUM
4 in
[102 mm]
MINIMUM
CONSERVER XL-E HH
13 in
[328 mm]
5
3
4
in
[146 mm]
79
1
2
in
[2019 mm]
DOORS OPEN
29
1
2
in
[748 mm]
76 in
[1928 mm]
W
DET
SAN
RA
67
3
4
in
[1721 mm]
2
1
2
in
[63 mm]
9
3
4
in
[248 mm]
29
1
4
in
[743 mm]
E1
6
3
4
in
[174 mm]
24
1
2
in
[620 mm]
33
1
2
in
[853 mm]
31 in
[787 mm]
13
1
4
in
[339 mm]
1 in
[24 mm]
4 in
[102 mm]
MINIMU
M
4 in
[102 mm]
MINIMUM

Other manuals for Jackson CONSERVER XL-E

Related product manuals