EasyManua.ls Logo

Jandy pool/spa heater - Professional Inspection; Specifications and Dimensions; General Information; Specifications

Jandy pool/spa heater
32 pages
Print Icon
To Next Page IconTo Next Page
To Next Page IconTo Next Page
To Previous Page IconTo Previous Page
To Previous Page IconTo Previous Page
Loading...
Page 26
3. Do not use the heater if any part has been under water.
Immediately call a qualified professional technician to
inspect the heater and replace any part of the control
system and any gas control which has been under
water.
4. Check for spider webs and other debris in the heater
and vent outlet especially at spring start up.
3H-2. Professional Inspection
Inspections performed at least once a year by a
qualified professional technician, are required to keep the
heater operating safely and efficiently through the years.
The following basic safety checks must be performed.
1. Inspect the burners and verify that they are clean.
2. Inspect the fan for damage.
3. Make sure that the pressure switch operates properly
by shutting the filter pump off and on a few times.
The burner should go off immediately after the
pump stops. An ignition sequence should start
shortly after the pump is turned back on.
4. Make a visual check of the main burner flame. The
flame can be seen in a mirror arrangement held
beneath the burners. The flame should be light blue
with little or no yellow tips in the flame
5. Inspect the gas and electronic controls, including the
following:
a. High temperature limit switch
b. Water pressure switch
c. Exhaust temperature limit switch
d. Automatic gas valve
e. Fusible Link
f. Temperature control
g. Control circuit fuse
6. Perform a temperature rise test in accordance with
Section 2J-5.
7. If the heater is equipped with a pressure relief valve,
clean any accumulated corrosion and make sure that
water runs freely through it.
8. Inspect combustion chamber and burner for corrosion
and indication of improper operation.
9. Regularly inspect electrical controls for deterioration.
Repair and replace as necessary.
NOTE: Keep this manual in a safe place for future
reference by you and your professional technician when
inspecting and servicing the heater.
SECTION 4.
Specifications and Dimensions
4A. General Information
4A-1 Specifications
1. The Laars LX and LT heaters are design certified by
International Approval Services as a swimming pool
heater under ANSI Standard Z21.56 for use in the
United States and Standard CSA-4.7 for use in
Canada
2. The Laars LX and LT are certified for use indoors
and outdoors in the United States.
3. The Laars LX pool heater is for use with natural gas
or liquefied petroleum gas. Ratings apply to either
fuel.
4. The Laars LX and LT high altitude heaters are
derated at the factory to compensate for atmospheric
conditions at elevations higher than 3000 feet above
sea level.
5. The Laars LX and LT require a 120VAC/60Hz or
240VAC/60Hz electrical supply for operation.
6. The maximum working pressure of the Laars LX and LT
heaters is 75 psig.
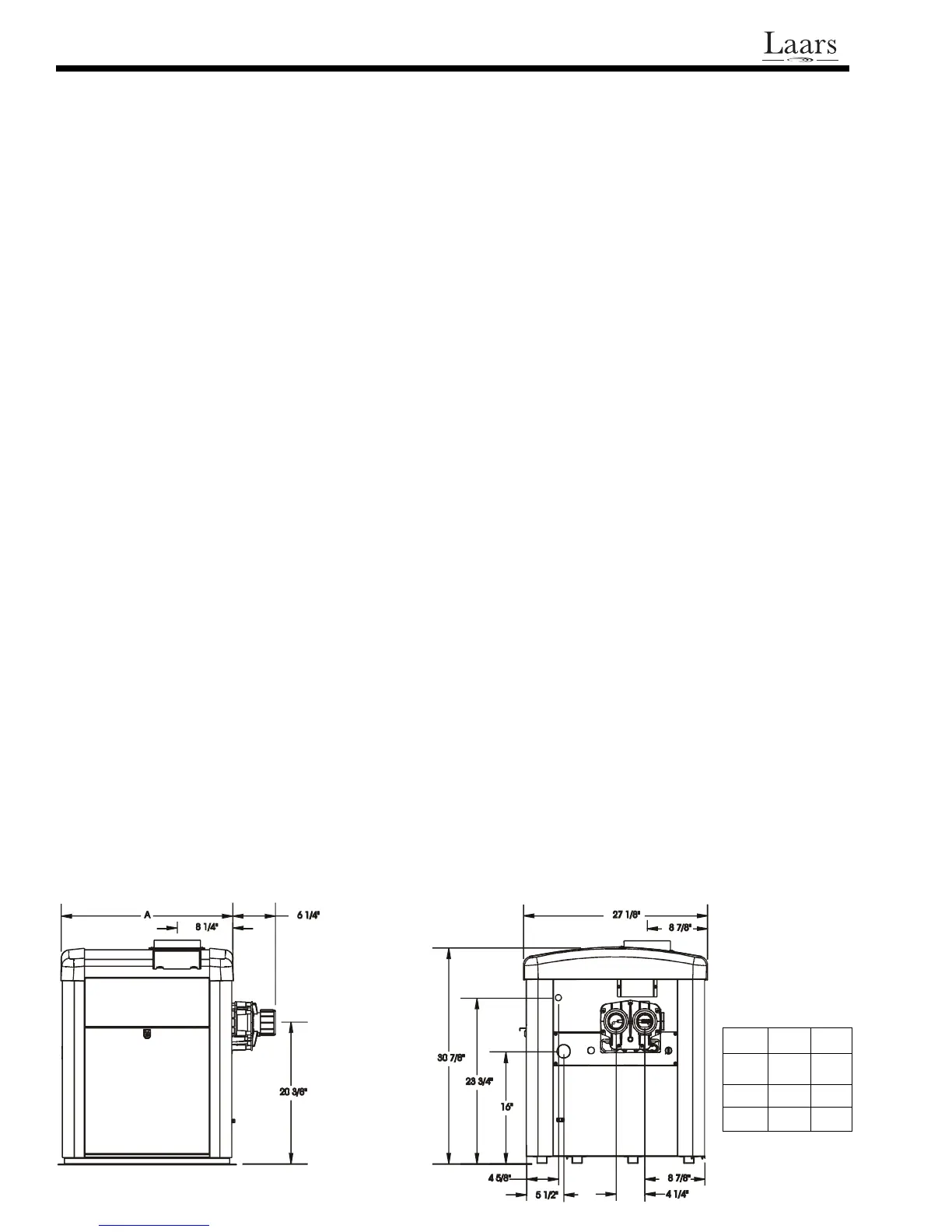
4A-2 Dimensions
Model
No. 250 400
Width
'A' 28 1/4" 34 1/4"
Input
BTU 250,000 400,000
Shipping
Weight 206 lbs 318lbs

Table of Contents

Related product manuals