EasyManua.ls Logo

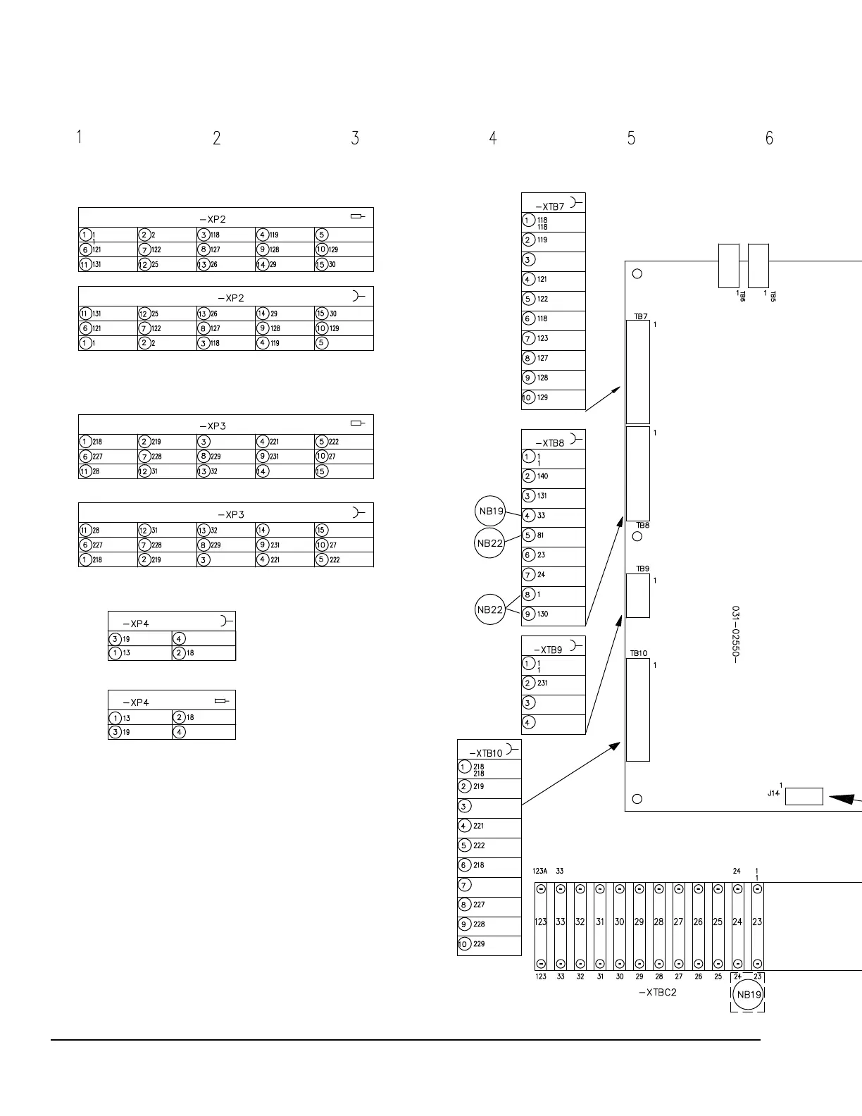
Johnson Controls YORK YLUA0078Z Series - Micro Panel Connections; FIGURE 15 - Micro Panel Connections

Johnson Controls YORK YLUA0078Z Series
178 pages
Print Icon
To Next Page IconTo Next Page
To Next Page IconTo Next Page
To Previous Page IconTo Previous Page
To Previous Page IconTo Previous Page
Loading...
JOHNSON CONTROLS
86
FORM 150.73-NM1
ISSUE DATE: 07/03/2024
SECTION 5: TECHNICAL DATA
Micro panel connections
FIGURE 15 - MICRO PANEL CONNECTIONS
035-21589-102 REVD

Table of Contents

Related product manuals