EasyManua.ls Logo

Kampmann Katherm HK - Page 22

Kampmann Katherm HK
84 pages
Print Icon
To Next Page IconTo Next Page
To Next Page IconTo Next Page
To Previous Page IconTo Previous Page
To Previous Page IconTo Previous Page
Loading...
Katherm HK
Assembly, installation and operating instructions
22
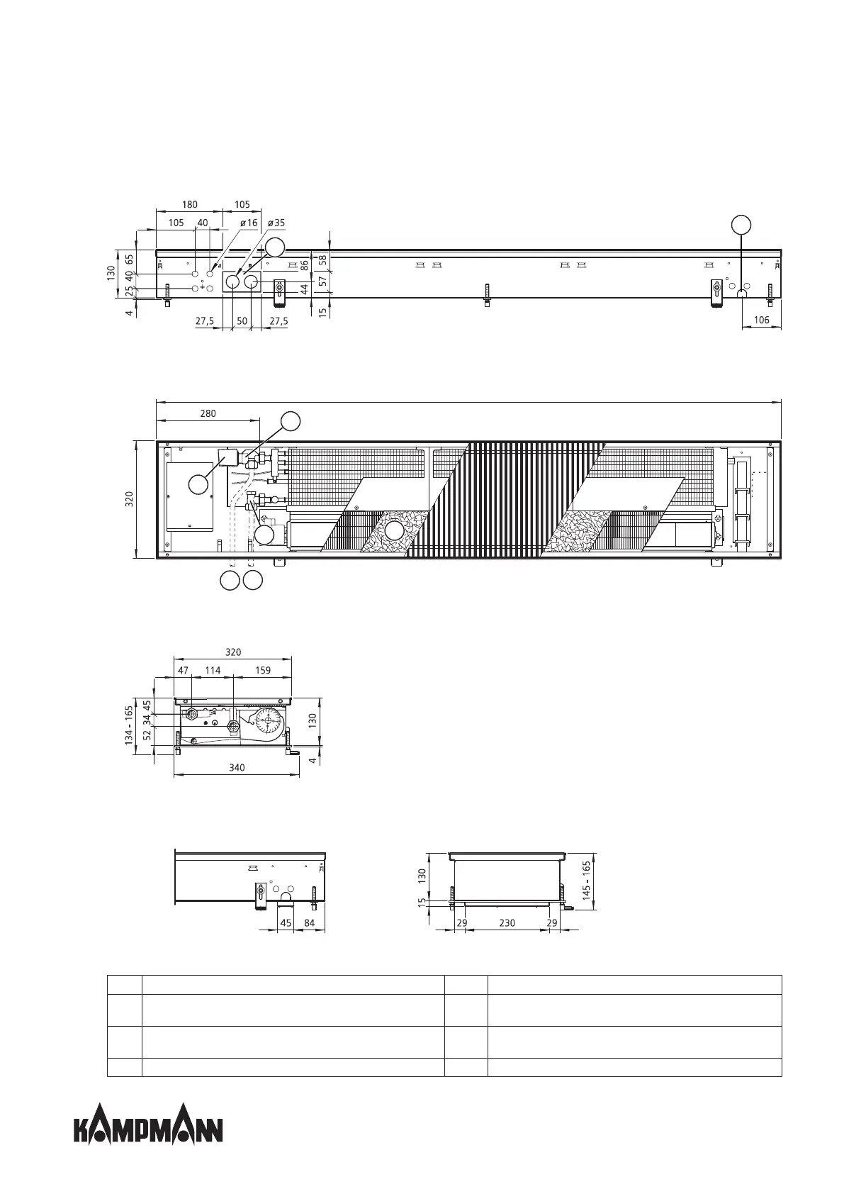
Katherm HK 320 E, 2-pipe, trench height 130mm
1
2
3
4
5
6
7
Front view, connection openings
Trench length
Top view, water connection on room side
Window side
Window side Room side
Window side Room side
Cross-section (cooling or heating)
Example: Roll-up grille
Front view with built-in
condensate pump
Side view with built-in
condensate pump
6
Front view with built-in condensate pump Side view with built-in condensate pump
1
Heating/ cooling supply
2
Heating/ cooling return
3
½” valve body, axial, type 346914 and/or type 346911 (flow-de-
pendent)
4
Thermoelectric actuator, type 146906
5
½” return shut-off valve, angled, type 145953 and/or type 145955
(flow-dependent)
6
Pipe openings, punched
7
Filter (optional)

Table of Contents

Other manuals for Kampmann Katherm HK

Related product manuals