EasyManua.ls Logo

Karel MS48 - System Installation Guide

Karel MS48
70 pages
Print Icon
To Next Page IconTo Next Page
To Next Page IconTo Next Page
To Previous Page IconTo Previous Page
To Previous Page IconTo Previous Page
Loading...
Karel MS48 Installation & Maintenance Guide
Edition 3.2
35
II. SYSTEM INSTALLATION
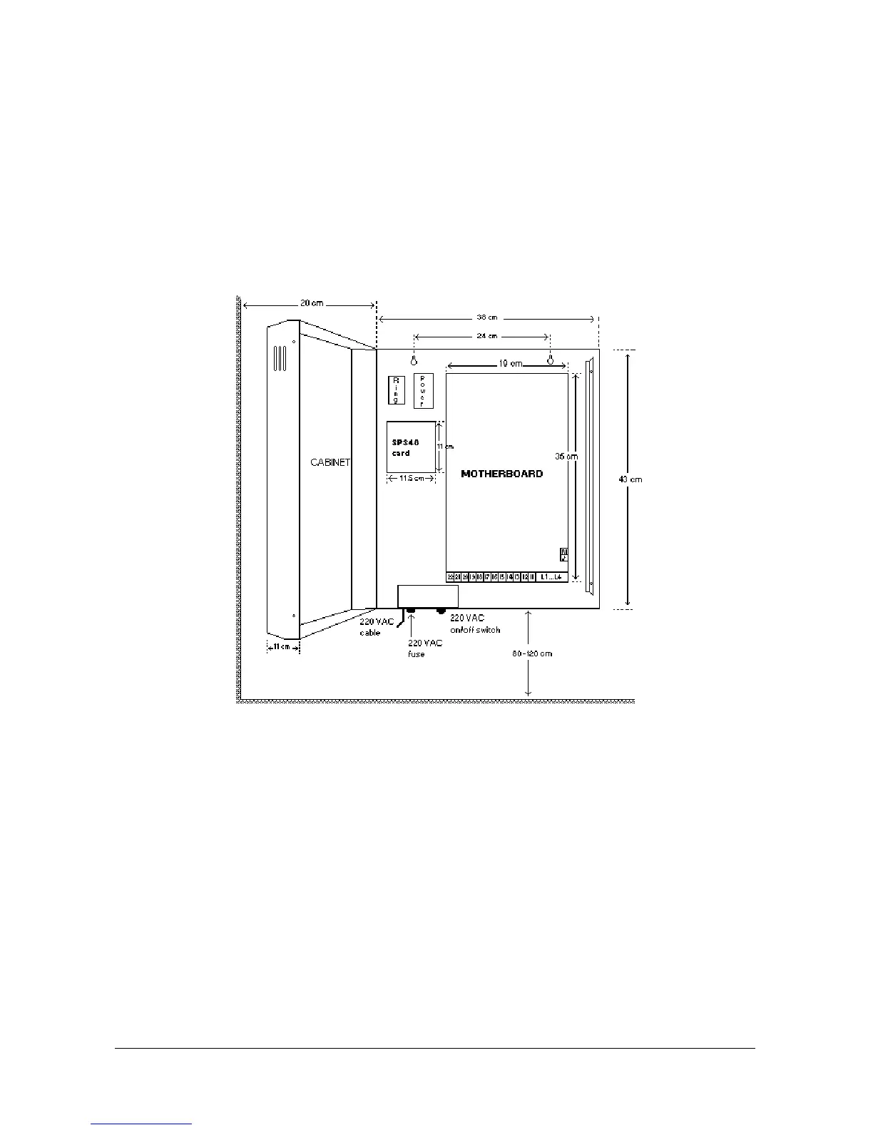
The MS48 system is designed to be mounted on the wall. Hence, the system
comes with a template and a pair of anchor plugs with screws. Another pair of
screws that are used to fasten the front cover are also available.
The template has the same dimensions with the MS48 system, so that it can be
used to choose the location of the system and to determine the points of the holes
on the wall. The template also has the necessary information to hang the system on
a proper location on the wall, which is illustrated in the following figure.
Figure B-1
To install the system (see Figure B-2) :
1) Place the template on the wall.
2) Drill two holes at the points marked as X1 and X2 on the template.
3) Drive the anchor plugs into the holes.
4) Insert the screws into the anchor plugs and fix the screws.
5) Hang the cabinet on the wall by placing the two pear holes at the back of the
cabinet over the screws.

Table of Contents

Other manuals for Karel MS48

Related product manuals