EasyManua.ls Logo

KDK 30BGCH - PartNamesAnd Dimensions; Work before Installation 7

KDK 30BGCH
28 pages
Print Icon
To Next Page IconTo Next Page
To Next Page IconTo Next Page
To Previous Page IconTo Previous Page
To Previous Page IconTo Previous Page
Loading...
7
200 mm(安
250 mm)
1.Install this product over 200 mm apart from curtains
or other flammable materials.(When the mounting
hole is adjacent to curtains or other flammable
materials, ensure that more than 250 mm gap is
required between the hole edge and wall.
Comfirmation before installation
Wall
Product
Unit: mm
mm
Notice
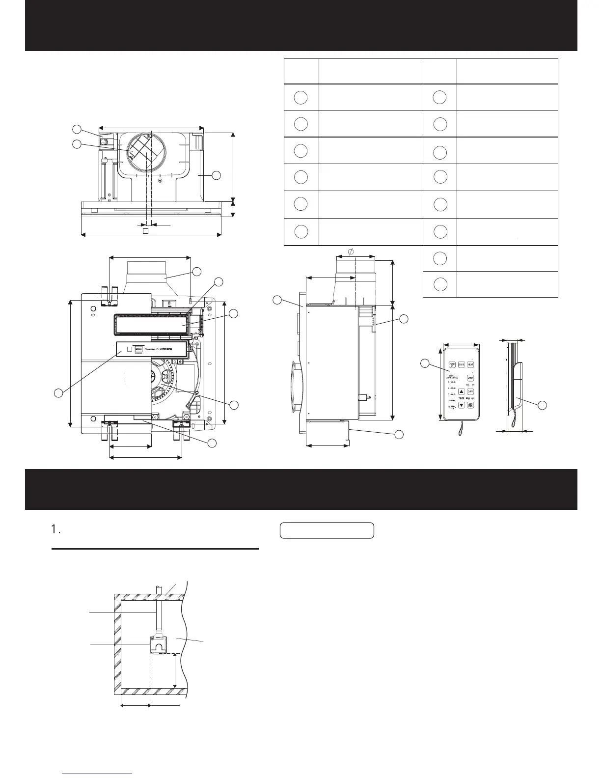
PART NAME AND DIMENSIONS
WORK BEFORE INSTALLATION
250
Bathroom
Duct pipe
250
250 or mo
re
250 or
more
2.The distance between ceiling board where the
product is mounted and ceiling shall be over 200 mm.
200 mm
3.Install this product over 250 mm apart from walls.
250 mm
4.Please reserve a sufficient length of the power cord
for easy installation.
便
Unit: mm
mm
60
120
18
26
12
13
1
2
3
4
5
6
7
8
10
9
11
Suspension bracket
Louver assembly
Remote control
Filter assembly
Controller holder
懸吊支
Fan
Mode button panel
Shutter
Adapter
No . No .
Part name Part name
Main body
Heater assembly
Baffle plate
Cord cover
1
8
2
9
3
10
4
5
6
7
高氣密性擋片
出風口接頭
電路板蓋板
PCB cover
14
11
12
13
14
270
360
12.5
39
121
290
114
98
200
333
321
108
185
128
180

Related product manuals