EasyManua.ls Logo

Kelley HK - Page 17

Kelley HK
64 pages
Print Icon
To Next Page IconTo Next Page
To Next Page IconTo Next Page
To Previous Page IconTo Previous Page
To Previous Page IconTo Previous Page
Loading...
©2009 4Front Engineered Solutions, Inc.
January 2009 6004754F — HK and HK-S Hydraulic Dock Leveler, 3 Button — SafeTFrame
17
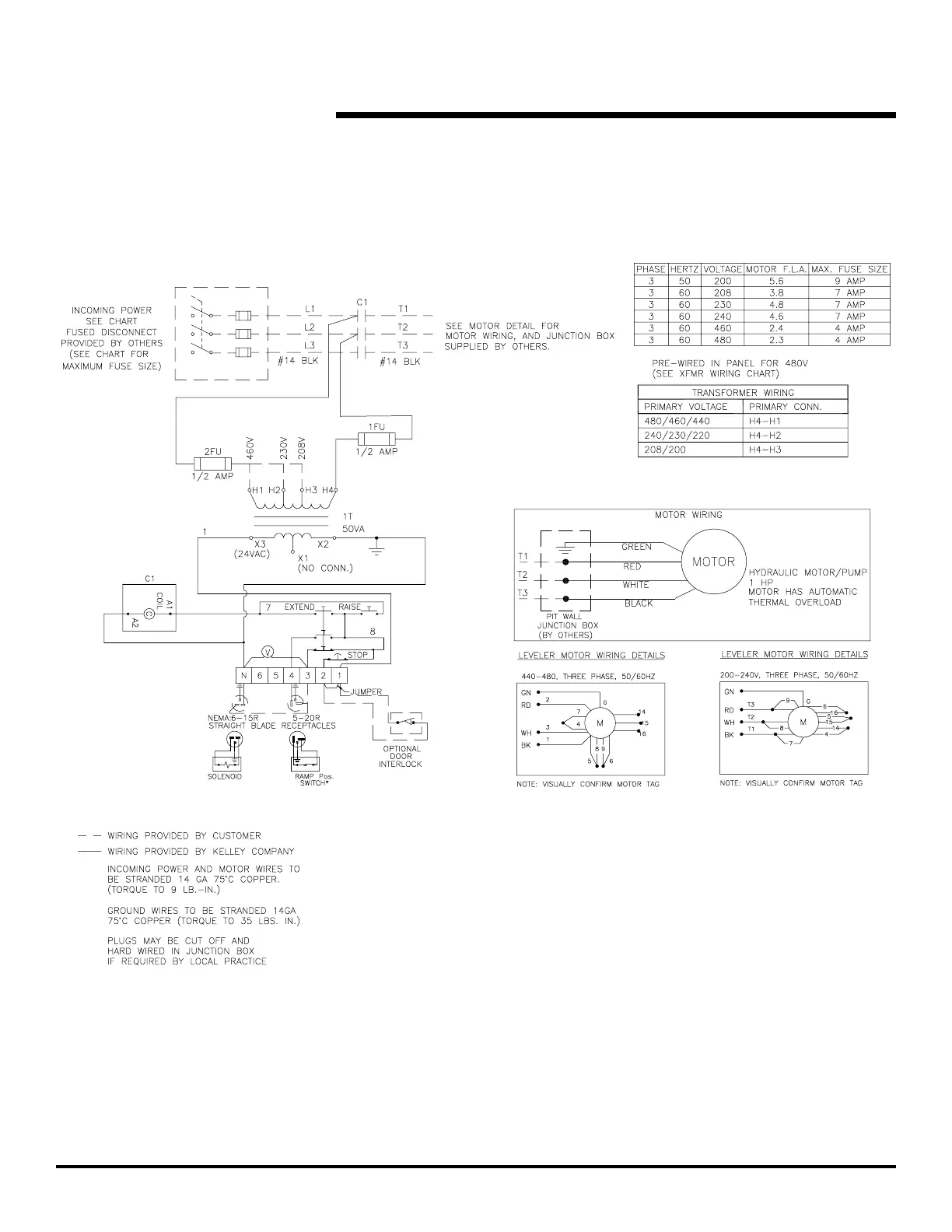
WIRING DIAGRAMS — STANDARD, continued
200-480V, 3PH, 50/60 Hz

Related product manuals