EasyManua.ls Logo

Klarstein AMAZONIA 8 - Installatie

Klarstein AMAZONIA 8
Print Icon
To Next Page IconTo Next Page
To Next Page IconTo Next Page
To Previous Page IconTo Previous Page
To Previous Page IconTo Previous Page
Loading...
184
NL
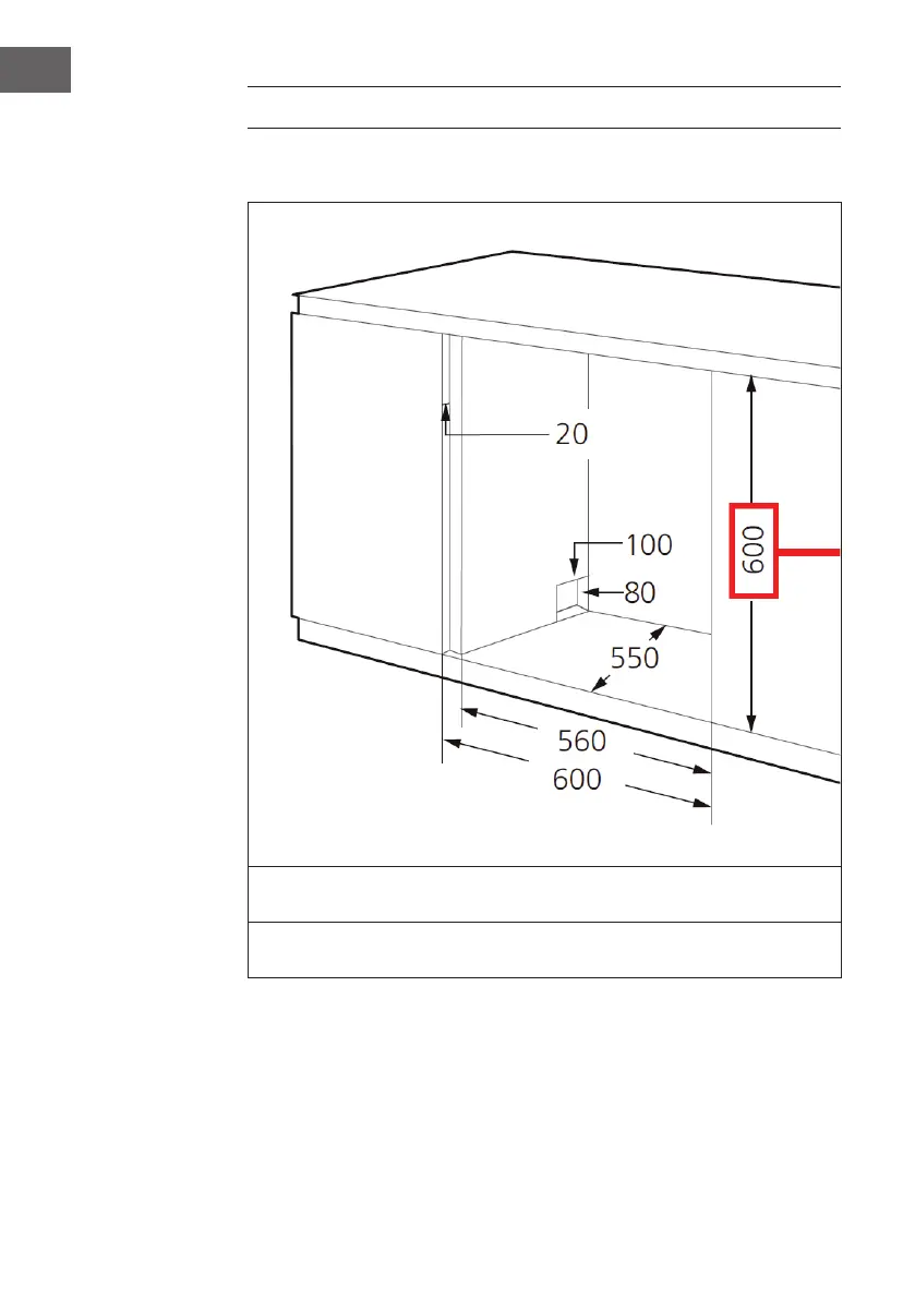
INSTALLATIE
Inbouwafmetingen
Er mag minder dan 5 mm ruimte zijn tussen de bovenkant van de vaatwasser en de
inbouwkast. Hetzelfde geldt voor de externe deur, die is uitgelijnd met de kast.
Als de vaatwasser zich in de hoek van een inbouwkast bevindt, moet er voldoende
ruimte overblijven om de deur te kunnen openen.

Table of Contents

Related product manuals