EasyManua.ls Logo

Klarstein AMAZONIA 8 - Montaje

Klarstein AMAZONIA 8
Print Icon
To Next Page IconTo Next Page
To Next Page IconTo Next Page
To Previous Page IconTo Previous Page
To Previous Page IconTo Previous Page
Loading...
82
ES
MONTAJE
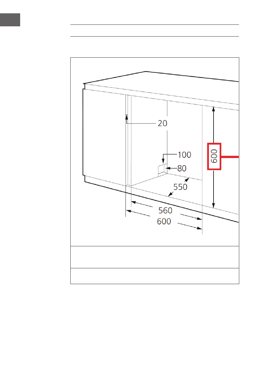
Dimensiones de montaje
Deben existir como mínimo 5 mm de espacio entre la parte superior del lavavajillas y
el armario empotrado. Se aplica lo mismo para la puerta exterior que esté instalada
en el armario.
Si el lavavajillas se encuentra en la esquina del armario empotrado, es necesario
que exista suciente espacio para abrir la puerta.

Table of Contents

Related product manuals