EasyManua.ls Logo

KNF N838 E Series - Page 21

KNF N838 E Series
52 pages
Print Icon
To Next Page IconTo Next Page
To Next Page IconTo Next Page
To Previous Page IconTo Previous Page
To Previous Page IconTo Previous Page
Loading...
Diaphragm pump N838_E
Installation and connection
Translation of Original Operating and Installation Instruction, KNF 347394-347605
09/23
21
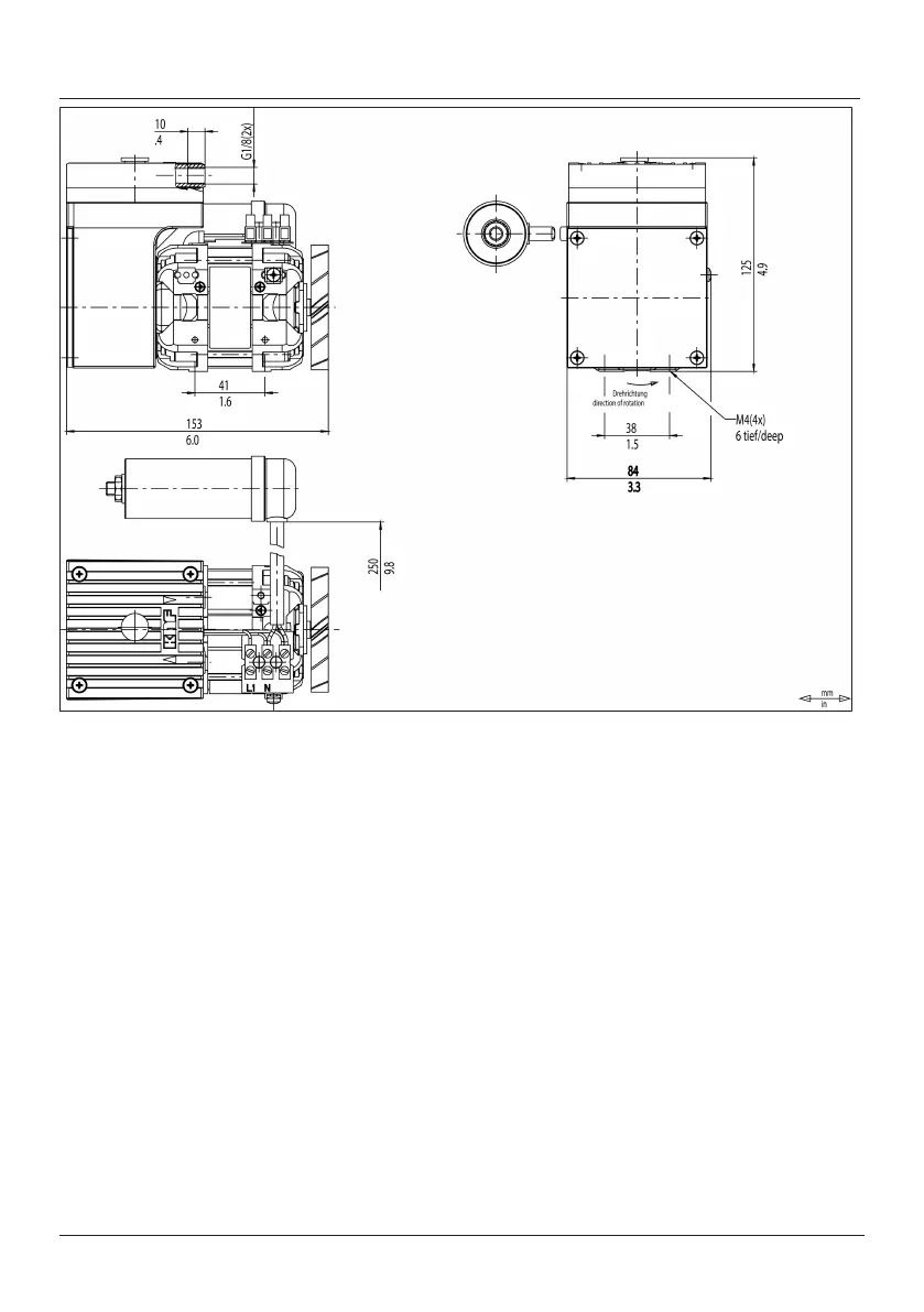
Fig.4: Mounting dimensions N838KNE
EN
-
US
EN

Related product manuals