EasyManua.ls Logo

KOBE CH2230SQ - Installation

KOBE CH2230SQ
96 pages
Print Icon
To Next Page IconTo Next Page
To Next Page IconTo Next Page
To Previous Page IconTo Previous Page
To Previous Page IconTo Previous Page
Loading...
36
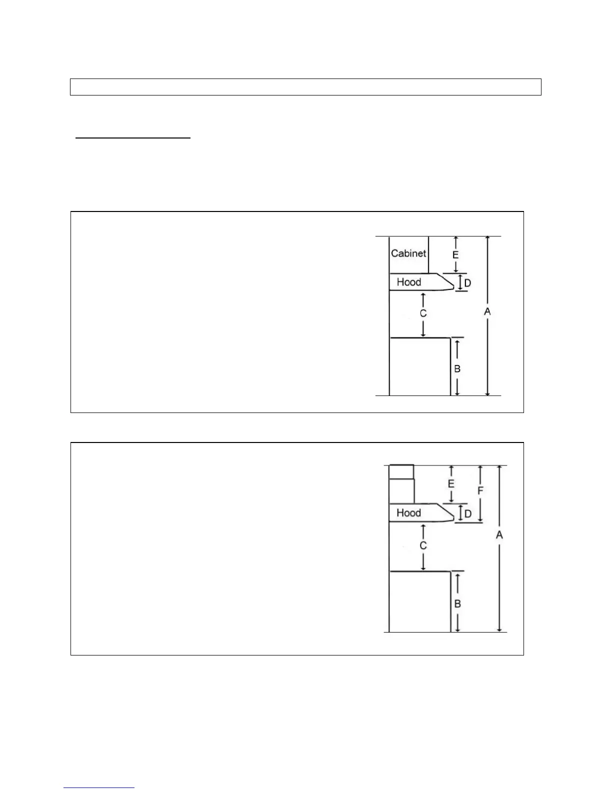
TABLE 2(vue de côté)
A = hauteur du plancher au plafond
B = hauteur du plancher jusqu’au comptoir/ à la surface de cuisson
(Normalement : 36 ")
C = hauteur recommandée entre le dessus du comptoir
/surface de cuisson jusqu’au dessous de la hotte
(Recommandation : 27 "à 30")
D = hauteur de la hotte
E = hauteur du Couvre Conduit : calcul [F - D]
F = hauteur recommandée pour l'installation de la hotte : calcul
[ A - (B+C)]
INSTALLATION
VEUILLEZ LIRE ENTIÈREMENT LES INSTRUCTIONS AVANT DE PROCÉDER
Calcul avant Installation
Planifiez toutes les étapes avant de procéder à l’installation de la hotte (Note : toutes les mesures sont
en pouces) en tenant compte de éléments suivants : dimensions et emplacement de la hotte, système
de conduits, exigences électriques et surfaces de montage adéquates.
INSTALLATION SOUS LE CABINET
TABLE 1 (vue de côté)
A = hauteur du plancher au plafond
B = hauteur du plancher jusqu’au comptoir/
à la surface de cuisson (Normalement : 36 ")
C = hauteur recommandée entre le dessus du comptoir
/surface de cuisson jusqu’au dessous de la hotte
(Recommandation : 27"à 30")
D = hauteur de la hotte
E = hauteur du cabinet d’armoire
MODÈLE ILOT (AVEC COUVRE CONDUIT OPTIONEL)

Related product manuals