EasyManua.ls Logo

KOBE CH2230SQ - Diagrama de Circuito

KOBE CH2230SQ
96 pages
Print Icon
To Next Page IconTo Next Page
To Next Page IconTo Next Page
To Previous Page IconTo Previous Page
To Previous Page IconTo Previous Page
Loading...
88
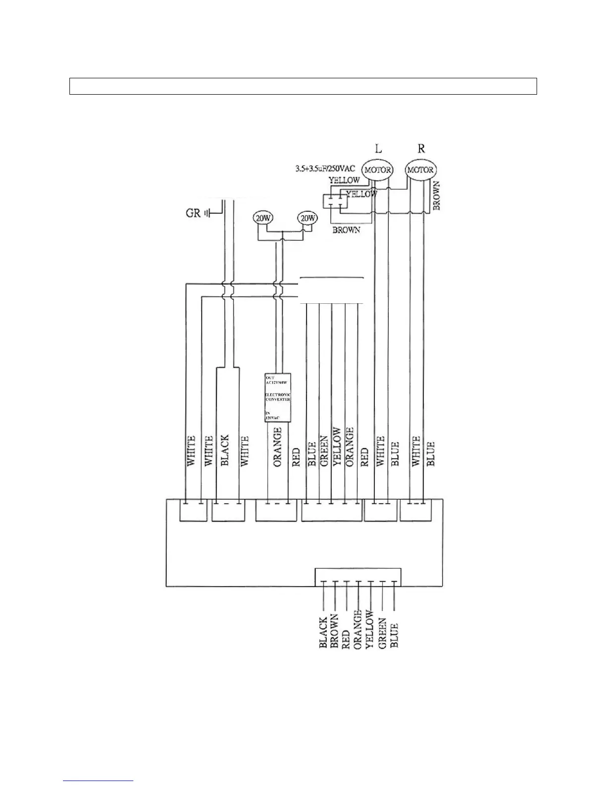
DIAGRAMA DE CIRCUITO
MODELO NO.: CH2230SQ
CH2236SQ
Receptáculo de Energía
CONDENSADOR
CONVERTIDOR
ELECTRÓNICO
White=Blanco Black=Negro Orange=Naranja Red=Rojo
Blue=Azul Green=Verde Yellow=Amarillo Brown=Café

Related product manuals