EasyManua.ls Logo

Kohler 11RMY

Kohler 11RMY
52 pages
To Next Page IconTo Next Page
To Next Page IconTo Next Page
To Previous Page IconTo Previous Page
To Previous Page IconTo Previous Page
Loading...
TP-6049 9/0228 Section 6 Installation
ADV-6788
METRIC CAD FILE
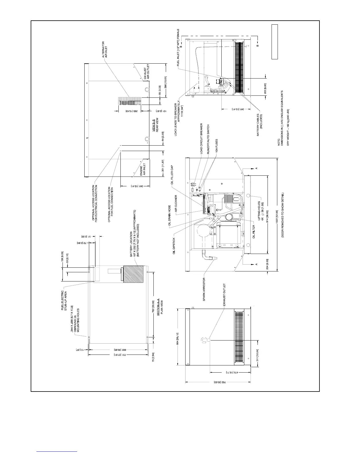
Figure 6-2 Generator Set Mounting Details and Dimensions

Table of Contents

Other manuals for Kohler 11RMY

Related product manuals