EasyManua.ls Logo

Kohler 11RMY

Kohler 11RMY
52 pages
To Next Page IconTo Next Page
To Next Page IconTo Next Page
To Previous Page IconTo Previous Page
To Previous Page IconTo Previous Page
Loading...
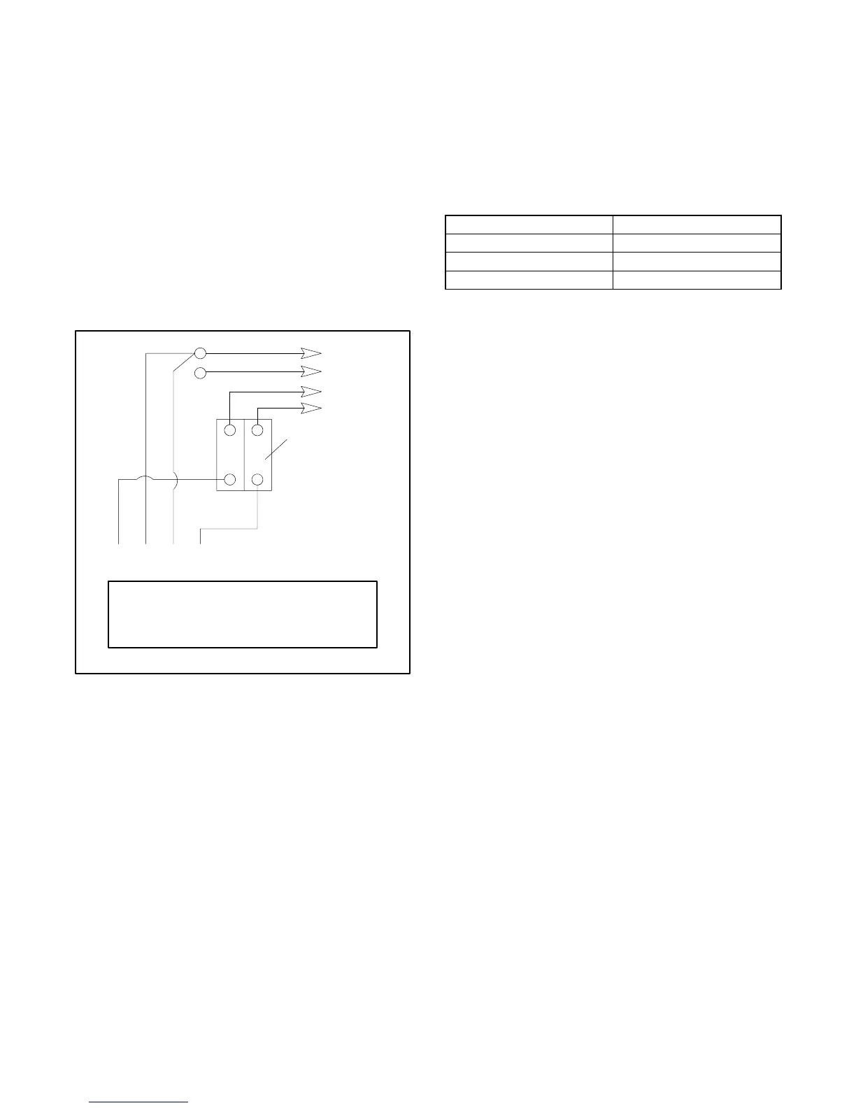
TP-6049 9/0236 Section 6 Installation
6.9.2 Factory Connections, 110/220 Volt
50 Hz or 120/240 Volt 60 Hz
Generator sets are available from the factory connected
for 110/220 Volt 50 Hz or 120/240 Volt 60 Hz. See
Figure 6-14 for the factory connections.
Leads L1 and L2 are of different phases. Never connect
leads L1 and L2 together. After connection adjust the
voltage regulator to obtain the desired voltage.
Note: Use a circuit breaker manufacturer’s two-pole
circuit breaker. Two single-pole circuit breakers
do not conform to NEC requirements when
supplying a 220 or 240 volt load. This is true even
if they are mechanically attached together.
4321
Stator Leads
LO
GRD
L2
L1
LO (Neutral)
Line
Side
Factory two-pole
circuit breaker
Ground
Load
Side
TP-5867
L0-L1
L0-L2
L1-L2
60 Hz
120 volt
120 volt
240 volt
50 Hz
110 volt
110 volt
220 volt
Figure 6-14 110/220 and 120/240 Volt, 3-Wire
Configurations
6.9.3 Reconnection Options
The following reconnections can be made using the
factory two-pole circuit breaker provided. It is the
responsibility of the individual performing the
reconnection to meet all the electrical codes.
See Figure 6-15 for four-lead reconnectable (single-
phase) generator set voltage options.
60 Hz 50 Hz
120 Volt 110 Volt
120/240 Volt 110/220 Volt
240 Volt 220 Volt
Figure 6-15 Four-Lead, Single-Phase Generator Set
Voltage Connection Options
110 and 120 Volt Configurations
When connecting stator phase leads, size output lead
(L1) accordingly. Use a jumper lead with the same
ampere rating as the output lead L1 on the side of the
circuit breaker shown. After connection adjust the
voltage regulator to obtain the desired voltage.
Note: Electrical Codes: The 110 and 120 V olt
reconnection configurations require a jumper lead
on one end of the circuit breaker. This configuration
is acceptable per the National Electrical Code,
NFPA #70. Never jumper both the line and load
ends of the circuit breaker . A jumper on both
the line and load ends violates the National
Electrical Code by paralleling the breaker
poles. On occasion local electrical inspectors have
objected to a jumper on the load side of the circuit
breaker. It is the responsibility of the individual who
is reconnecting the output to make certain the
reconnection satisfies the local inspector. The
purchase and installation of a single pole breaker to
replace the two-pole breaker may be necessary.
Note: Jumper Sizing: Use a jumper lead with the same
ampere rating as the output lead L1 on the side of
the circuit breaker shown.

Table of Contents

Other manuals for Kohler 11RMY

Related product manuals