EasyManua.ls Logo

Kold-Draft SC200 Series - Installation Requirements

Kold-Draft SC200 Series
26 pages
Print Icon
To Next Page IconTo Next Page
To Next Page IconTo Next Page
To Previous Page IconTo Previous Page
To Previous Page IconTo Previous Page
Loading...
SC200 Installation& Operation Manual 3-16
4
Installation Requirements
The ice machine must be installed indoors and the location should be free of airborne
contaminates including any corrosive elements.
Ambient air temperatures at the install location must be between 45°F (7°C) and 90°F
(32°C).Ambient temperatures higher than the maximum specification will result in reduced
capacities and high system pressures in air-cooled models. Temperatures lower than the
minimum may cause the machine to be unable to eject the ice from the evaporator. Ambient
temperatures less than 60°F (15°C) may cause the bin probe to malfunction.
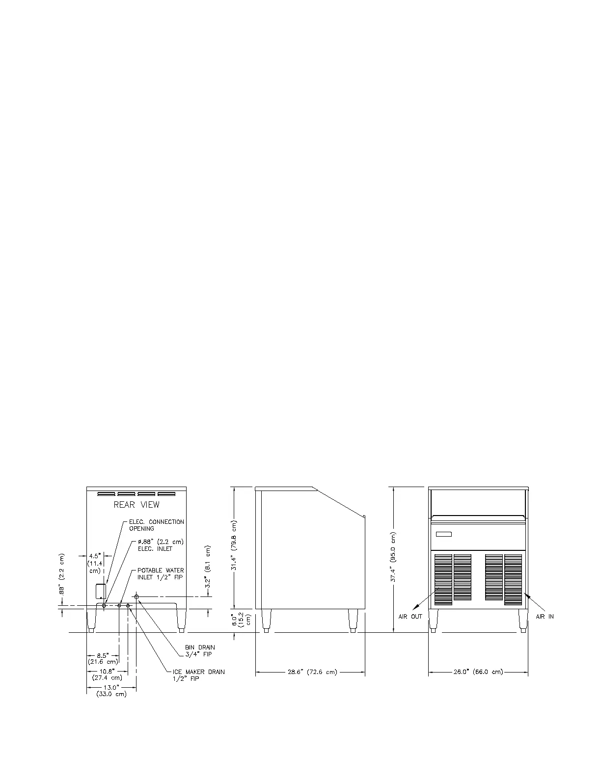
The machine may be built into a cabinet. Clearance is not required around the top and sides,
but must be provided in back for plumbing and electrical connections and in front for free flow
of air in and out of the condensing unit compartment.
Do not install air cooled units in closets or small rooms where the free flow of air to the unit is
restricted.
The location must not be near heat generating equipment.
The location must not be near anything that can contaminate it or the ice inside.
The ice machine should be mounted on the legs provided and leveled by screwing the leg
adjusters in or out as required. If the legs are not used, shim the bottom of the machine as
required to make it level. Seal any gaps at the floor with approved sealant or use cove
molding for larger gaps. Make sure the lower front cover remains removable for service.
The location must be capable of supporting the weight of the ice machine, with a full bin of
ice.

Related product manuals