EasyManua.ls Logo

KSB S 100D - Request for Quotation (Form)

KSB S 100D
114 pages
Print Icon
To Next Page IconTo Next Page
To Next Page IconTo Next Page
To Previous Page IconTo Previous Page
To Previous Page IconTo Previous Page
Loading...
F
3300:54/3
3
2
1
4
7
5
8
6
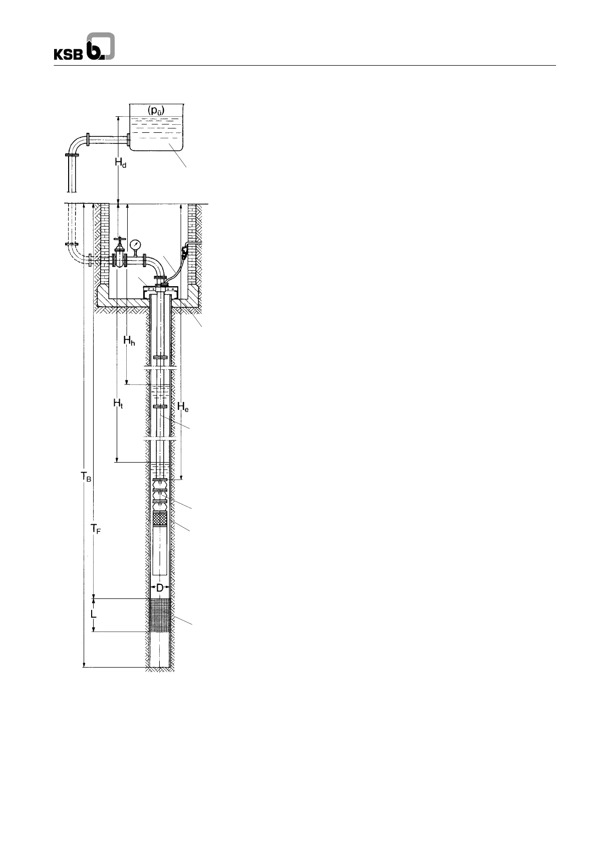
1 Well screen / filter
2 Well casing
3 Submersible borehole pump
4 Riser
5 Well head housing
6 Well head
7 Power supply cable
8 Overhead tank
60 Hz Submersible Borehole Pumps
9
Request for Q uotation
We should like to test the efficiency and
quality of your computer-aided quotation
process. Please let us have a quotation
based on the following data. (Fill in the
required data and / or underline the
relevant information, as far as available.)
1. Water quality
Temperature °C.....................
Sand content g/m
3
..................
Please attach water analysis, if available.
2. Type of system
Well / Mine shaft / Tank
Free discharge above ground
Discharge into an overhead tank
Discharge into a pressure vessel
3. Deep well
Well depth (distance from ground level to
well base):
T
B
=m............................
Inside diameter at submersible pump
installation depth:
D = mm ( inches).............. ....
Well screen / filter:
-- Installation depth T
F
=m...........
-- Length L
F
=m...................
4. Capacity
Q= m
3
/h ( l/s)............. .......
5. Total head
(including all friction losses)
H= m............................
If H is not known, please provide the
following data:
a) Water level in well, measured from
ground level:
-- Static water level: H
h
=m..........
-- Dynamic water level: H
t
=m........
(at capacity Q = m
3
/h)..............
b) Head above ground:
Geodetic altitude up to the highest point
of the pipeline or up to the highest water
level in the overhead tank:
H
d
=m...........................
Discharge head required at the end of the
piping:
H = m ( bar)............. ........
Cut-out pressure in the pressure vessel:
p
Ü
= bar............
c) piping outside well head housing:
Overall length m....................
Nominal diameter mm...............
Number of bends, valves and fittings:
pcs................................
Inside diameter reduced by incrustation
to: D = mm........................
6. Installation depth
Ground level to check valve / to
connection branch:
H
e
=m............
Caution: Do not install the submersible
borehole pump at the level of the well
screen / filter!
7. Power supply
Single- / three-phase alternating current.
Mains voltage at well:
U= V.............................
Frequency f = Hz..................
If voltage drops cannot be precluded:
Minimum voltage ...
U
min
=V...........
8. Control box
Manual start-up / remote control /
automatic start-up by way of float switch,
pressure switch or dry running protection
equipment.
Other types of switchgear: ...........
...................................
9. Starting method
D.o.l. (without / with autotransformer or
soft starter) or star-delta starting.

Related product manuals