EasyManua.ls Logo

Lamborghini Caloreclima EM 9-E - Collegamenti Elettrici

Lamborghini Caloreclima EM 9-E
Print Icon
To Next Page IconTo Next Page
To Next Page IconTo Next Page
To Previous Page IconTo Previous Page
To Previous Page IconTo Previous Page
Loading...
15
IT
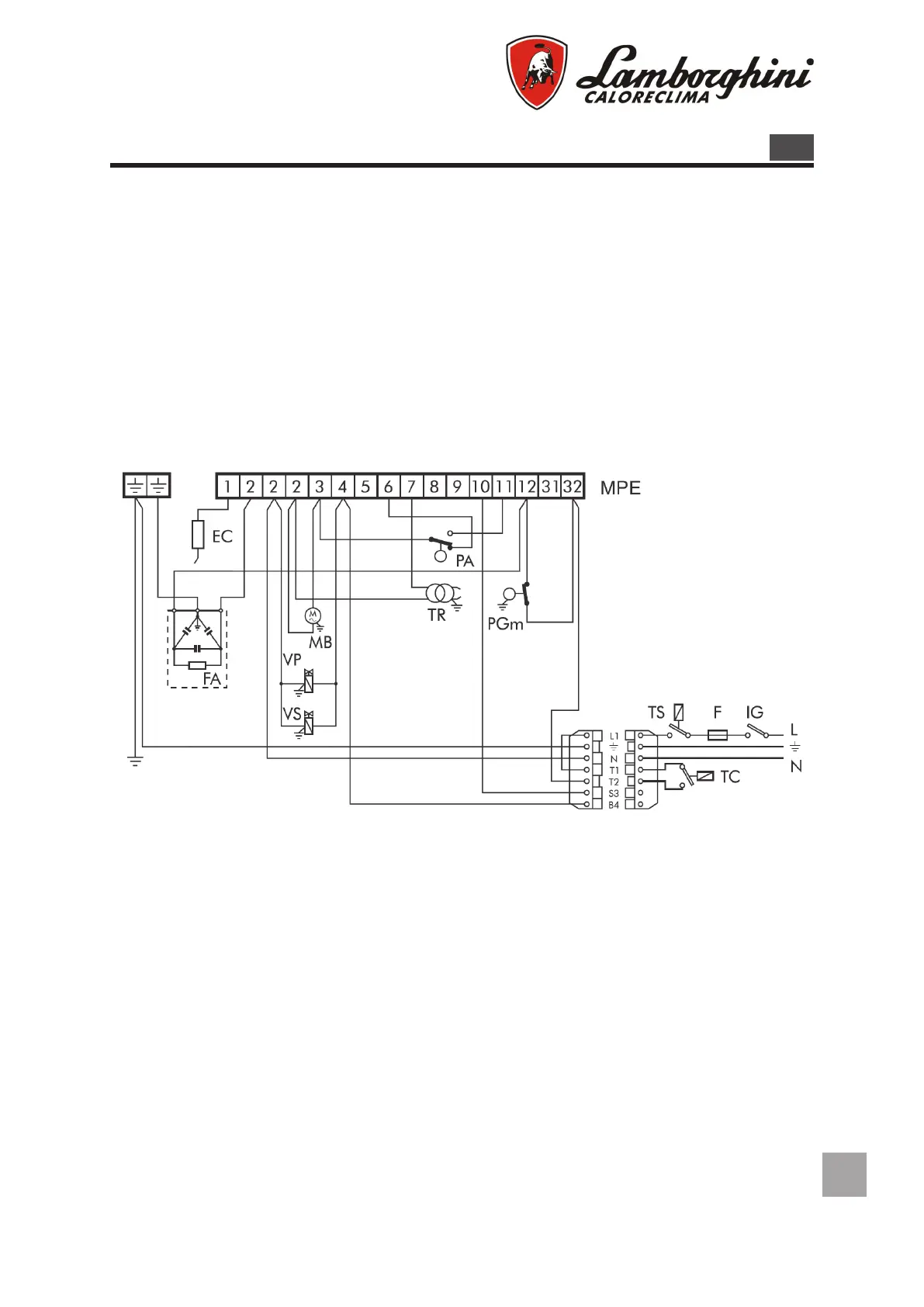
COLLEGAMENTI ELETTRICI
M
AVVERTENZE
- Non scambiare il neutro con la fase
- Eseguire il collegamento ad un efcace impianto di terra.
- La linea di alimentazione elettrica al bruciatore deve essere provvista di un interruttore omni-
polare con apertura tra i contatti di almeno 3 mm
- Il collegamento della terra alla morsettiera del bruciatore deve essere eseguito con un cavo
più lungo di almeno 20 mm rispetto ai cavi delle fasi e del neutro
- rispettare le norme della buona tecnica ed osservare scrupolosamente le norme locali vigenti
N.B. È necessario osservare scrupolosamente la buona norma che indica il collegamento di
massimo due cavi per morsetto.
Legenda
EC Elettrodo di controllo
F Fusibile
FA Filtro antidisturbo
IG Interruttore generale
MPE Morsettiera apparechiatura di comando
MB Motore bruciatore
PA Pressostato aria
PGm Pressostato gas minimo
TC Termostato caldaia
TS Termostato di sicurezza
TR Trasformatore di accensione
VP Valvola di funzionamento
VS Valvola di sicurezza

Table of Contents

Related product manuals