EasyManua.ls Logo

Lamborghini Caloreclima EM 9-E - Connexions Electriques

Lamborghini Caloreclima EM 9-E
Print Icon
To Next Page IconTo Next Page
To Next Page IconTo Next Page
To Previous Page IconTo Previous Page
To Previous Page IconTo Previous Page
Loading...
62
FR
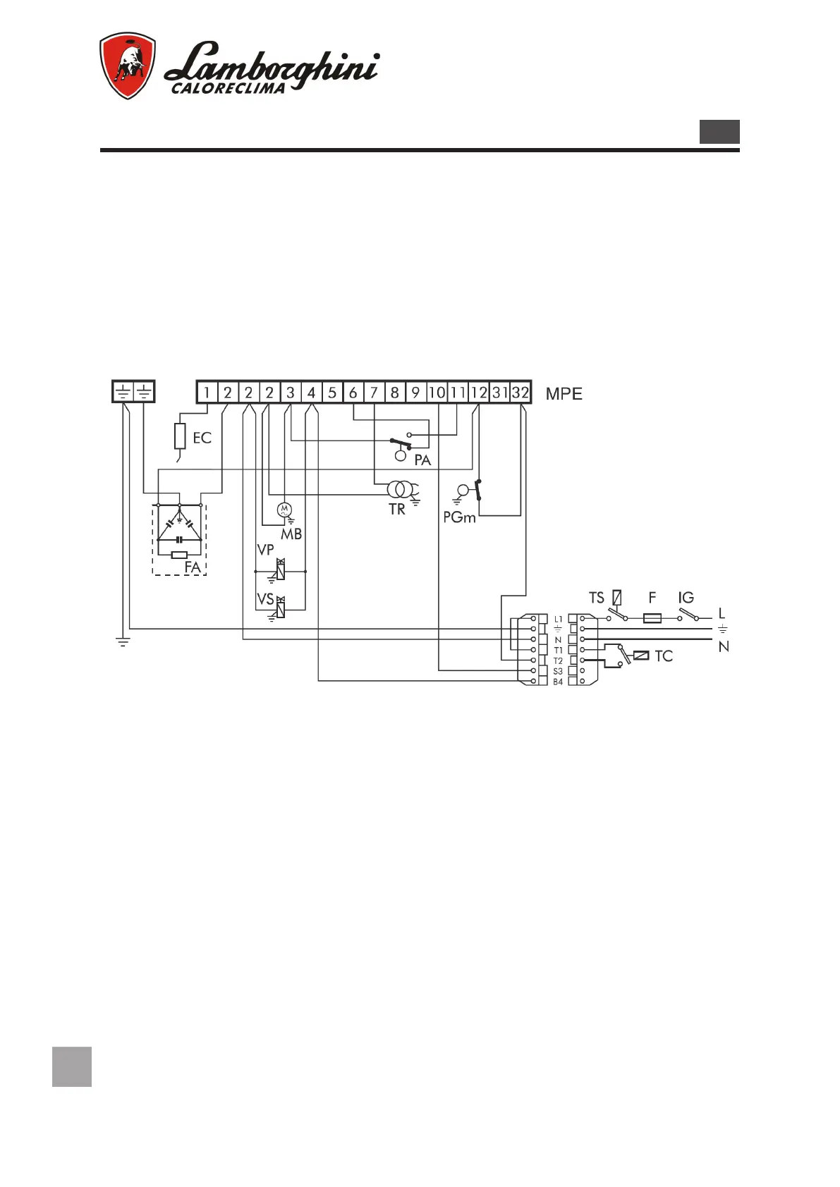
Legenda
EC Electrode de controle
F Fusible
FA Filtre antiparasite
IG Interrupteur général
MPE Barrette de connexion du coffret de sécurité
MB Moteur du brûleur
MV Borne libre
PA Pressostat de l’air
PGm Pressostat gaz minimum
TC Thermostat de la chaudière
TS Thermostat de sécurité
TR Transformateur d’allumage
VP Travail vanne principale
VS Vanne de sécurité
CONNEXIONS ELECTRIQUES
M
ATTENTION:
- Ne pas inverser le neutre et la phase
- Réaliser un branchement ef cace de mise à la terre.
- La ligne d’alimentation électrique du brûleur doit être pourvue d’un interrupteur omnipolaire
dont les contacts doivent présenter une ouverture d’au moins 3 mm.
- Le branchement de la terre au bornier du brûleur doit être réalisé à l’aide d’un câble d’une
longueur supérieure d’au moins 20 mm à celle des câbles des phases et du neutre.
- Respecter les règles techniques et s’en tenir aux normes locales en vigueur.
Remarque: Il faut observer scrupuleusement la bonne norme qui prescrit le branchement ma-
ximum de deux câbles par borne.

Table of Contents

Related product manuals