EasyManua.ls Logo

Lamborghini Caloreclima EM 9-E - Conexiones Eléctricas

Lamborghini Caloreclima EM 9-E
Print Icon
To Next Page IconTo Next Page
To Next Page IconTo Next Page
To Previous Page IconTo Previous Page
To Previous Page IconTo Previous Page
Loading...
86
ES
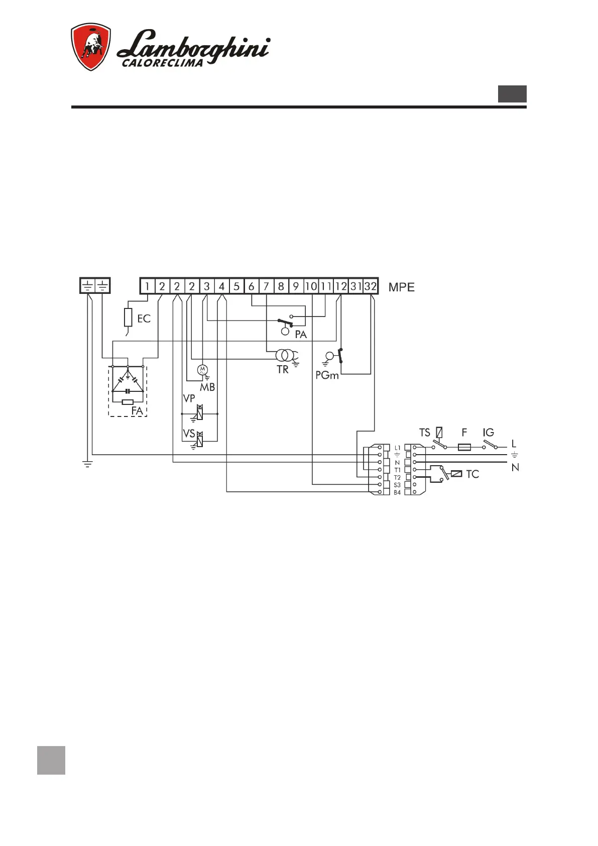
Descripción
EC Electrodo de control
F Fusible
FA Filtro antiparasitario
IG Interruptor general
MB Motor quemador
MPE Regleta de bornes caja de control
MV Borne volante
PA Presostato aire
PGm Presostato gas mínimo
TC Termostato caldera
TR Transformador de encendido
TS Termostato de seguridad
VP Válvula principal
VS Válvula de seguridad
CONEXIONES ELÉCTRICAS
M
Atención:
- no intercambien el neutro con la fase
- Conecte a una toma de tierra e caz.
- La línea de alimentación eléctrica al quemador debe estar dotada de interruptor omnipolar
con apertura mínima entre contactos de 3 mm.
- La conexión de la toma de tierra al tablero de bornes debe realizarse con un cable por lo
menos 20 mm más largo que los cables de las fases y del neutro.
- respeten las normas de la buena técnica y observen minuciosamente las normas locales
vigentes.
NOTA: Hay que respetar escrupulosamente la buena norma que indica la conexión de dos
cables por borne como mucho.

Table of Contents

Related product manuals