EasyManua.ls Logo

Lenze 2175 - Process-Data Assignment for 8200 Vector

Lenze 2175
152 pages
Print Icon
To Next Page IconTo Next Page
To Next Page IconTo Next Page
To Previous Page IconTo Previous Page
To Previous Page IconTo Previous Page
Loading...
CANopen
6 Parameter setting
6-18
L
BA2175 EN 2.0
6.3.4 Process-data assignment for 8200 vector
A change of code L-C0001 to 3 starts the preconfiguration of process data words in the controller
(see chapter 6.3.1). .
Tip!
Frequency and speed values are normalised with 24000 ≡480 Hz.
Process data telegram to drive
Byte 1 Byte 2 Byte 3 Byte 4 Byte 5 Byte 6 Byte 7 Byte 8
Control w ord
Low byte
Control w ord
High byte
AIF-IN.W1
Low byte
AIF-IN.W1
High byte
AIF-IN.W2
Low byte
AIF-IN.W2
High byte
xx xx
Control word: see chapter 6.3.4.1.
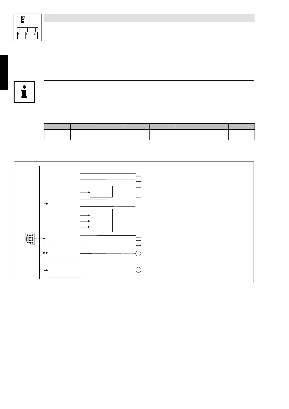
AIF-IN.Wx is parameterised under code L-C0412.
AIF
AIF-IN
AIF-CTRL
AIF-IN.W2
AIF-IN.W1
.B15
.B12
.B0
.B1
.B2
.B3
.B4
...
...
...
...
...
...
...
...
...
...
...
...
.B8
.B9
.B10
.B11
DCTRL
QSP
CINH
TRIP-SET
TRIP-RESET
DCTRL
16 bit
16 bit
16 bit
2141LON011
L-C0410/x = 10
L-C0410/x = 11
L-C0410/x = 12
...
...
...
L-C0410/x = 22
L-C0410/x = 25
...
...
...
...
...
...
...
...
L-C0412/x = 10
L-C0412/x = 11
...
Fig. 6-5 Function block AIF-IN in 8200 vector (freely programmable assignment, for default setting see (^ 6-20) )
Note:
Asubcode(x” in figure) determines the bit or word meaning (see 8200 vector Operating Instructions)
Phone: 800.894.0412 - Fax: 888.723.4773 - Web: www.actechdrives.com - Email: info@actechdrives.com
Show/Hide Bookmarks

Table of Contents