EasyManua.ls Logo

Lenze 9300 - Page 47

Lenze 9300
524 pages
Print Icon
To Next Page IconTo Next Page
To Next Page IconTo Next Page
To Previous Page IconTo Previous Page
To Previous Page IconTo Previous Page
Loading...
Installation
4-7
SHB9300CRV EN 2.0
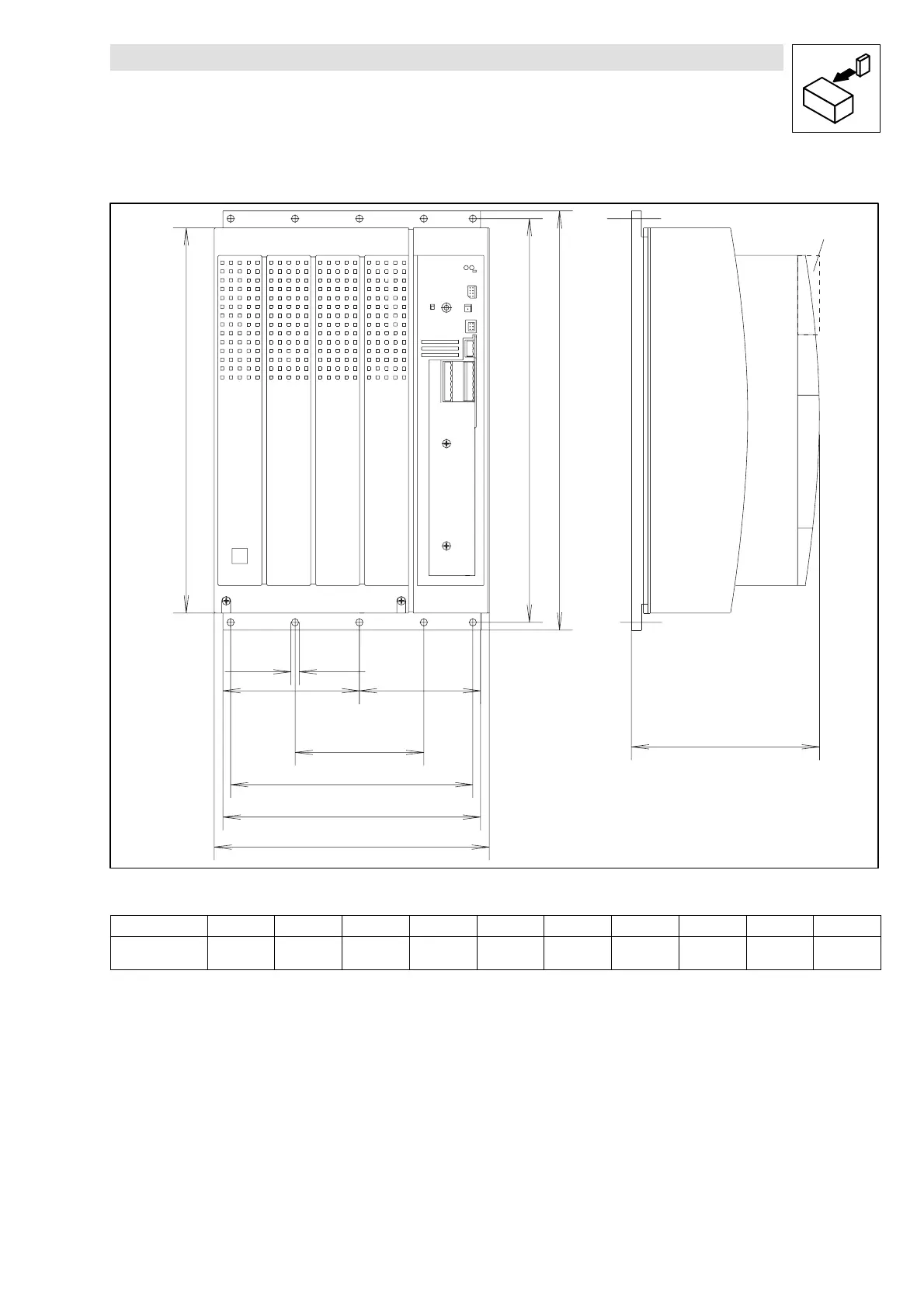
Dimensions for the types 9327-Cx and 9328-Cx
K35.0056
a
a1
g
c
c1
e
b1
d
b
L
*)
c2
Fig. 4-5 Dimensions for the assembly in cold plate technique”
Type
a a1 b b1 c c1 c2 d e* g
9327-Cx
9328-Cx
234 250 381 350 110 220 117 367 171 6.5
*
When using an attachable fieldbus module:
Observe the free space required for the connection cables
All dimensions in mm
Show/Hide Bookmarks

Table of Contents

Other manuals for Lenze 9300

Related product manuals