EasyManua.ls Logo

Lenze i700 Series

Lenze i700 Series
162 pages
To Next Page IconTo Next Page
To Next Page IconTo Next Page
To Previous Page IconTo Previous Page
To Previous Page IconTo Previous Page
Loading...
Mechanical installation
Dimensions
Devices with standard built−in design
5
l
68
EDS700ACBA EN 5.1
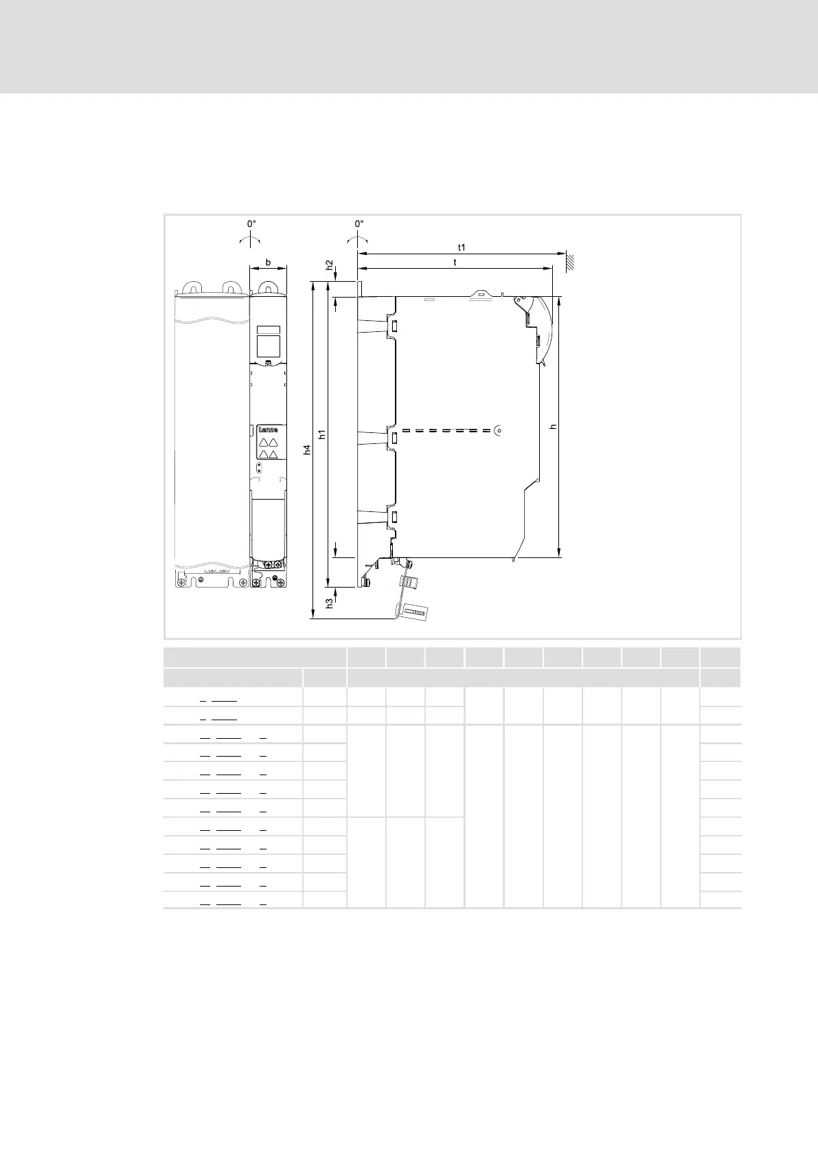
5.3 Dimensions
5.3.1 Devices with standard built−in design
i700P011 a
h b t h1 h2 h3 h4 t1 t2
[A] [mm] [kg]
E70ACPSE0304x 30 350 50 261
410 20 40 452 275
2.5
E70ACPSE0604x 60 350 100 261 5.3
E70ACMxE0054xx1xxx 5
350 50 261
410 20 40 452 275
2.7
E70ACMxE0104xx1xxx 10 2.7
E70ACMxE0204xx1xxx 20 2.7
E70ACMxE0054xx2xxx 2 * 5 2.9
E70ACMxE0104xx2xxx 2 * 10 2.9
E70ACMxE0324xx1xxx 32
350 100 261
5.2
E70ACMxE0484xx1xxx 48 5.2
E70ACMxE0644xx1xxx 64 5.2
E70ACMxE0204xx2xxx 2 * 20 5.2
E70ACMxE0324xx2xxx 2 * 32 5.2

Table of Contents

Other manuals for Lenze i700 Series

Related product manuals