EasyManua.ls Logo

Lenze i700 Series

Lenze i700 Series
162 pages
To Next Page IconTo Next Page
To Next Page IconTo Next Page
To Previous Page IconTo Previous Page
To Previous Page IconTo Previous Page
Loading...
Mechanical installation
Devices with push−through design
5
l
76
EDS700ACBA EN 5.1
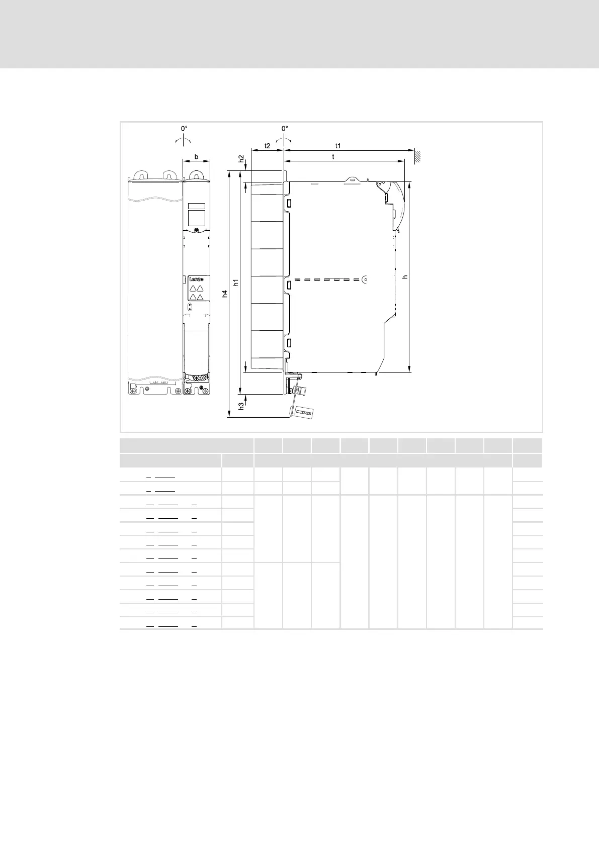
5.3.5 Devices with push−through design
i700P011 c
h b t h1 h2 h3 h4 t1 t2
[A] [mm] [kg]
E70ACPSD0304x 30 350 50 221
410 20 40 452 235 60
2.8
E70ACPSD0604x 60 350 100 221 7.3
E70ACMxD0054xx1xxx 5
350 50 221
410 20 40 452 235 60
3.0
E70ACMxD0104xx1xxx 10 3.0
E70ACMxD0204xx1xxx 20 3.0
E70ACMxD0054xx2xxx 2 * 5 3.2
E70ACMxD0104xx2xxx 2 * 10 3.2
E70ACMxD0324xx1xxx 32
350 100 221
7.1
E70ACMxD0484xx1xxx 48 7.1
E70ACMxD0644xx1xxx 64 7.1
E70ACMxD0204xx2xxx 2 * 20 7.1
E70ACMxD0324xx2xxx 2 * 32 7.1

Table of Contents

Other manuals for Lenze i700 Series

Related product manuals