EasyManua.ls Logo

Lenze MSEMA Series - 3-Phase Mains Connection 480 V

Lenze MSEMA Series
72 pages
To Next Page IconTo Next Page
To Next Page IconTo Next Page
To Previous Page IconTo Previous Page
To Previous Page IconTo Previous Page
Loading...
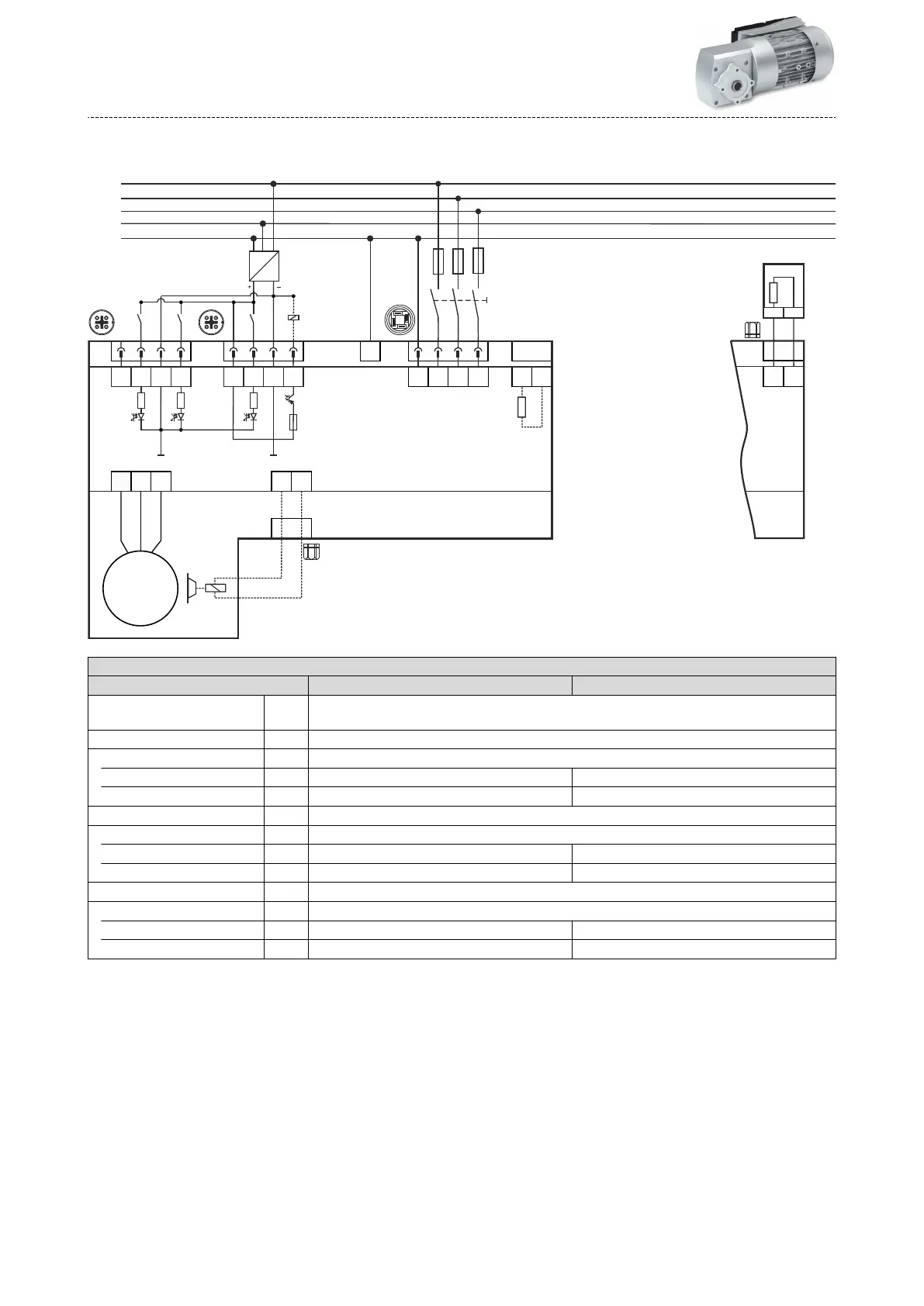
3-phase mains connecon 480 V
Conneon for single drive according to UL 61800-5-1
L1
L1
L2
L3
N
PE
F1 … F3
L2
L3
SELV/PELV
DC 24 V
(+19.2 … +28.8 V)
5.6k
5.6k
R
b
M
3~
Rb1 Rb2
V
U
W
+
+
X3
X4
+
1 2 3
BD1BD2
X2
1 2 3
4
X1
1 2 3
4
X5
max. 50 mA
X6
GND
-I
DI1DI2
n. c.
5.6k
GND
-O
DO1
DI3
24V
1
23
4 1
23
4
DC
AC
Q
400
Rb1 Rb2
X4
R
b
Rb1 Rb2
390
Fuse data (F1 ... F3)
Motor MSEMA☐☐063-42 MSEMA☐☐080-32
Cable installaon in compliance
with
UL 61800-5-1
Fuse
Standard UL 248
Typ. rated current A 3 6
Max. rated current A 3 10
Semiconductor fuse
Standard UL 248
Typ. rated current A 3 6
Max. rated current A 3 10
Circuit breaker
Standard UL 489
Typ. rated current 15 15
Max. rated current A 15 15
4Mot
or data ^ 67
Use UL-appr
oved cables:
Conductor temperature < 75 °C, ambient temperature < 40 °C
Operaon from mains supply 5 kA rms SCCR:
Use curr
ent-limited UL-approved fuses (UL 248) or automac circuit breakers (UL 489),
voltage ≥480 V.
Operaon from mains supply 200 kA rms SCCR:
Use current-liming UL-approved fuses (UL 248), current liming rang von 200 kA rms to
max. 5 kA rms, e.g. 15 A class CC.
Mounng/
installaon
Electrical installaon
Mains connecon
62

Other manuals for Lenze MSEMA Series

Related product manuals