EasyManua.ls Logo

Lenze TML - Page 92

Lenze TML
124 pages
Print Icon
To Next Page IconTo Next Page
To Next Page IconTo Next Page
To Previous Page IconTo Previous Page
To Previous Page IconTo Previous Page
Loading...
18 Lenze 13466187 EDBTL03 v8 EN, DE, FR, IT, ES
Messa in servizio
Codice Impostazioni possibili
IMPORTANTE
No. Nome Lenze Selezione
c20
I
2
t disattivato
(monitoraggio termico
del motore)
100 30 {%} 100
100% = corrente di uscita nominale Tml
Attiva un errore 0C6 quando
la corrente del motore supera
questo valore troppo a lungo
Impostazione attuale = (corrente
del motore riportata in targhetta) /
(corrente di uscita nominale Tml)
X 100%
Esempio: 6,4 A e Tml = 7 A;
impostazione corretta = 91%
(6,4 / 7 = 0,91 x 100% = 91%)
ATTENZIONE!
L’impostazione massima corrisponde alla corrente nominale del motore (consultare la
targhetta). Non fornisce completa protezione al motore!
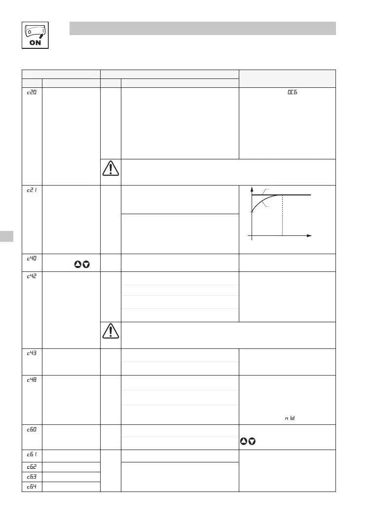
c21
Tipo di sovraccarico
motore
00 00 Compensazione velocità
Compensazione della velocità riduce la
corrente continua consentita durante il
funzionamento sotto i 30 Hz.
Ir
100%
60%
30 f
1
0
Ir: rated current (%); f: motor frequency
(Hz)
01 Nessuna compensazione velocità
Esempio: servoventilazione del motore
contrapposta all’autoventilazione tramite
ventilatori montati sull’albero
c40
Setpoint frequenza
tramite tasti
0,0 0 {Hz} 240 Attivo solo se C01 è correttamente
impostato (C01 = 1, 3, 5, 7)
c42
Condizione di avvio
(con alimentazione
fornita)
1 0 Avvio dopo variazione BASSO-ALTO
al terminale 28
Vedere anche c43 e c70
1 Avvio automatico se il terminale 28 = ALTO
2 Riavvio al volo (avvio automatico
disabilitato)
3 Avvio automatico se il terminale
28 = ALTO, con riavvio al volo
ATTENZIONE!
L’avvio/riavvio automatico può causare danni alle apparecchiature e/o lesioni al
personale! L’avvio/riavvio automatico deve essere utilizzato solo su apparecchiature
inaccessibili al personale.
c43
Scelta riavvio al volo 0 0 Intervallo di ricerca: C11...0 Hz
Se c42 = 2 o 3, il regolatore avvierà la
ricerca di velocità del motore a C11 o
almeno all’ultima frequenza di uscita prima
del guasto, secondo l’impostazione di c43
1
Intervallo di ricerca: ultima frequenza...0 Hz
c48
Auto-calibrazione del
motore
0 0 Calibrazione non effettuata Se C14 = 4...7, la calibrazione
del motore va eseguita, ma è
necessario programmare prima
C87...C91 (vedere C14)
Se si tenta di calibrare il motore
prima di programmare C87...C91, si
attiva un errore n1d
1 Calibrazione abilitata
2 Calibrazione completa
c60
Selezione modalità
per c61
0 0 Solo monitoraggio c60 = 1 consente la regolazione del
setpoint velocità (c40) tramite i tasti
, durante il monitoraggio di c61
1 Monitoraggio e modica
c61
Stato/errore attuale messaggio di stato/errore Schermo
Consultare la Sezione 5 per la
spiegazione dei messaggi di stato e
di errore
c62
Ultimo errore messaggio d’errore
c63
Penultimo errore
c64
Terzultimo errore

Table of Contents