EasyManua.ls Logo

LG Multi V Water IV - Triple Frame Heat Pump and Heat Recovery

LG Multi V Water IV
134 pages
To Next Page IconTo Next Page
To Next Page IconTo Next Page
To Previous Page IconTo Previous Page
To Previous Page IconTo Previous Page
Loading...
26
MULTI V Water IV System Installation Manual
Due to our policy of continuous product innovation, some specifications may change without notification.
©LG Electronics U.S.A., Inc., Englewood Cliffs, NJ. All rights reserved. “LG” is a registered trademark of LG Corp.
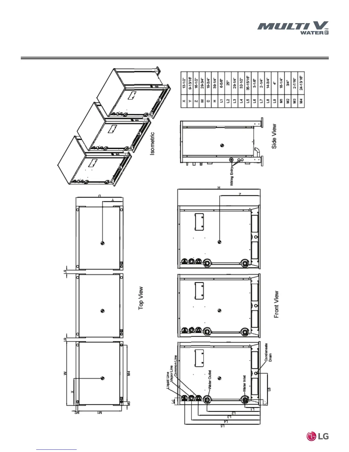
Triple Frame Heat Pump and Heat Recovery
WATER SOURCE UNIT DIMENSIONS

Table of Contents

Related product manuals