EasyManua.ls Logo

Liebert CR035 - Appendix 4 Refrigerant, Hydraulic And Electrical Connections

Liebert CR035
79 pages
Print Icon
To Next Page IconTo Next Page
To Next Page IconTo Next Page
To Previous Page IconTo Previous Page
To Previous Page IconTo Previous Page
Loading...
Appendix 4 Refrigerant, Hydraulic And Electrical Connections 59
Liebert.CRV Series Air Conditioner User Manual
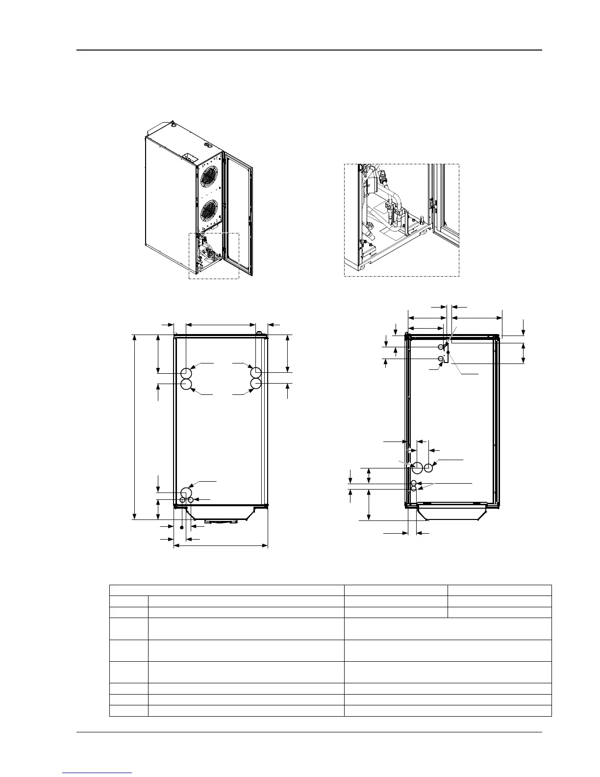
Appendix 4 Refrigerant, Hydraulic And Electrical Connections
Rear view
EC-HV
EC-LV
HF
DP
OG
IL
IL
EC-LV
HF/HD
EC-HV
OG
Top connections
600
44
83 440
77
1175
69 242
45
127
69 237
130
69
74
56 54
83
28
247.5
324.5
225.5
76.5
98
55.5
35
97
199
CD or DP
Bottom connections (possible with raised floor)
Figure 11 CR020RA, CR035RA connections (unit: mm)
Table 9 Refrigerant and hydraulic connections for air cooled units
Unit connection CR020RA CR035RA
IL Refrigerant liquid line inlet OD 12.7mm CU sweat OD 16 mm CU sweat
OG Refrigerant gas line outlet OD 16mm CU sweat OD 22mm CU sweat
CD
Condensate drain
Attention: with pump, CD is connected with HD, see DP
ID 20mm
HF Humidifier feed
12.7mm GAS-F for top connections,
19mm GAS F for bottom connections
HD
Humidifier drain
Attention: with pump, CD is connected with HD, see DP
ID 22mm
DP Pump drain 12.7mm GAS F
EC-HV
Electrical supply – high voltage Hole, Φ63mm
EC-LV Electrical supply – low voltage Hole, Φ28mm

Table of Contents

Related product manuals